八王子市犬目町 全2棟
掲載情報更新日:2026年04月12日 次回更新予定日:2026年04月26日 取引条件の有効期限:2026年05月03日
八王子市犬目町 全2棟 | 物件情報
価格
3,480万円~3,580万円所在地
東京都八王子市犬目町交通
JR中央本線『八王子』 バス乗車24分 下犬目バス 停 徒歩1分 ~ 1分 (約80m ~ 80m)JR中央本線『八王子』 車15分 ~ 15分(約6.5km~6.5km)
JR中央本線『西八王子』 バス乗車12分 一本松バス 停 徒歩13分 ~ 13分 (約1040m ~ 1040m)
※所要時間内は、統計データに基づいた所要時間を掲載しております。
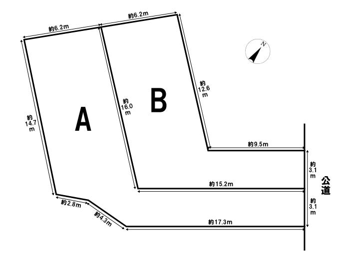
【区画割り画像】
物件の設備
- 公共下水
- 公営水道
- 都市ガス
- 下水道
- 上水道
- 電気
物件の特徴
- 2階建
分譲地情報
| 分譲地名 | 八王子市犬目町 全2棟 | ||
|---|---|---|---|
| 販売区画数 | 総区画数 | ||
| 価格 | 3,480万円~3,580万円 | ||
| 最多価格帯 | |||
| 交通 |
JR中央本線『八王子』 バス乗車24分 下犬目バス 停 徒歩1分 ~ 1分 (約80m ~ 80m) JR中央本線『八王子』 車15分 ~ 15分(約6.5km~6.5km) JR中央本線『西八王子』 バス乗車12分 一本松バス 停 徒歩13分 ~ 13分 (約1040m ~ 1040m) |
||
| 土地面積 | 123.26㎡ ~147.96㎡ | ||
| 建物面積 | 96.88㎡ ~98.93㎡ | ||
| 都市計画 | 市街化区域 | 用途地域 | 1種低層 |
| 建ぺい率 | 40% | 容積率 | 80% |
| 地目 | 地勢 | ||
| 許可番号 | 土地国士法 | ||
| 法令制限 | |||
| 小学校区 | 陶鎔小学校 徒歩4分 ~4分 (約250m ~250m) | ||
| 中学校区 | 楢原中学校 徒歩13分 ~13分 (約1000m ~1000m) | ||
| 周辺環境情報 |
八王子市立 陶鎔小学校徒歩4分 (約250m) 八王子市立 楢原中学校徒歩13分 (約1000m) スーパーアルプス 楢原店 徒歩7分 ~ 7分 (約500m ~ 500m) セブンイレブン 八王子犬目店 徒歩7分 ~ 7分 (約550m ~ 550m) ウエルシア 楢原コピオ店 徒歩7分 ~ 7分 (約500m ~ 500m) 勝田医院 徒歩10分 ~ 10分 (約800m ~ 800m) 光明第三こども園 徒歩6分 ~ 6分 (約450m ~ 450m) 犬目幼稚園 徒歩3分 ~ 3分 (約200m ~ 200m) 桜並木公園 徒歩3分 ~ 3分 (約200m ~ 200m) コピオ楢原 徒歩7分 ~ 7分 (約500m ~ 500m) |
||
| 備考 | |||
| 分譲地番号 | 238219 | ||
取扱店舗情報
ハウスドゥ 八王子駅北 ファミリアホームサービス株式会社 店舗詳細ページへ
| 電話番号 | 042-649-3807 |
|---|---|
| 所在地 | 〒192-0063 東京都八王子市元横山町2丁目2-4 第8小池ビル1階 |
| 営業時間 | 10:00~18:00 |
| 定休日 | 年末年始 |
| 宅建免許番号 | 国土交通大臣(2)第9218号 |
| アクセス | 店舗への地図はこちら |




