新築戸建 太子町鵤
掲載情報更新日:2025年09月25日 次回更新予定日:2025年10月09日
- 3,280万円
-
- 借入ご希望金額
万円 - 借入期間
年 - 借入金利
% - 月々のお支払い金額
円
- 借入ご希望金額
※ 月々のお支払例は目安の試算となりますので、実際の金額とは異なる場合がございます。詳しくは店舗までお問合わせください。
- 揖保郡太子町鵤
-
JR山陽本線『網干』 徒歩27分 (約2100m)
JR山陽本線『網干』 バス乗車32分 あすかホール前 停 徒歩9分 (約650m)
JR姫新線『本竜野』 徒歩60分 (約4800m)
新築戸建 太子町鵤一戸建て | 物件情報
小学校、中学校共に1km圏内! ★HOUSE DO★ 『資料請求』より来店・見学予約可能!
斑鳩小学校まで1km圏内!成長しても学校が近いので安心です。
不動産の事ならHOUSE DO はりま太子店にお任せください!
無料相談も承っております!
物件はもちろん、周辺環境やお店の情報などなんでもお尋ねください。スタッフが親身におこたえします!
こんな物件探してる人におすすめ!
物件の設備
- オール電化
- 上水道
- 下水道
- IHクッキングヒータ
- カウンターキッチン
- システムキッチン
- バス1坪以上
- 追焚機能
- トイレ2箇所
- 温水洗浄便座
- エアコン
- 照明器具
- ディンプルキー
- モニタ付インターホン
- 複層ガラス
- フローリング
- 24時間換気システム
- ウォークインクローゼット
- シューズインクローク
- 庭
物件の特徴
- 2階建
物件詳細情報
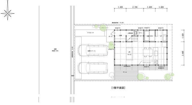
価格 | 3,280万円 | 間取り | 3LDK+S |
---|---|---|---|
物件種別 | 新築一戸建て | ||
所在地 | 兵庫県揖保郡太子町鵤 | ||
アクセス |
|
||
建物面積 | 公89.42㎡ | 駐車場 | あり 普通:3台 |
築年月 | 2025年(令和7年)07月築 | 建築確認 | HK24-12194 |
建物構造 | 木造 2階建 | 工法 | |
主要採光 | バルコニー | ||
保証・評価 | |||
土地面積 | 134.5㎡(40.68坪) | 接道 | 西側(公道)幅 約5.5m 間口 約9.00m |
私道 | セットバック | 無 | |
地目 | 宅地 | 地勢 | 平坦 |
権利 | 所有権 |
||
都市計画 | 市街化区域 |
用途地域 | 1種低層 |
建ぺい/容積率 | 60% / 150% | 土地国土法 | |
許可番号 | 建築基準法 | ||
法令制限 | |||
小学区 | 中学区 | 太子西中学校 徒歩7分 (約511m) | |
現況 | 完工済 | 引渡 | 相談 |
その他費用 | |||
周辺環境 | 西兵庫信用金庫 太子支店 徒歩3分 (約180m) セブンイレブン 兵庫太子鵤店 徒歩3分 (約190m) 太子町立町民体育館 徒歩7分 (約490m) マルアイ 太子店 徒歩7分 (約550m) |
||
備考 | |||
物件番号 | 4259250 | 取引態様 | 媒介 |
取扱店舗情報
電話番号 | 079-280-9922 |
---|---|
所在地 | 〒671-1511 兵庫県揖保郡太子町太田1563-5 |
営業時間 | 9:00~18:00 |
定休日 | 水曜日、年末年始 |
宅建免許番号 | 兵庫県知事(1)第451762号 |
アクセス | 店舗への地図はこちら |
来店ご予約
兵庫県揖保郡太子町で価格が似ている物件はこちら
- 兵庫県
マイページ物件数 - 2,793件
最近見た物件
-
-
-
- 新築一戸建て
- 2,480万円
-
鈴鹿市東磯山4丁目
-
近鉄名古屋線磯山
-
-
-
-
- 中古一戸建て
- 1,949万円
-
福井市照手4丁目
-
福井鉄道福武線福井城址大名町
-
-
-
-
- 中古一戸建て
- 980万円
-
比企郡川島町大字上伊草
-
東武東上線鶴ヶ島
-
兵庫県新築一戸建て新着物件
- お近くの店舗を探す
-
おすすめ物件
-
-
-
- 新築一戸建て
- 3,980万円
-
尼崎市武庫町2丁目
-
阪急電鉄神戸線武庫之荘
-
-
-
-
- 新築一戸建て
- 2,080万円
-
高砂市百合丘
-
JR山陽本線宝殿
-
-
-
-
- 新築一戸建て
- 2,680万円
-
姫路市上大野4丁目
-
JR山陽本線姫路
-
-
-
-
- 新築一戸建て
- 1,930万円
-
揖保郡太子町太田
-
JR山陽本線網干
-
-
-
-
- 新築一戸建て
- 3,480万円
-
加古川市新神野2丁目
-
JR加古川線神野
-
-
-
-
- 新築一戸建て
- 1,980万円
-
揖保郡太子町太田
-
JR山陽本線網干
-
-
-
-
- 新築一戸建て
- 2,898万円
-
姫路市上大野4丁目
-
JR播但線野里
-
-
-
-
- 新築一戸建て
- 2,798万円
-
姫路市上大野4丁目
-
JR播但線野里
-
-
-
-
- 新築一戸建て
- 3,580万円
-
姫路市飾磨区三和町
-
山陽電鉄本線飾磨
-
-
-
-
- 新築一戸建て
- 2,080万円
-
揖保郡太子町太田
-
JR山陽本線網干
-
担当エージェント:北爪 海斗
HOUSE DOが選んだ快適・安心の物件をお客様にご提供いたします!