新築戸建 五月丘5丁目2号地
掲載情報更新日:2026年01月01日 次回更新予定日:2026年01月15日
- 4,980万円
-
- 借入ご希望金額
万円 - 借入期間
年 - 借入金利
% - 月々のお支払い金額
円
- 借入ご希望金額
※ 月々のお支払例は目安の試算となりますので、実際の金額とは異なる場合がございます。詳しくは店舗までお問合わせください。
- 池田市五月丘5丁目
-
阪急電鉄宝塚線『池田』 バス乗車7分 五月丘 停 徒歩2分 (約160m)
新築戸建 五月丘5丁目2号地一戸建て | 物件情報
物件の設備
- 電気
- オール電化
- 公営水道
- 公共下水
- 都市ガス
物件の特徴
- 3階建以上
物件詳細情報
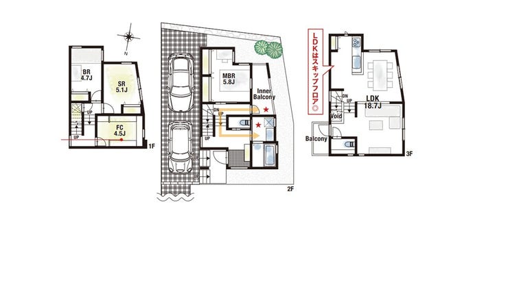
| 価格 | 4,980万円 | 間取り | 2LDK+S |
|---|---|---|---|
| 物件種別 | 新築一戸建て | ||
| 所在地 | 大阪府池田市五月丘5丁目 | ||
| アクセス |
|
||
| 建物面積 | 公108.09㎡ | 駐車場 | なし |
| 築年月 | 2025年(令和7年)11月予定 | 建築確認 | 第KKK02300129号 |
| 建物構造 | 木造 3階建 | 工法 | |
| 主要採光 | バルコニー | ||
| 保証・評価 | |||
| 土地面積 | 公120.06㎡(36.31坪) | 接道 | |
| 私道 | セットバック | ||
| 地目 | 宅地 | 地勢 | |
| 権利 | 所有権 |
||
| 都市計画 | 用途地域 | 1種中高 | |
| 建ぺい/容積率 | 土地国土法 | ||
| 許可番号 | 建築基準法 | ||
| 法令制限 | |||
| 小学区 | 五月丘小学校 徒歩5分 (約360m) | 中学区 | 渋谷中学校 徒歩6分 (約410m) |
| 現況 | 建築中 | 引渡 | 未記入 |
| その他費用 | |||
| 備考 | |||
| 物件番号 | 4403937 | 取引態様 | 媒介 |
取扱店舗情報
ハウスドゥ 池田城南 株式会社はなさく住まいる 店舗詳細ページへ
| 電話番号 | 072-739-8739 |
|---|---|
| 所在地 | 〒563-0025 大阪府池田市城南2丁目3-4-1F |
| 営業時間 | 9:30~18:30 |
| 定休日 | 年中無休 |
| 宅建免許番号 | 大阪府知事(1)第66164号 |
| アクセス | 店舗への地図はこちら |

来店ご予約
大阪府池田市で価格が似ている物件はこちら
- 大阪府
マイページ物件数 - 16,189件
最近見た物件
-
-

-
- 土地
- 630万円
-
新居浜市田の上4丁目
-
JR予讃線多喜浜
-
-
-

-
- 土地
- 1,398万円
-
南城市玉城字親慶原
-
親慶原入口 バス停
-
-
-

-
- 新築一戸建て
- 3,220万円
-
姫路市御立中8丁目
-
JR山陽本線姫路
-
大阪府新築一戸建て新着物件
-
-

-
- 新築一戸建て
- 3,498万円
-
八尾市天王寺屋5丁目
-
JR関西本線志紀駅
-
-
-

-
- 新築一戸建て
- 2,780万円
-
泉佐野市鶴原3丁目
-
南海電鉄本線鶴原駅
-
-
-

-
- 新築一戸建て
- 2,980万円
-
泉佐野市鶴原3丁目
-
南海電鉄本線鶴原駅
-
-
-

-
- 新築一戸建て
- 4,350万円
-
東大阪市新家2丁目
-
大阪市中央線長田駅
-
-
-

-
- 新築一戸建て
- 4,480万円
-
豊中市曽根南町3丁目
-
阪急電鉄宝塚線曽根駅
-
-
-

-
- 新築一戸建て
- 5,490万円
-
豊中市螢池東町3丁目
-
阪急電鉄宝塚線蛍池駅
-
-
-

-
- 新築一戸建て
- 4,980万円
-
茨木市鮎川1丁目
-
阪急電鉄京都線茨木市駅
-
- お近くの店舗を探す
-
おすすめ物件
-
-

-
- 新築一戸建て
- 3,680万円
-
高槻市津之江町2丁目
-
JR東海道線摂津富田
-
-
-

-
- 新築一戸建て
- 3,080万円
-
高槻市西町
-
阪急電鉄京都線富田
-
-
-

-
- 新築一戸建て
- 4,580万円
-
茨木市島2丁目
-
阪急電鉄京都線南茨木
-
-
-

-
- 新築一戸建て
- 5,998万円
-
高槻市川西町3丁目
-
JR東海道線高槻
-
-
-

-
- 新築一戸建て
- 4,800万円
-
高槻市日吉台四番町
-
JR東海道線高槻
-
-
-

-
- 新築一戸建て
- 4,780万円
-
堺市北区百舌鳥本町2丁
-
JR阪和線百舌鳥
-
-
-

-
- 新築一戸建て
- 4,680万円
-
堺市北区新金岡町5丁
-
大阪市御堂筋線新金岡
-
-
-

-
- 新築一戸建て
- 3,899万円
-
高槻市川西町1丁目
-
JR東海道線高槻
-
-
-

-
- 新築一戸建て
- 5,080万円
-
大阪市住之江区粉浜西3丁目
-
南海電鉄本線住吉大社
-
-
-

-
- 新築一戸建て
- 3,880万円
-
茨木市橋の内3丁目
-
阪急電鉄京都線総持寺
-


