門真市下馬伏町 新築戸建
NEW 11.02掲載情報更新日:2025年11月02日 次回更新予定日:2025年11月16日
- 3,690万円
-
- 借入ご希望金額
万円 - 借入期間
年 - 借入金利
% - 月々のお支払い金額
円
- 借入ご希望金額
※ 月々のお支払例は目安の試算となりますので、実際の金額とは異なる場合がございます。詳しくは店舗までお問合わせください。
- 門真市下馬伏町
-
京阪本線『萱島』 バス乗車18分 近鉄バス萱島(バス)行 下馬伏 停 徒歩5分 (約379m)
京阪本線『大和田』 バス乗車21分 京阪バス京阪大和田駅行 門真車庫前 停 徒歩5分 (約339m)
JR片町線『住道』 バス乗車20分 近鉄バス 近鉄八尾駅前行 下馬伏 停 徒歩5分 (約359m)
門真市下馬伏町 新築戸建一戸建て | 物件情報
2025年10月完成 14帖の広々リビング 即内見可!
☆月々9.5万円~
☆2025年10月完成
☆最寄駅から京橋駅まで最短9分
☆陽当たり良好!
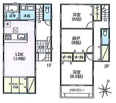
☆14帖LDK
☆駐車場2台&ハイルーフ車可!
☆近隣に学校、幼稚園、保育園、公園あり
☆複数スーパーあり
【内覧会開催中】
本日ご案内可能な場合もございます。
複数件併せてご内見も可能♪
他の掲載物件もまとめてご内見頂けます。気になる物件をお教え下さい。
☆0120ー684-571
お気軽にお電話ください♪
☆立地のポイント
【萱島駅】 バス停「下馬伏」徒歩5分→近鉄バス 萱島(バス)行き 乗車18分
【大和田駅】 バス停「門真車庫前」徒歩約5分→京阪バス 京阪大和田駅行き 乗車21分
【住道駅】 バス停「下馬伏」徒歩5分→近鉄バス 近鉄八尾駅前行き 乗車20分
物件の設備
- 電気
- 公営水道
- 公共下水
- 都市ガス
物件の特徴
- 2階建
物件詳細情報
| 価格 | 3,690万円 | 間取り | 2LDK+S |
|---|---|---|---|
| 物件種別 | 新築一戸建て | ||
| 所在地 | 大阪府門真市下馬伏町 2号棟 | ||
| アクセス |
|
||
| 建物面積 | 89.1㎡ | 駐車場 | あり 普通:2台 |
| 築年月 | 2025年(令和7年)10月築 | 建築確認 | トラスト24-2540 |
| 建物構造 | 木造 2階建 | 工法 | |
| 主要採光 | 南向 | バルコニー | |
| 保証・評価 | |||
| 土地面積 | 106.35㎡(32.17坪) | 接道 | |
| 私道 | セットバック | ||
| 地目 | 宅地 | 地勢 | |
| 権利 | 所有権 |
||
| 都市計画 | 市街化区域 |
用途地域 | 2種中高 |
| 建ぺい/容積率 | 60% / 200% | 土地国土法 | |
| 許可番号 | 建築基準法 | ||
| 法令制限 | |||
| 小学区 | 水桜小学校 徒歩15分 (約1200m) | 中学区 | 第四中学校 徒歩7分 (約500m) |
| 現況 | 空 | 引渡 | 相談 |
| その他費用 | |||
| 備考 | |||
| 物件番号 | 4473891 | 取引態様 | 媒介 |
取扱店舗情報
| 電話番号 | 050-5805-9447 |
|---|---|
| 所在地 | 〒536-0006 大阪府大阪市城東区野江4丁目10-13 クリエイト野江内代1F |
| 営業時間 | 10:00~19:00 |
| 定休日 | なし |
| 宅建免許番号 | 国土交通大臣(1)第10706号 |
| アクセス | 店舗への地図はこちら |

来店ご予約
大阪府門真市で価格が似ている物件はこちら
- 大阪府
マイページ物件数 - 15,204件
大阪府新築一戸建て新着物件
-
-

-
- 新築一戸建て
- 6,270万円
-
東大阪市小阪2丁目
-
近鉄難波・奈良線河内小阪駅
-
-
-

-
- 新築一戸建て
- 4,380万円
-
東大阪市西堤本通東3丁目
-
大阪市中央線高井田駅
-
-
-

-
- 新築一戸建て
- 3,380万円
-
八尾市山本町南8丁目
-
近鉄大阪線高安駅
-
-
-

-
- 新築一戸建て
- 6,980万円
-
茨木市西安威1丁目
-
JR東海道線茨木駅
-
-
-

-
- 新築一戸建て
- 3,690万円
-
門真市下馬伏町
-
京阪本線萱島駅
-
-
-

-
- 新築一戸建て
- 3,690万円
-
門真市下馬伏町
-
京阪本線萱島駅
-
-
-

-
- 新築一戸建て
- 3,590万円
-
東大阪市大蓮東2丁目
-
近鉄大阪線弥刀駅
-
- お近くの店舗を探す
-
おすすめ物件
-
-

-
- 新築一戸建て
- 2,599万円
-
泉大津市東助松町3丁目
-
南海電鉄本線北助松
-
-
-

-
- 新築一戸建て
- 5,180万円
-
高槻市北昭和台町
-
阪急電鉄京都線総持寺
-
-
-

-
- 新築一戸建て
- 2,380万円
-
松原市天美北3丁目
-
近鉄南大阪線河内天美
-
-
-

-
- 新築一戸建て
- 4,480万円
-
堺市北区金岡町
-
大阪市御堂筋線新金岡
-
-
-

-
- 新築一戸建て
- 3,980万円
-
泉大津市条南町
-
南海電鉄本線松ノ浜
-
-
-

-
- 新築一戸建て
- 5,180万円
-
大阪市住之江区粉浜西3丁目
-
南海電鉄本線住吉大社
-
-
-

-
- 新築一戸建て
- 3,480万円
-
茨木市橋の内1丁目
-
阪急電鉄京都線総持寺
-
-
-

-
- 新築一戸建て
- 2,680万円
-
和泉市池上町4丁目
-
JR阪和線信太山
-
-
-

-
- 新築一戸建て
- 4,580万円
-
堺市北区長曽根町
-
大阪市御堂筋線新金岡
-
-
-

-
- 新築一戸建て
- 4,780万円
-
堺市北区新金岡町5丁
-
大阪市御堂筋線新金岡
-







担当エージェント:尾関 親代
京橋まで乗車最短9分
落ち着いた住環境でファミリー層に◎♪
住宅ローン相談会開催中です!
ぜひお気軽にお問い合わせください!