厚木市林4丁目の新築戸建
NEW 11.29掲載情報更新日:2025年11月29日 次回更新予定日:2025年12月13日
- 3,780万円
-
- 借入ご希望金額
万円 - 借入期間
年 - 借入金利
% - 月々のお支払い金額
円
- 借入ご希望金額
※ 月々のお支払例は目安の試算となりますので、実際の金額とは異なる場合がございます。詳しくは店舗までお問合わせください。
- 厚木市林4丁目
-
小田急小田原線『本厚木』 バス乗車11分 林 停 徒歩3分 (約240m)
厚木市林4丁目一戸建て | 物件情報
□バス停徒歩3分 □閑静な住宅街 □カースペース2台可(車種による)
物件の設備
- プロパンガス
- 浄水器
- カウンターキッチン
- バス
- TV付バス
- 浴室乾燥機
- トイレ
- トイレ2箇所
- 温水洗浄便座
- 室内洗濯機置場
- 洗髪洗面化粧台
- 照明器具
- カードキー
- 非接触型ICカードキー
- モニタ付インターホン
- LDK15畳以上
- 2面採光
- 複層ガラス
- フローリング
- シャッター雨戸
- 網戸
- クローゼット
- クローゼット2箇所
- クローゼット3箇所
- ウォークインクローゼット
- 床下収納
- 全居室収納
- 屋根裏収納
- シューズインクローク
- バルコニー
- テラス
物件の特徴
- 閑静な住宅街
- 2階建
物件詳細情報
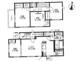
| 価格 | 3,780万円 | 間取り | 4LDK |
|---|---|---|---|
| 物件種別 | 新築一戸建て | ||
| 所在地 | 神奈川県厚木市林4丁目 | ||
| アクセス |
|
||
| 建物面積 | 公100㎡ | 駐車場 | あり |
| 築年月 | 2026年(令和8年)06月予定 | 建築確認 | 第25UDI1K建01388号 |
| 建物構造 | 木造 2階建 | 工法 | |
| 主要採光 | バルコニー | ||
| 保証・評価 | |||
| 土地面積 | 公120㎡(36.30坪) | 接道 | |
| 私道 | セットバック | ||
| 地目 | 宅地 | 地勢 | |
| 権利 | 所有権 |
||
| 都市計画 | 市街化区域 |
用途地域 | 1種住居 |
| 建ぺい/容積率 | 60% / 200% | 土地国土法 | |
| 許可番号 | 建築基準法 | ||
| 法令制限 | 準防火地域 | ||
| 小学区 | 中学区 | ||
| 現況 | 引渡 | 期日指定:2026年06月下旬 | |
| その他費用 | |||
| 周辺環境 | そうてつローゼン 厚木林店 徒歩5分 (約390m) ローソン・スリーエフ 厚木林店 徒歩6分 (約440m) 厚木市立林中学校 徒歩9分 (約670m) クリエイトエス・ディー林北店 徒歩7分 (約500m) 厚木市立緑ケ丘小学校 徒歩10分 (約730m) |
||
| 備考 | □バス停徒歩3分 □閑静な住宅街 □カースペース2台可(車種による) |
||
| 物件番号 | 4507798 | 取引態様 | 媒介 |
取扱店舗情報
| 電話番号 | 046-297-7353 |
|---|---|
| 所在地 | 〒243-0815 神奈川県厚木市妻田西1丁目20-8 |
| 営業時間 | 9:00~18:00 |
| 定休日 | 水曜日 |
| 宅建免許番号 | 神奈川県知事(1)第32223号 |
| アクセス | 店舗への地図はこちら |

来店ご予約
神奈川県厚木市で価格が似ている物件はこちら
- 神奈川県
マイページ物件数 - 3,069件
最近見た物件
神奈川県新築一戸建て新着物件
- お近くの店舗を探す
-













