小平市学園東町 全1棟 新築一戸建住宅
NEW 12.01掲載情報更新日:2025年12月01日 次回更新予定日:2025年12月15日
- 5,280万円
-
- 借入ご希望金額
万円 - 借入期間
年 - 借入金利
% - 月々のお支払い金額
円
- 借入ご希望金額
※ 月々のお支払例は目安の試算となりますので、実際の金額とは異なる場合がございます。詳しくは店舗までお問合わせください。
- 小平市学園東町1丁目
-
西武多摩湖線『一橋学園』 徒歩6分 (約480m)
西武多摩湖線『青梅街道』 徒歩9分 (約720m)
小平市学園東町 全1棟 新築一戸建住宅一戸建て | 物件情報
【新築仲介手数料無料のハウスドゥ立川北】小平市学園東町全1棟1号棟
こちらの物件は【ハウスドゥ立川北限定のゼロキャンペーン対象物件】です。ご購入の際の仲介手数料が【無料】の0円です。中古住宅ご購入のお客様には【Wキャンペーン対象物件】でギフト券をプレゼント!大変お得なキャンペーンなのでぜひご利用ください。さらにローンシュミレーションからライフプランの設計も【無料】で作成いたします。賢く買うならハウスドゥ 立川北で検索!
物件の設備
- 電気
- 公営水道
- 公共下水
- 都市ガス
- 浄水器
- 食器洗浄乾燥機
- 食品庫
- コンロ三口
- カウンターキッチン
- システムキッチン
- バス1坪以上
- 追焚機能
- 浴室乾燥機
- 浴室に窓
- トイレ2箇所
- 温水洗浄便座
- 室内洗濯機置場
- 洗面所独立
- ダウンライト
- リビング階段
- 太陽光発電システム
- 非接触型ICカードキー
- モニタ付インターホン
- 火災警報器/報知機
- LDK15畳以上
- 2面採光
- 全居室複層ガラス
- 全室フローリング
- 床下収納
- 全居室収納
- シューズボックス
物件の特徴
- 耐震構造
- 制震構造
- 小学校徒歩10分以内
- スーパーが近い
- 市街地が近い
- 都市近郊
- 通風良好
- 2階建
- 整形地
- 外壁サイディング
- バリアフリー
- 建設住宅性能評価付
- 設計住宅性能評価付
- 建築確認完了検査済証
- 新築
- 増改築設計図書
- フラット35Sに対応
物件詳細情報
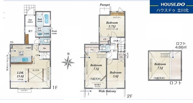
| 価格 | 5,280万円 | 間取り | 3LDK |
|---|---|---|---|
| 物件種別 | 新築一戸建て | ||
| 所在地 | 東京都小平市学園東町1丁目18-4 1号棟 | ||
| アクセス |
|
||
| 建物面積 | 77.7㎡ | 駐車場 | あり 普通:1台 |
| 築年月 | 2025年(令和7年)12月築 | 建築確認 | 第R07SHC114164号 |
| 建物構造 | 木造 2階建 | 工法 | |
| 主要採光 | 南向 | バルコニー | |
| 保証・評価 | 設計住宅性能評価書・建設住宅性能評価書(新築時) |
||
| 土地面積 | 98㎡(29.64坪) | 接道 | 北側(公道)幅 約4.0m |
| 私道 | セットバック | ||
| 地目 | 宅地 | 地勢 | |
| 権利 | 所有権 |
||
| 都市計画 | 市街化区域 |
用途地域 | 1種低層 |
| 建ぺい/容積率 | 40% / 80% | 土地国土法 | |
| 許可番号 | 建築基準法 | ||
| 法令制限 | |||
| 小学区 | 学園東小学校 徒歩8分 (約643m) | 中学区 | 小平第一中学校 徒歩13分 (約987m) |
| 現況 | 建築中 | 引渡 | 期日指定:2025年12月 |
| その他費用 | |||
| 備考 | ☆西武多摩湖線「一橋学園」駅徒歩6分 ビッグ・エー小平学園東町店・・・徒歩約5分/あまいけ一橋学園店・・・徒歩約6分/一橋学園駅前郵便局・・・徒歩約6分 |
||
| 物件番号 | 4510649 | 取引態様 | 媒介 |
取扱店舗情報
ハウスドゥ 立川北 株式会社シティリノベーション 店舗詳細ページへ
| 電話番号 | 042-537-9361 |
|---|---|
| 所在地 | 〒190-0004 東京都立川市柏町3-19-14 フレンテ1F |
| 営業時間 | 9:00~18:00 |
| 定休日 | GW、夏季、冬季 |
| 宅建免許番号 | 東京都知事(2)第100954号 |
| アクセス | 店舗への地図はこちら |

来店ご予約
東京都小平市で価格が似ている物件はこちら
- 東京都
マイページ物件数 - 5,216件
最近見た物件
-
-

-
- 新築一戸建て
- 2,680万円
-
海部郡大治町大字長牧字中道
-
名鉄名古屋本線新川橋
-
-
-

-
- 中古一戸建て
- 2,383万円
-
鹿児島市桜ヶ丘3丁目
-
桜ヶ丘県営住宅前
-
-
-

-
- 中古マンション
- 1,480万円
-
大阪市阿倍野区天王寺町北1丁目
-
JR大阪環状線寺田町
-
東京都新築一戸建て新着物件
-
-

-
- 新築一戸建て
- 6,530万円
-
国分寺市高木町2丁目
-
JR中央本線国立駅
-
-
-

-
- 新築一戸建て
- 6,480万円
-
国分寺市高木町2丁目
-
JR中央本線国立駅
-
-
-

-
- 新築一戸建て
- 6,680万円
-
国分寺市高木町2丁目
-
JR中央本線国立駅
-
-
-

-
- 新築一戸建て
- 6,699万円
-
西東京市北原町2丁目
-
西武新宿線田無駅
-
-
-

-
- 新築一戸建て
- 6,680万円
-
国分寺市高木町2丁目
-
JR中央本線国立駅
-
-
-

-
- 新築一戸建て
- 6,630万円
-
国分寺市高木町2丁目
-
JR中央本線国立駅
-
-
-

-
- 新築一戸建て
- 4,780万円
-
国分寺市並木町3丁目
-
JR中央本線国立駅
-
- お近くの店舗を探す
-
おすすめ物件
-
-

-
- 新築一戸建て
- 5,380万円
-
調布市富士見町2丁目
-
京王相模原線調布
-
-
-

-
- 新築一戸建て
- 2,780万円
-
八王子市下恩方町
-
JR中央本線高尾
-
-
-

-
- 新築一戸建て
- 2,880万円
-
八王子市大和田町7丁目
-
JR中央本線八王子
-
-
-

-
- 新築一戸建て
- 4,180万円
-
足立区東伊興2丁目
-
日暮里舎人ライナー舎人
-
-
-

-
- 新築一戸建て
- 1億699万円
-
世田谷区北烏山3丁目
-
京王線千歳烏山
-
-
-

-
- 新築一戸建て
- 7,390万円
-
江戸川区篠崎町3丁目
-
都営新宿線篠崎
-
-
-

-
- 新築一戸建て
- 2,580万円
-
八王子市川口町
-
JR中央本線八王子
-
-
-

-
- 新築一戸建て
- 5,190万円
-
調布市佐須町1丁目
-
京王線布田
-
-
-

-
- 新築一戸建て
- 6,590万円
-
狛江市東野川2丁目
-
小田急小田原線喜多見
-
-
-

-
- 新築一戸建て
- 7,880万円
-
横浜市青葉区たちばな台2丁目
-
東急田園都市線青葉台
-



担当エージェント:板谷 和友樹
ハウスドゥ立川北のホームページをご覧頂きありがとうございます。
お客様の多くがお家を買うのに不安があるかと思われます。ハウスドゥではお客様の不安や問題解決に一つ一つ誠心誠意お答えいたします。また、お家探しに役立つ多くの物件に関する情報を掲載しております。
ハウスドゥ立川北ではお客様お一人お一人にあったご提案を心がけており、ローンシュミレーションや人工知能を使ったライフプランの作成(要予約)を行いお客様の不安を解決いたします
■頭金は必要なのか?
■ローンは払っていけるのか?
■どのタイミングで住み替えや引越しが出来るのか?etc
お気軽に相談できるハウスドゥ立川北へお問い合わせ下さい
◆ご予約方法◆
直接お電話ください。【0120-537-936】
メールでのご予約も承ります。お気軽にご来店ください。
物件によっては事前に鍵の手配が必要な場合がありますので、お早目にご連絡をいただけるとご案内がスムーズです。
◆ご案内方法◆
①最寄駅や周辺地での待ち合わせ②ハウスドゥ立川北へのご来店などご相談ください。