新潟市中央区学校町通3番町の新築戸建
NEW 02.24掲載情報更新日:2026年02月24日 次回更新予定日:2026年03月10日
- 3,680万円
-
- 借入ご希望金額
万円 - 借入期間
年 - 借入金利
% - 月々のお支払い金額
円
- 借入ご希望金額
※ 月々のお支払例は目安の試算となりますので、実際の金額とは異なる場合がございます。詳しくは店舗までお問合わせください。
- 新潟市中央区学校町通3番町
-
JR越後線『白山』 徒歩12分 (約960m)
新潟市中央区学校町通3番町一戸建て | 物件情報
物件の設備
- 電気
- 公営水道
- 公共下水
- 都市ガス
- 浄水器
- カウンターキッチン
- システムキッチン
- ユニットバス
- 浴室暖房
- 浴室乾燥機
- 浴室に窓
- トイレ
- トイレ2箇所
- 温水洗浄便座
- 洗髪洗面化粧台
- 洗面所独立
- BS
- モニタ付インターホン
- LDK18畳以上
- 複層ガラス
- 全居室複層ガラス
- 全室フローリング
- 24時間換気システム
- 床下収納
- 全居室収納
- シューズボックス
- シューズインクローク
物件の特徴
- 小学校徒歩10分以内
- 2階建
物件詳細情報
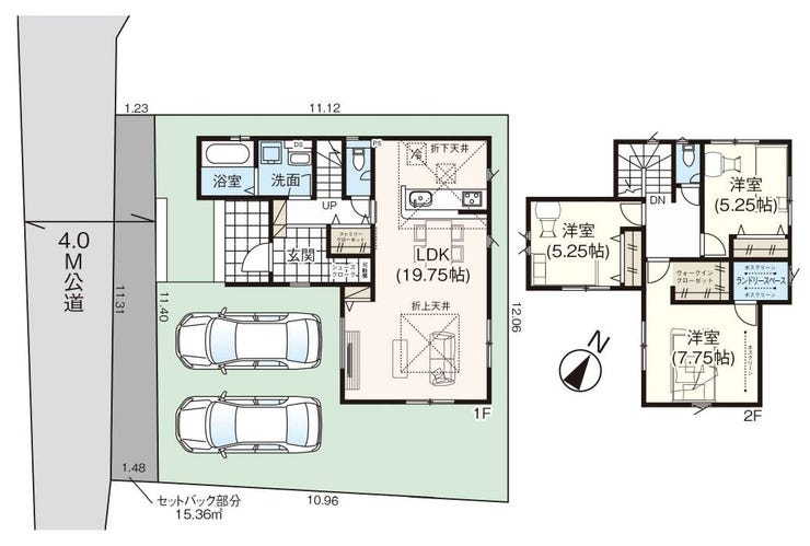
| 価格 | 3,680万円 | 間取り | 3LDK |
|---|---|---|---|
| 物件種別 | 新築一戸建て | ||
| 所在地 | 新潟県新潟市中央区学校町通3番町 | ||
| アクセス |
|
||
| 建物面積 | 97.7㎡ | 駐車場 | あり 普通:2台 |
| 築年月 | 2026年(令和8年)06月予定 | 建築確認 | 第HPA-26-00674-1号 |
| 建物構造 | 木造 2階建 | 工法 | |
| 主要採光 | バルコニー | ||
| 保証・評価 | |||
| 土地面積 | 129.28㎡(39.10坪) | 接道 | 西側(公道)幅 約4.0m 間口 約11.31m |
| 私道 | セットバック | ||
| 地目 | 宅地 | 地勢 | |
| 権利 | 所有権 |
||
| 都市計画 | 市街化区域 |
用途地域 | 1種中高 |
| 建ぺい/容積率 | 60% / 200% | 土地国土法 | |
| 許可番号 | 建築基準法 | ||
| 法令制限 | |||
| 小学区 | 関屋小学校 徒歩6分 (約450m) | 中学区 | 関屋中学校 徒歩25分 (約2000m) |
| 現況 | 空 | 引渡 | 期日指定:2026年06月以降 |
| その他費用 | |||
| 周辺環境 | 新潟市立 関屋小学校 徒歩5分 (約390m) 新潟市立 関屋中学校 徒歩27分 (約2130m) 白山保育園 徒歩7分 (約520m) 旭稲荷神社公園 徒歩7分 (約550m) イオンスタイル白山浦 徒歩8分 (約610m) 新潟白山浦郵便局 徒歩10分 (約760m) マツモトキヨシ 白山駅前店 徒歩10分 (約790m) 白山駅 徒歩10分 (約750m) 新潟市役所 本館 徒歩11分 (約810m) 新潟市役所分館 徒歩14分 (約1070m) |
||
| 備考 | ■駐車:2台可能(※車種によります) | ||
| 物件番号 | 4612829 | 取引態様 | 媒介 |
取扱店舗情報
ハウスドゥ 女池 株式会社リアライズ・コーポレーション 店舗詳細ページへ
| 電話番号 | 025-288-5891 |
|---|---|
| 所在地 | 〒950-0946 新潟県新潟市中央区女池西2-2-9 |
| 営業時間 | 9:30~18:30 |
| 定休日 | 水曜日 |
| 宅建免許番号 | 新潟県知事(4)第4864号 |
| アクセス | 店舗への地図はこちら |

来店ご予約
- 新潟県
マイページ物件数 - 1,618件
最近見た物件
-
-

-
- 中古一戸建て
- 2,980万円
-
浜松市中央区佐鳴台5丁目
-
JR東海道本線浜松
-
-
-

-
- 中古一戸建て
- 1,950万円
-
磐田市見付
-
JR東海道本線御厨
-
-
-

-
- 中古一戸建て
- 1,980万円
-
京都市伏見区深草ヲカヤ町
-
京阪本線龍谷大前深草
-
新潟県新築一戸建て新着物件
-
-

-
- 新築一戸建て
- 3,680万円
-
新潟市中央区学校町通3番町
-
JR越後線白山駅
-
-
-

-
- 新築一戸建て
- 2,890万円
-
新潟市江南区袋津1丁目
-
JR信越本線亀田駅
-
-
-

-
- 新築一戸建て
- 2,950万円
-
新潟市江南区袋津1丁目
-
JR信越本線亀田駅
-
-
-

-
- 新築一戸建て
- 2,880万円
-
新潟市東区物見山4丁目
-
JR白新線大形駅
-
-
-

-
- 新築一戸建て
- 2,980万円
-
新潟市東区物見山4丁目
-
JR白新線大形駅
-
-
-

-
- 新築一戸建て
- 3,380万円
-
新潟市東区中山3丁目
-
JR白新線新潟駅
-
-
-

-
- 新築一戸建て
- 2,780万円
-
新潟市西区坂井東5丁目
-
JR越後線寺尾駅
-
- お近くの店舗を探す
-
おすすめ物件
-
-

-
- 新築一戸建て
- 6,500万円
-
上越市土橋
-
妙高はねうまライン春日山
-



