- TOP>
- 九州・沖縄>
- 熊本県のイベント・オープンハウス情報>
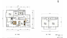
- 【熊本市北区】オープンハウス公開中!地域密着のプロが教える「失敗しない家探し」現地見学会
【熊本市北区】オープンハウス公開中!地域密着のプロが教える「失敗しない家探し」現地見学会
| 開催日時 | 公開中 |
|---|---|
| 物件市区 | 熊本市北区 |
| 参加方法 | 事前お問い合わせ |
| 備考 |
イベント内容・PR
現地案内会を開催しております。
公開中につき、すぐにご案内可能: 現在オープンハウスを開催しています。
まずは実際の建物を見て、暮らしのイメージを膨らませてみませんか?
事前お問い合わせ制: お一人おひとりに寄り添ったご提案ができるよう、個別でご案内いたします。
不動産のプロに相談: お家探しから資金計画、住宅ローン比較まで、ハウスドゥ 龍田店がトータルサポートします。
納得のいく家探しを始めませんか?スタッフが丁寧にサポートいたします。
公開中につき、すぐにご案内可能: 現在オープンハウスを開催しています。
まずは実際の建物を見て、暮らしのイメージを膨らませてみませんか?
事前お問い合わせ制: お一人おひとりに寄り添ったご提案ができるよう、個別でご案内いたします。
不動産のプロに相談: お家探しから資金計画、住宅ローン比較まで、ハウスドゥ 龍田店がトータルサポートします。
納得のいく家探しを始めませんか?スタッフが丁寧にサポートいたします。
フォトギャラリー
|
|




