- TOP>
- 関東>
- 千葉県のイベント・オープンハウス情報>
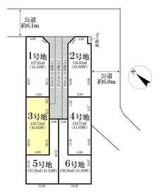
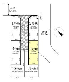
- 【鰭ケ崎16期】◆直接来場OK◆建築条件なし◆全6区画!全区画敷地40坪超◆期間限定売地◎
【鰭ケ崎16期】◆直接来場OK◆建築条件なし◆全6区画!全区画敷地40坪超◆期間限定売地◎
| 開催日時 | 毎週土日祝 10:00~17:00 |
|---|---|
| 物件市区 | 流山市 |
| 会場場所 | 千葉県流山市鰭ケ崎1686 |
| 参加方法 | 直接現地来場 |
| 備考 |
イベント内容・PR
■□現地販売会開催中!□■
ご案内の際は【0800-800-7935】までお気軽にご連絡ください!
まずは資料をという方は、【資料請求・お問合せ】をクリック!
ご希望の場所まで、無料送迎も行っています!
お問い合わせお待ちしております!
【 流山市鰭ケ崎16期 】
◆毎週土・日・祝10:00~17:00開催中!◆
◆直接現地までお越しください!◆
◆お車でお越しの際は【流山市鰭ケ崎1686】とご検索ください◆
●TX線「南流山」・「流山セントラルパーク」駅 歩18分!
流鉄流山線「鰭ケ崎」駅 歩9分!
●鰭ケ崎小学校13分!
●南流山中学校3分!
●みやぞの保育園2分!
●KEIHOKU2分!マルエツ4分!
●建築条件なし♪
お好きなハウスメーカーで建築可能◎
お問い合わせをお待ちしております!
ご案内の際は【0800-800-7935】までお気軽にご連絡ください!
まずは資料をという方は、【資料請求・お問合せ】をクリック!
ご希望の場所まで、無料送迎も行っています!
お問い合わせお待ちしております!
【 流山市鰭ケ崎16期 】
◆毎週土・日・祝10:00~17:00開催中!◆
◆直接現地までお越しください!◆
◆お車でお越しの際は【流山市鰭ケ崎1686】とご検索ください◆
●TX線「南流山」・「流山セントラルパーク」駅 歩18分!
流鉄流山線「鰭ケ崎」駅 歩9分!
●鰭ケ崎小学校13分!
●南流山中学校3分!
●みやぞの保育園2分!
●KEIHOKU2分!マルエツ4分!
●建築条件なし♪
お好きなハウスメーカーで建築可能◎
お問い合わせをお待ちしております!
現地案内図
|
|




