- TOP>
- 東海>
- 愛知県のイベント・オープンハウス情報>
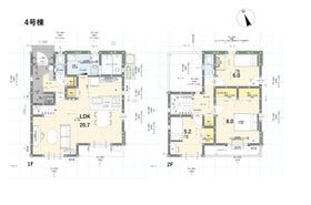
- 新築戸建 小牧市小牧原新田 全4棟
新築戸建 小牧市小牧原新田 全4棟
| 開催日時 | 2026年4月25日(土)~2026年4月26日(日) 10:00~16:00 |
|---|---|
| 物件市区 | 小牧市 |
| 会場場所 | 愛知県小牧市大字小牧原新田字樋下3218-2 |
| 参加方法 | 事前お問い合わせ |
| 備考 |
イベント内容・PR
*:..。o○☆○o。..:*゜*:..。o○☆○o。..:*
新築戸建 小牧市小牧原新田 全4棟
完成見学会開催中!!残り2棟!!
*:..。o○☆○o。..:*゜*:..。o○☆○o。..:*
【★新和建設の大工が建てる新築建売★】
●並列2台駐車可能
●長期優良住宅で税優遇あり♪
●食洗機付き!オール電化!!
●駅や飲食店など商業施設が徒歩圏内に多数あり便利な環境♪
●省令準耐火構造で火災に強い!
●コーチパネル採用で地震に強い!耐震等級3取得!
開催日以外の日時でのご見学もお気軽にご相談ください♪
その他に気になる物件がございましたらご一緒にご案内もさせて頂きます♪
☆見るだけOK!相談するだけOK!☆
?購入に興味はあるけれど、何から始めたらいい?
?私たちっていくらの家が買えるの?
?お家の購入において知っていると得・損する事?
?物件価格とは別にどれくらいのお金が必要なの?
?税金関係、住宅ローンのご相談?
~ご来場お待ちしております!~
※ご予約の上お越しいただきますようお願い申し上げます。
ハウスドゥ 犬山
TEL 0568-48-2400
新築戸建 小牧市小牧原新田 全4棟
完成見学会開催中!!残り2棟!!
*:..。o○☆○o。..:*゜*:..。o○☆○o。..:*
【★新和建設の大工が建てる新築建売★】
●並列2台駐車可能
●長期優良住宅で税優遇あり♪
●食洗機付き!オール電化!!
●駅や飲食店など商業施設が徒歩圏内に多数あり便利な環境♪
●省令準耐火構造で火災に強い!
●コーチパネル採用で地震に強い!耐震等級3取得!
開催日以外の日時でのご見学もお気軽にご相談ください♪
その他に気になる物件がございましたらご一緒にご案内もさせて頂きます♪
☆見るだけOK!相談するだけOK!☆
?購入に興味はあるけれど、何から始めたらいい?
?私たちっていくらの家が買えるの?
?お家の購入において知っていると得・損する事?
?物件価格とは別にどれくらいのお金が必要なの?
?税金関係、住宅ローンのご相談?
~ご来場お待ちしております!~
※ご予約の上お越しいただきますようお願い申し上げます。
ハウスドゥ 犬山
TEL 0568-48-2400
フォトギャラリー
現地案内図
|
|




