赤堤4丁目 売地 B区画
掲載情報更新日:2026年01月05日 次回更新予定日:2026年01月19日
- 1億499万円
-
- 借入ご希望金額
万円 - 借入期間
年 - 借入金利
% - 月々のお支払い金額
円
- 借入ご希望金額
※ 月々のお支払例は目安の試算となりますので、実際の金額とは異なる場合がございます。詳しくは店舗までお問合わせください。
- 世田谷区赤堤4丁目
-
京王線『下高井戸』 徒歩8分 (約640m)
東急世田谷線『松原』 徒歩4分 (約320m)
小田急小田原線『豪徳寺』 徒歩15分 (約1200m)
赤堤4丁目 売地 B区画土地 | 物件情報
■駅徒歩4分&3沿線利用可能♪ ■駅まで平坦・閑静立地 ■建物プラン例あり
《Access》
・京王線・世田谷線「下高井戸駅」歩8分
・世田谷線「松原駅」歩4分
・小田急線「豪徳寺駅」歩15分
《Point》
◆駅まで4分&3沿線利用可能♪都心へのアクセス良好◎
◆前面道路約3.80m!区画内では一番車通りが少ないため、車庫入れもストレスフリー♪
◆高い土地能力が魅力
建ぺい率60%×容積率150%
物件の設備
- 公営水道
- 公共下水
- 都市ガス
物件の特徴
- 3沿線以上利用可
- 駅まで平坦
- 小学校徒歩10分以内
- 緑豊かな住宅地
- 閑静な住宅街
- 周辺交通量少なめ
- 市街地が近い
- 眺望良好
- 陽当り良好
- 整形地
- 更地渡
物件詳細情報
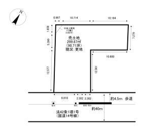
| 価格 | 1億499万円 | 坪単価 | 坪495.9万円 |
|---|---|---|---|
| 物件種別 | 土地 | ||
| 所在地 | 東京都世田谷区赤堤4丁目 B区画 | ||
| アクセス |
|
||
| 土地面積 | 実70.01㎡(21.17坪) | 接道 | 北側(公道)幅 約3.8m |
| 私道 | セットバック | ||
| 最適用途 | 造成完了時期 | ||
| 地目 | 宅地 | 地勢 | |
| 権利 | 所有権 |
||
| 分譲情報 | |||
| 都市計画 | 市街化区域 |
用途地域 | 1種低層 |
| 建ぺい/容積率 | 60%(一部70% 含む) / 150% | 土地国土法 | |
| 許可番号 | 建築基準法 | ||
| 法令制限 | |||
| 小学区 | 松沢小学校 徒歩2分 (約120m) | 中学区 | 松沢中学校 徒歩11分 (約820m) |
| 現況 | 更地 | 引渡 | 相談(更地渡し) |
| 建築条件 | 建築条件付 | ||
| その他費用 | |||
| 周辺環境 | 世田谷区立松沢小学校 徒歩2分 (約120m) 赤堤保育園 徒歩5分 (約330m) ココカラファイン松原店 徒歩6分 (約420m) オオゼキ松原店 徒歩6分 (約430m) 赤松公園 徒歩7分 (約490m) 下高井戸商店街 徒歩8分 (約610m) ローソン世田谷赤堤三丁目店 徒歩9分 (約660m) 世田谷区立松沢中学校 徒歩11分 (約820m) すずらん通り商店街 徒歩16分 (約1210m) |
||
| 備考 | |||
| 物件番号 | 4465529 | 取引態様 | 媒介 |
取扱店舗情報
ハウスドゥ 千歳船橋 R2-CONNECT株式会社 店舗詳細ページへ
| 電話番号 | 03-5799-7621 |
|---|---|
| 所在地 | 〒156-0054 東京都世田谷区桜丘5丁目47-19 |
| 営業時間 | 9:00~19:00 |
| 定休日 | 火曜日、水曜日 |
| 宅建免許番号 | 東京都知事(1)第107079号 |
| アクセス | 店舗への地図はこちら |

来店ご予約
- 東京都
マイページ物件数 - 4,913件
東京都土地新着物件
-
-

-
- 土地
- 1億5,800万円
-
江戸川区篠崎町7丁目
-
都営新宿線篠崎駅
-
-
-

-
- 土地
- 5,250万円
-
江戸川区上篠崎1丁目
-
都営新宿線篠崎駅
-
-
-

-
- 土地
- 6,980万円
-
世田谷区粕谷3丁目
-
京王線千歳烏山駅
-
-
-

-
- 土地
- 3,330万円
-
葛飾区東立石4丁目
-
京成押上線京成立石駅
-
-
-

-
- 土地
- 6,580万円
-
狛江市岩戸南3丁目
-
小田急小田原線喜多見駅
-
-
-

-
- 土地
- 8,990万円
-
世田谷区野毛1丁目
-
東急大井町線等々力駅
-
-
-

-
- 土地
- 7,990万円
-
世田谷区野毛1丁目
-
東急大井町線等々力駅
-
- お近くの店舗を探す
-
おすすめ物件
-
-

-
- 土地
- 7,000万円
-
浦安市今川3丁目
-
JR京葉線新浦安
-
-
-

-
- 土地
- 2億1,800万円
-
川崎市多摩区登戸
-
小田急小田原線登戸
-
-
-

-
- 土地
- 7,000万円
-
浦安市今川3丁目
-
JR京葉線新浦安
-
-
-

-
- 土地
- 1億4,000万円
-
浦安市今川3丁目
-
JR京葉線新浦安
-
-
-

-
- 土地
- 2,800万円
-
葛飾区水元2丁目
-
JR千代田・常磐緩行線金町
-
-
-

-
- 土地
- 1億3,280万円
-
世田谷区船橋4丁目
-
小田急小田原線千歳船橋
-
-
-

-
- 土地
- 6,500万円
-
練馬区東大泉6丁目
-
西武池袋・豊島線大泉学園
-
-
-

-
- 土地
- 4,780万円
-
世田谷区桜上水2丁目
-
京王線桜上水
-
-
-

-
- 土地
- 5,780万円
-
板橋区東新町2丁目
-
東武東上線ときわ台
-
-
-

-
- 土地
- 880万円
-
青梅市畑中2丁目
-
JR青梅線青梅
-




世田谷区物件はハウスドゥ千歳船橋へお任せください。
物件、資金計画、周辺環境もご案内させて頂きます♪
資料請求、ご見学お気軽にお問合せください。