横須賀市久比里1丁目の事業用物件
掲載情報更新日:2026年01月03日 次回更新予定日:2026年01月17日
- 6,000万円
-
- 借入ご希望金額
万円 - 借入期間
年 - 借入金利
% - 月々のお支払い金額
円
- 借入ご希望金額
※ 月々のお支払例は目安の試算となりますので、実際の金額とは異なる場合がございます。詳しくは店舗までお問合わせください。
- 横須賀市久比里1丁目
-
京急久里浜線『京急久里浜』 徒歩8分 (約640m)
JR横須賀線『久里浜』 徒歩9分 (約720m)
横須賀市久比里1丁目の事業用物件 | 物件情報
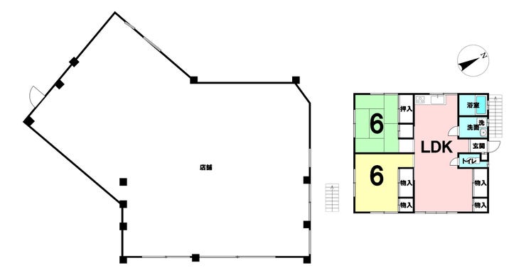
過去コンビニだったロードサイドの店舗です 京急久里浜駅より徒歩8分
1階店舗はスケルトン状態です
2階は住居や事務所として利用可能
建替え用地としてもご検討ください
物件の設備
- 電気
- オール電化
- 上水道
- 公営水道
- 下水道
- 給湯
- バス
- オートバス
- シャワー
- トイレ
- 温水洗浄便座
- 室内洗濯機置場
物件詳細情報
| 価格 | 6,000万円 | 間取り | 2LDK |
|---|---|---|---|
| 物件種別 | 事業用(店舗付住宅・一棟所有) | ||
| 所在地 | 神奈川県横須賀市久比里1丁目 | ||
| アクセス |
|
||
| 建物面積 | 公204.71㎡ | 駐車場 | |
| 築年月 | 1986年(昭和61年)12月築 | ||
| 建物構造 | 鉄骨 (一部 木造 ) 2階建 | 工法 | |
| 主要採光 | 東向 | バルコニー | |
| 保証・評価 | |||
| リフォーム | |||
| 土地面積 | 公213.41㎡(64.55坪) | 接道 | 東側(公道)幅 約9.6m 間口 約17.73m |
| 私道 | セットバック | 無 | |
| 地目 | 宅地 | 地勢 | 平坦 |
| 権利 | 所有権 |
||
| 都市計画 | 市街化区域 |
用途地域 | 1種住居 |
| 建ぺい/容積率 | 60% / 200% | 土地国土法 | |
| 許可番号 | 建築基準法 | ||
| 法令制限 | |||
| 小学区 | 久里浜小学校 徒歩8分 (約600m) | 中学区 | 久里浜中学校 徒歩10分 (約800m) |
| 現況 | 空 | 引渡 | 相談 |
| その他費用 | |||
| 収益情報 | |||
| 備考 | |||
| 物件番号 | 4241381 | 取引態様 | 一般 |
取扱店舗情報
ハウスドゥ 横須賀衣笠 株式会社ドリームプランニング 店舗詳細ページへ
| 電話番号 | 046-850-6133 |
|---|---|
| 所在地 | 〒238-0031 神奈川県横須賀市衣笠栄町2丁目15-3 |
| 営業時間 | 10:00~19:00 |
| 定休日 | 水曜日、年末年始 |
| 宅建免許番号 | 神奈川県知事(4)第25736号 |
| アクセス | 店舗への地図はこちら |

来店ご予約
- 神奈川県
マイページ物件数 - 3,053件
最近見た物件
-
-

-
- 新築一戸建て
- 5,580万円
-
広島市南区旭1丁目
-
旭町バス停
-
-
-

-
- 収益
- 290万円
-
白山市八ツ矢新町
-
IRいしかわ鉄道松任
-
-
-

-
- 土地
- 480万円
-
半田市岩滑中町7丁目
-
名鉄河和線半田口
-
神奈川県事業用・収益物件新着物件
-
-

-
- 収益
- 1億5,380万円
-
横須賀市佐野町2丁目
-
JR横須賀線衣笠駅
-
- お近くの店舗を探す
-
おすすめ物件
-
-

-
- 収益
- 8,760万円
-
藤沢市川名
-
JR東海道本線藤沢
-




















担当エージェント:服部 勝
登記の土地面積では建物は建蔽率オーバーとなっておりますが、実測の土地面積は250㎡ほどありますので適法となります。
売主は再測量して登記変更後お引渡しします。