足立区舎人5丁目の中古戸建
掲載情報更新日:2026年04月06日 次回更新予定日:2026年04月20日
- 3,250万円
-
- 借入ご希望金額
万円 - 借入期間
年 - 借入金利
% - 月々のお支払い金額
円
- 借入ご希望金額
※ 月々のお支払例は目安の試算となりますので、実際の金額とは異なる場合がございます。詳しくは店舗までお問合わせください。
- 足立区舎人5丁目
-
日暮里舎人ライナー『見沼代親水公園』 徒歩4分 (約320m)
足立区舎人5丁目一戸建て | 物件情報
★人気のエリアに戸建が登場です★オーナーチェンジ★
人気エリアに戸建が登場です!
◆オーナーチェンジ
◆表面利回り5.06%
物件の特徴
- 3階建以上
物件詳細情報
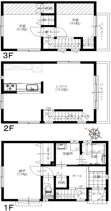
| 価格 | 3,250万円 | 間取り | 2LDK |
|---|---|---|---|
| 物件種別 | 中古一戸建て(収益) | ||
| 所在地 | 東京都足立区舎人5丁目 | ||
| アクセス |
|
||
| 建物面積 | 84.04㎡ | 駐車場 | なし |
| 築年月 | 2015年(平成27年)05月築 | ||
| 建物構造 | 木造 3階建 | 工法 | |
| 主要採光 | バルコニー | ||
| 保証・評価 | |||
| リフォーム | |||
| 土地面積 | 69.27㎡(20.95坪) | 接道 | |
| 私道 | セットバック | ||
| 地目 | 宅地 | 地勢 | |
| 権利 | 所有権 |
||
| 都市計画 | 用途地域 | 1種低層 | |
| 建ぺい/容積率 | 土地国土法 | ||
| 許可番号 | 建築基準法 | ||
| 法令制限 | |||
| 小学区 | 中学区 | ||
| 現況 | 賃貸中 | 引渡 | 相談 |
| その他費用 | |||
| 収益情報 | 表面利回り:5.06% 家賃収入:0円 |
||
| 備考 | |||
| 物件番号 | 4387657 | 取引態様 | 媒介 |
※利回りとは、当該不動産の1年間の予定賃料収入の不動産取得対価に対する割合であり、公租公課その他当該物件を維持するために必要な費用の控除前のものです。また、予定賃料収入が確実に得られる事を保証するものではありません。
※利回り、想定年収に関する詳しい内容は、直接店舗までお問い合わせ下さい。
取扱店舗情報
ハウスドゥ 鳩ヶ谷坂下町 株式会社ウェルカムホーム 店舗詳細ページへ
| 電話番号 | 048-242-5180 |
|---|---|
| 所在地 | 〒334-0003 埼玉県川口市坂下町3丁目32-21 |
| 営業時間 | 9:00~18:00 |
| 定休日 | 火曜日、水曜日、年末年始 |
| 宅建免許番号 | 埼玉県知事(1)第25389号 |
| アクセス | 店舗への地図はこちら |

来店ご予約
- 東京都
マイページ物件数 - 5,753件
最近見た物件
東京都事業用・収益物件新着物件
-
-

-
- 事業用
- 9,400万円
-
練馬区上石神井3丁目
-
西武新宿線上石神井駅
-
-
-

-
- 収益
- 1億2,000万円
-
北区滝野川1丁目
-
都電荒川線滝野川一丁目駅
-
-
-

-
- 収益
- 8,780万円
-
品川区中延1丁目
-
東急池上線荏原中延駅
-
-
-

-
- 収益
- 4,990万円
-
練馬区石神井町7丁目
-
西武池袋・豊島線石神井公園駅
-
-
-

-
- 収益
- 8,380万円
-
葛飾区鎌倉1丁目
-
京成本線京成小岩駅
-
-
-

-
- 収益
- 3,680万円
-
江戸川区上一色2丁目
-
JR総武・中央緩行線小岩駅
-
-
-

-
- 収益
- 6,600万円
-
江戸川区南小岩4丁目
-
JR総武・中央緩行線小岩駅
-
- お近くの店舗を探す
-
おすすめ物件
-
-

-
- 収益
- 2,780万円
-
足立区大谷田4丁目
-
東京メトロ千代田線北綾瀬
-
-
-

-
- 事業用
- 3,980万円
-
三戸郡南部町大字小向字小田沢
-
青い森鉄道諏訪ノ平
-
-
-

-
- 収益
- 7,450万円
-
大田区南蒲田1丁目
-
京急本線京急蒲田
-
-
-

-
- 収益
- 2,080万円
-
江戸川区東葛西1丁目
-
東京メトロ東西線葛西
-
-
-

-
- 収益
- 730万円
-
葛飾区金町3丁目
-
JR千代田・常磐緩行線金町
-






担当エージェント:富重 隆文
お客様に「寄り添う」会社です。不動産の購入は金額も大きく、不安なことがたくさんあると思います。ぜひ、一度ご連絡ください。不動産に関するプロとして、お客様の課題に一つ一つ向き合っていきます。