相模原市中央区上溝1丁目の中古戸建
掲載情報更新日:2025年12月18日 次回更新予定日:2026年01月01日
- 3,600万円
-
- 借入ご希望金額
万円 - 借入期間
年 - 借入金利
% - 月々のお支払い金額
円
- 借入ご希望金額
※ 月々のお支払例は目安の試算となりますので、実際の金額とは異なる場合がございます。詳しくは店舗までお問合わせください。
- 相模原市中央区上溝1丁目
-
JR相模線『上溝』 徒歩23分 (約1840m)
JR相模線『上溝』 バス乗車6分 作の口 停 徒歩3分 (約240m)
相模原市中央区上溝1丁目一戸建て | 物件情報
物件の設備
- プロパンガス
- カウンターキッチン
- システムキッチン
- トイレ2箇所
- 室内洗濯機置場
- 洗面所独立
- LDK15畳以上
- フローリング
- 全室フローリング
- クローゼット
- ウォークインクローゼット
- 床下収納
- シューズインクローク
- 2WAYバルコニー
物件の特徴
- 2階建
物件詳細情報
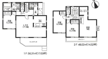
| 価格 | 3,600万円 | 間取り | 4LDK |
|---|---|---|---|
| 物件種別 | 中古一戸建て(収益) | ||
| 所在地 | 神奈川県相模原市中央区上溝1丁目 16号棟/16区画 | ||
| アクセス |
|
||
| 建物面積 | 104.33㎡ | 駐車場 | あり |
| 築年月 | 2024年(令和6年)11月築 | ||
| 建物構造 | 木造 2階建 | 工法 | |
| 主要採光 | バルコニー | ||
| 保証・評価 | |||
| リフォーム | |||
| 土地面積 | 175.96㎡(53.22坪) | 接道 | 北東側(公道)幅 約5.0m |
| 私道 | セットバック | ||
| 地目 | 宅地 | 地勢 | |
| 権利 | 所有権 |
||
| 都市計画 | 市街化区域 |
用途地域 | 2種中高 |
| 建ぺい/容積率 | 60% / 200% | 土地国土法 | |
| 許可番号 | 建築基準法 | ||
| 法令制限 | 準防火地域 | ||
| 小学区 | 作の口小学校 徒歩12分 (約890m) | 中学区 | 上溝中学校 徒歩25分 (約1955m) |
| 現況 | 賃貸中 | 引渡 | 相談 |
| その他費用 | |||
| 収益情報 | |||
| 備考 | ■むくどりこども園・・・約429m(徒歩6分) ■てるて幼稚園・・・約489m(徒歩7分) ■オーケー 下九沢店・・・約918m(徒歩12分) ■セブン-イレブン 相模原上溝1丁目店・・・約344m(徒歩5分) ■セイムス 作の口店・・・約494m(徒歩7分) ■サーティワンアイスクリーム 相模原横山店・・・約1021m(徒歩13分) ■AOI湘北病院・・・約629m(徒歩8分) ■上溝川辺公園・・・約347m(徒歩5分) |
||
| 物件番号 | 4468762 | 取引態様 | 媒介 |
※利回りとは、当該不動産の1年間の予定賃料収入の不動産取得対価に対する割合であり、公租公課その他当該物件を維持するために必要な費用の控除前のものです。また、予定賃料収入が確実に得られる事を保証するものではありません。
※利回り、想定年収に関する詳しい内容は、直接店舗までお問い合わせ下さい。
取扱店舗情報
ハウスドゥ!相模原横山台店 夢のなかまたち株式会社 店舗詳細ページへ
| 電話番号 | 042-851-3970 |
|---|---|
| 所在地 | 〒252-0241 神奈川県相模原市中央区横山台2丁目13番1号1F |
| 営業時間 | 9:00~18:00 |
| 定休日 | 火曜日、水曜日 |
| 宅建免許番号 | 神奈川県知事(2)第30659号 |
| アクセス | 店舗への地図はこちら |

来店ご予約
- 神奈川県
マイページ物件数 - 3,157件
最近見た物件
-
-

-
- 土地
- 50万円
-
関市関ノ上1丁目
-
長良川鉄道松森
-
-
-

-
- 収益
- 1,150万円
-
岩出市新田広芝
-
下井阪駅
-
-
-

-
- 土地
- 1,170万円
-
三重郡菰野町大字千草
-
近鉄湯の山線湯の山温泉
-
神奈川県事業用・収益物件新着物件
-
-

-
- 収益
- 1億5,380万円
-
横須賀市佐野町2丁目
-
JR横須賀線衣笠駅
-
- お近くの店舗を探す
-
おすすめ物件
-
-

-
- 収益
- 8,760万円
-
藤沢市川名
-
JR東海道本線藤沢
-



