可児市瀬田の土地
掲載情報更新日:2026年02月26日 次回更新予定日:2026年03月12日
- 860万円
-
- 借入ご希望金額
万円 - 借入期間
年 - 借入金利
% - 月々のお支払い金額
円
- 借入ご希望金額
※ 月々のお支払例は目安の試算となりますので、実際の金額とは異なる場合がございます。詳しくは店舗までお問合わせください。
- 可児市瀬田
-
名鉄広見線『明智』 徒歩16分 (約1280m)
可児市瀬田土地 | 物件情報
物件の設備
- 電気
- 上水道
- 下水道
- 都市ガス
物件の特徴
- 即引渡可
物件詳細情報
| 価格 | 860万円 | 坪単価 | 坪13.6万円 |
|---|---|---|---|
| 物件種別 | 土地 | ||
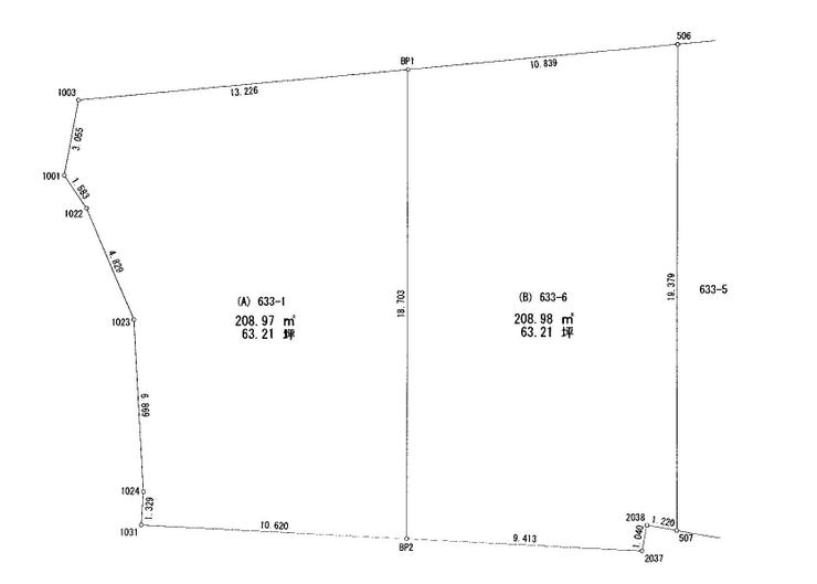
| 所在地 | 岐阜県可児市瀬田633-1 | ||
| アクセス |
|
||
| 土地面積 | 公208.97㎡(63.21坪) | 接道 | |
| 私道 | セットバック | ||
| 最適用途 | 住宅用地 | 造成完了時期 | |
| 地目 | 畑 | 地勢 | |
| 権利 | 所有権 |
||
| 都市計画 | 非線引区域 |
用途地域 | 指定無 |
| 建ぺい/容積率 | 60% / 160% | 土地国土法 | |
| 許可番号 | 建築基準法 | ||
| 法令制限 | 特定用途制限地域 | ||
| 小学区 | 中学区 | ||
| 現況 | 更地 | 引渡 | 即 |
| 建築条件 | 建築条件付 | ||
| その他費用 | |||
| 備考 | 上下水道分担金として金66万円必要となります。 農地転用許可済み。引き渡し時までに地目を『宅地』へ転用し引き渡します。 土砂災害警戒区域(イエローゾーン)の指定有り。 |
||
| 物件番号 | 3440228 | 取引態様 | 売主 |
取扱店舗情報
| 電話番号 | 0575-46-8652 |
|---|---|
| 所在地 | 〒501-3241 岐阜県関市西仙房1-1 |
| 営業時間 | 9:00-19:00 |
| 定休日 | 水曜日 |
| 宅建免許番号 | 岐阜県知事(5)第4358号 |
| アクセス | 店舗への地図はこちら |

来店ご予約
岐阜県可児市で価格が似ている物件はこちら
- 岐阜県
マイページ物件数 - 4,984件
最近見た物件
-
-

-
- 土地
- 490万円
-
南都留郡山中湖村平野
-
富士急行富士山
-
-
-

-
- 土地
- 270万円
-
土岐市駄知町
-
JR中央本線土岐市
-
-
-

-
- 土地
- 686万円
-
岩出市西国分
-
JR和歌山線岩出
-
岐阜県土地新着物件
-
-

-
- 土地
- 410万円
-
加茂郡富加町滝田
-
長良川鉄道富加駅
-
-
-

-
- 土地
- 1,200万円
-
羽島郡岐南町徳田1丁目
-
名鉄名古屋本線岐南駅
-
-
-

-
- 土地
- 680万円
-
岐阜市益屋町
-
名鉄名古屋本線名鉄岐阜駅
-
-
-

-
- 土地
- 1,150万円
-
岐阜市須賀3丁目
-
JR東海道本線西岐阜駅
-
-
-

-
- 土地
- 1,080万円
-
岐阜市須賀3丁目
-
JR東海道本線西岐阜駅
-
-
-

-
- 土地
- 1,500万円
-
羽島郡岐南町三宅5丁目
-
名鉄各務原線切通駅
-
-
-

-
- 土地
- 600万円
-
羽島市正木町曲利
-
名鉄竹鼻・羽島線竹鼻駅
-
- お近くの店舗を探す
-
おすすめ物件
-
-

-
- 土地
- 820万円
-
関市小屋名
-
長良川鉄道関
-
-
-

-
- 土地
- 1,400万円
-
大垣市中川町3丁目
-
JR東海道本線大垣
-
-
-

-
- 土地
- 980万円
-
瑞穂市別府
-
JR東海道本線穂積
-
-
-

-
- 土地
- 600万円
-
関市津保川台2丁目
-
関シティバス津保川台停
-
-
-

-
- 土地
- 650万円
-
多治見市市之倉町13丁目
-
JR中央本線古虎渓
-
-
-

-
- 土地
- 2,525万円
-
関市下有知
-
岐阜バス下有知神社前
-
-
-

-
- 土地
- 1,000万円
-
多治見市上町3丁目
-
JR中央本線多治見
-
-
-

-
- 土地
- 980万円
-
岐阜市領下
-
名鉄各務原線細畑
-
-
-

-
- 土地
- 250万円
-
多治見市滝呂町7丁目
-
JR中央本線多治見
-
-
-

-
- 土地
- 728万円
-
美濃加茂市本郷町4丁目
-
JR高山本線古井
-


