川口市大字安行慈林の土地
NEW 04.17掲載情報更新日:2026年04月17日 次回更新予定日:2026年05月01日
- 2,480万円
-
- 借入ご希望金額
万円 - 借入期間
年 - 借入金利
% - 月々のお支払い金額
円
- 借入ご希望金額
※ 月々のお支払例は目安の試算となりますので、実際の金額とは異なる場合がございます。詳しくは店舗までお問合わせください。
- 川口市大字安行慈林
-
埼玉高速鉄道『新井宿』 徒歩14分 (約1120m)
埼玉高速鉄道『鳩ヶ谷』 徒歩24分 (約1920m)
川口市大字安行慈林土地 | 物件情報
人気エリアに売地が登場!令和6年12月確定測量済み☆コンビニ・スーパーが徒歩10分圏内♪
人気エリアに売地が登場です!
◆令和6年12月確定測量済み
◆建築条件ございません
物件の設備
- 公営水道
- 公共下水
- 都市ガス
物件の特徴
- 南側道路面す
- 建築条件無
物件詳細情報
| 価格 | 2,480万円 | 坪単価 | 坪55.9万円 |
|---|---|---|---|
| 物件種別 | 土地 | ||
| 所在地 | 埼玉県川口市大字安行慈林 | ||
| アクセス |
|
||
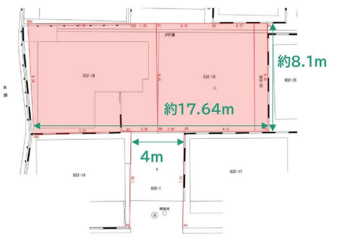
| 土地面積 | 公146.71㎡(44.37坪) | 接道 | 南側(私道)幅 約4.0m |
| 私道 | セットバック | ||
| 最適用途 | 造成完了時期 | ||
| 地目 | 宅地 | 地勢 | |
| 権利 | 所有権 |
||
| 都市計画 | 市街化区域 |
用途地域 | 1種住居 |
| 建ぺい/容積率 | 60% / 200% | 土地国土法 | |
| 許可番号 | 建築基準法 | ||
| 法令制限 | |||
| 小学区 | 慈林小学校 徒歩5分 (約400m) | 中学区 | 鳩ヶ谷中学校 徒歩14分 (約1100m) |
| 現況 | 更地 | 引渡 | 未記入 |
| 建築条件 | 建築条件なし | ||
| その他費用 | |||
| 周辺環境 | 慈林薬師宝厳院 徒歩3分 (約210m) 三浦歯科医院 徒歩4分 (約310m) 翠ケ丘幼稚園 徒歩5分 (約380m) 安行慈林堂下公園 徒歩8分 (約590m) 慈林神社 徒歩6分 (約410m) 川口市立慈林小学校 徒歩6分 (約460m) 安行慈林南公園 徒歩9分 (約670m) 魚勝 徒歩7分 (約560m) 桜保育所 徒歩9分 (約720m) 安行慈林上公園 徒歩8分 (約580m) |
||
| 備考 | |||
| 物件番号 | 4680175 | 取引態様 | 媒介 |
取扱店舗情報
ハウスドゥ 鳩ヶ谷坂下町 株式会社ウェルカムホーム 店舗詳細ページへ
| 電話番号 | 048-242-5180 |
|---|---|
| 所在地 | 〒334-0003 埼玉県川口市坂下町3丁目32-21 |
| 営業時間 | 9:00~18:00 |
| 定休日 | 火曜日、水曜日、年末年始 |
| 宅建免許番号 | 埼玉県知事(1)第25389号 |
| アクセス | 店舗への地図はこちら |

来店ご予約
埼玉県川口市で価格が似ている物件はこちら
- 埼玉県
マイページ物件数 - 3,152件
最近見た物件
埼玉県土地新着物件
- お近くの店舗を探す
-
おすすめ物件
-
-

-
- 土地
- 3,980万円
-
さいたま市大宮区大成町2丁目
-
埼玉新都市交通鉄道博物館(大成)
-
-
-

-
- 土地
- 2,280万円
-
上尾市大字壱丁目
-
JR高崎線上尾
-
-
-

-
- 土地
- 780万円
-
加須市阿佐間
-
湘南新宿ライン宇須栗橋
-
-
-

-
- 土地
- 3,180万円
-
さいたま市見沼区大字小深作
-
東武野田線七里
-
-
-

-
- 土地
- 1,880万円
-
桶川市大字上日出谷
-
JR高崎線桶川
-
-
-

-
- 土地
- 1,200万円
-
加須市北下新井
-
湘南新宿ライン宇須栗橋
-
-
-

-
- 土地
- 500万円
-
邑楽郡大泉町仙石2丁目
-
東武小泉線西小泉
-
-
-

-
- 土地
- 500万円
-
比企郡滑川町大字羽尾
-
東武東上線森林公園
-
-
-

-
- 土地
- 580万円
-
加須市馬内
-
東武伊勢崎・大師線加須
-
-
-

-
- 土地
- 3,499万円
-
さいたま市西区大字佐知川
-
JR京浜東北・根岸線大宮
-













担当エージェント:富重 隆文
お客様に「寄り添う」会社です。不動産の購入は金額も大きく、不安なことがたくさんあると思います。ぜひ、一度ご連絡ください。不動産に関するプロとして、お客様の課題に一つ一つ向き合っていきます。