生駒市北新町の中古戸建
掲載情報更新日:2026年05月22日 次回更新予定日:2026年06月05日
- 4,200万円
-
- 借入ご希望金額
万円 - 借入期間
年 - 借入金利
% - 月々のお支払い金額
円
- 借入ご希望金額
※ 月々のお支払例は目安の試算となりますので、実際の金額とは異なる場合がございます。詳しくは店舗までお問合わせください。
- 生駒市北新町
-
近鉄難波・奈良線『生駒』 徒歩6分 (約480m)
近鉄けいはんな線『生駒』 徒歩6分 (約480m)
近鉄生駒線『生駒』 徒歩6分 (約480m)
生駒市北新町一戸建て | 物件情報
生駒駅徒歩約6分と便利です◎9LDKの広い物件です。土地は約317坪!
☆☆ 地域密着!ハウスドゥ生駒俵口店 ☆☆
ハウスドゥ生駒俵口店は、一人ひとりのお客様を大切に、
丁寧で分かりやすい接客でお迎えいたします!
住宅ローンやご購入に関するアドバイス、ご売却方法など
不動産のプロとして分かりやすくご説明させて頂いております。
▽店舗情報
生駒駅から車で約5分・生駒ICからすぐ!
コーナン、ほっともっとのすぐ隣にございます。
最大10台の駐車スペースも完備♪
店内には、お子様も楽しめるキッズスペースもございますので、お子様連れのお客様でも大歓迎です◎
当店では定期的に換気、洗浄・消毒、アルコール消毒設置、従業員のマスク着用、手洗いうがい等
コロナ対策を徹底しております。安心してご来店くださいませ。
皆様のご来店を心よりお待ちしております。
TEL:0743‐86‐4877
物件の設備
- 電気
- 上水道
- 公営水道
- 浄化槽
- 集中浄化槽
- 都市ガス
物件の特徴
- 2沿線利用可
- 3沿線以上利用可
- 前道6m以上
- 陽当り良好
- 2階建
- 二世帯向
物件詳細情報
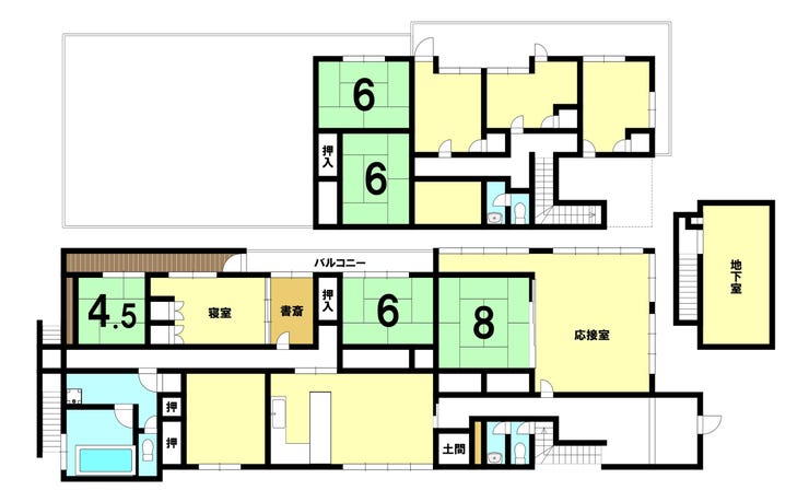
| 価格 | 4,200万円 | 間取り | 9LDK |
|---|---|---|---|
| 物件種別 | 中古一戸建て | ||
| 所在地 | 奈良県生駒市北新町 | ||
| アクセス |
|
||
| 建物面積 | 299.7㎡ | 駐車場 | なし |
| 築年月 | 1970年(昭和45年)12月築 | ||
| 建物構造 | SRC 2階建 | 工法 | |
| 主要採光 | バルコニー | ||
| 保証・評価 | |||
| リフォーム | |||
| 土地面積 | 1049.83㎡(317.57坪) | 接道 | 西側幅 約6.0m |
| 私道 | セットバック | 無 | |
| 地目 | 宅地 | 地勢 | |
| 権利 | 所有権 |
||
| 都市計画 | 市街化区域 |
用途地域 | 1種低層 |
| 建ぺい/容積率 | 40% / 60% | 土地国土法 | |
| 許可番号 | 建築基準法 | ||
| 法令制限 | |||
| 小学区 | 生駒小学校 徒歩20分 (約1600m) | 中学区 | 生駒中学校 徒歩10分 (約750m) |
| 現況 | 空 | 引渡 | 相談 |
| その他費用 | |||
| 周辺環境 | 南都銀行生駒支店 徒歩4分 (約270m) スーパーマーケットKINSHO新生駒店 徒歩8分 (約620m) いこまこども園 徒歩6分 (約420m) グリーンヒルいこま 徒歩7分 (約490m) みずほ銀行生駒支店 徒歩7分 (約510m) スーパーマーケットKINSHO新生駒店 徒歩4分 (約270m) いこまこども園 徒歩6分 (約420m) |
||
| 備考 | ・南都銀行生駒支店まで徒歩4分(約270m) ・スーパーマーケットKINSHO新生駒店まで徒歩8分(約620m) ・いこまこども園まで徒歩6分(約420m) ・グリーンヒルいこままで徒歩7分(約490m) ・みずほ銀行生駒支店まで徒歩7分(約510m) ・スーパーマーケットKINSHO新生駒店まで徒歩4分(約270m) ・いこまこども園まで徒歩6分(約420m) |
||
| 物件番号 | 2514317 | 取引態様 | 媒介 |
取扱店舗情報
ハウスドゥ 生駒俵口 ジルパートナーズ株式会社 店舗詳細ページへ
| 電話番号 | 0743-86-4877 |
|---|---|
| 所在地 | 〒630-0243 奈良県生駒市俵口町775-1 |
| 営業時間 | 10:00~18:00 |
| 定休日 | 水曜日、GW休暇、夏季休暇、年末年始 |
| 宅建免許番号 | 奈良県知事(2)第4408号 |
| アクセス | 店舗への地図はこちら |

来店ご予約
奈良県生駒市で価格が似ている物件はこちら
- 奈良県
マイページ物件数 - 761件
最近見た物件
-
-

-
- 中古一戸建て
- 2,000万円
-
倉敷市片島町
-
JR山陽本線西阿知
-
-
-

-
- 中古マンション
- 1,580万円
-
名古屋市港区東蟹田
-
近鉄名古屋線戸田
-
-
-

-
- 中古マンション
- 2,080万円
-
大阪市都島区友渕町2丁目
-
大阪市谷町線都島
-
奈良県中古一戸建て新着物件
-
-

-
- 中古一戸建て
- 3,680万円
-
生駒市翠光台
-
近鉄生駒線一分駅
-
-
-

-
- 中古一戸建て
- 3,999万円
-
生駒市西白庭台1丁目
-
近鉄けいはんな線白庭台駅
-
-
-

-
- 中古一戸建て
- 4,500万円
-
生駒郡安堵町大字西安堵
-
JR関西本線法隆寺駅
-
-
-

-
- 中古一戸建て
- 290万円
-
奈良市北野山町
-
近鉄難波・奈良線近鉄奈良駅
-
-
-

-
- 中古一戸建て
- 480万円
-
大和高田市大字築山
-
近鉄大阪線築山駅
-
-
-

-
- 中古一戸建て
- 2,380万円
-
生駒市萩の台
-
近鉄生駒線萩の台駅
-
-
-

-
- 中古一戸建て
- 580万円
-
大和高田市大字市場
-
JR和歌山線高田駅
-
- お近くの店舗を探す
-
おすすめ物件
-
-

-
- 中古一戸建て
- 5,490万円
-
奈良市古市町
-
近鉄難波・奈良線近鉄奈良
-
-
-

-
- 中古一戸建て
- 3,499万円
-
奈良市左京3丁目
-
近鉄京都線高の原
-
-
-

-
- 中古一戸建て
- 2,880万円
-
橿原市白橿町4丁目
-
近鉄南大阪線橿原神宮前
-
-
-

-
- 中古一戸建て
- 3,280万円
-
相楽郡精華町光台7丁目
-
近鉄けいはんな線学研奈良登美ヶ丘
-
-
-

-
- 中古一戸建て
- 2,898万円
-
奈良市西大寺赤田町2丁目
-
近鉄京都線大和西大寺
-
-
-

-
- 中古一戸建て
- 3,500万円
-
生駒市松美台
-
近鉄難波・奈良線生駒
-
-
-

-
- 中古一戸建て
- 3,830万円
-
木津川市州見台6丁目
-
JR奈良線平城山
-
-
-

-
- 中古一戸建て
- 2,780万円
-
磯城郡田原本町大字千代
-
近鉄橿原線笠縫
-
-
-

-
- 中古一戸建て
- 3,900万円
-
橿原市曽我町
-
近鉄大阪線真菅
-
-
-

-
- 中古一戸建て
- 2,798万円
-
橿原市曲川町3丁目
-
JR桜井線金橋
-









こんにちは♪
物件をご覧いただき誠にありがとうございます。
▽当店は生駒市・奈良市を中心に、常時約1000件の
仲介物件を取り扱っております。
新築戸建や中古戸建・マンション・売土地まで
お客様一人ひとりに合う物件を幅広くご紹介
しております。
→マンションから広い家に住替えたい・・・
→憧れの駅チカマンションに住みたい・・・
→お子様の将来の為に学区を変更したい・・・ etc
大切なお家選びを最後まで丁寧にサポート致しま
すので、安心してご相談下さい。
▽住宅ローンの相談もお気軽にお声がけください。
他に借り入れがある方、転職して1年未満の方や
以前住宅ローンが落ちた方もお手伝いします。
▽お住替えや相続した物件を手放したい方など
ご売却もスタッフが対応致します。
☆一生に2度あるかないかのマイホームの購入です。
安心して購入いただけるよう、ご不安な事や
分からない事を解消し、
理想のマイホームを一緒に探しましょう。