北広島市広葉町2丁目の中古戸建
掲載情報更新日:2026年04月30日 次回更新予定日:2026年05月14日
- 2,700万円
-
- 借入ご希望金額
万円 - 借入期間
年 - 借入金利
% - 月々のお支払い金額
円
- 借入ご希望金額
※ 月々のお支払例は目安の試算となりますので、実際の金額とは異なる場合がございます。詳しくは店舗までお問合わせください。
- 北広島市広葉町2丁目
-
JR千歳線『北広島』 徒歩10分 (約800m)
北広島市広葉町2丁目一戸建て | 物件情報
〇JR北広島駅徒歩10分の好立地
〇敷地広め(98.73坪)の物件です
物件の設備
- 電気
- オール電化
- 上水道
- 下水道
- IHクッキングヒータ
- コンロ三口
- システムキッチン
- ユニットバス
- 室内洗濯機置場
- 照明器具
- 納戸
- 庭
物件の特徴
- 前道6m以上
- 閑静な住宅街
- 2階建
- 平坦地
- 整形地
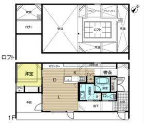
物件詳細情報
| 価格 | 2,700万円 | 間取り | 4LDK |
|---|---|---|---|
| 物件種別 | 中古一戸建て | ||
| 所在地 | 北海道北広島市広葉町2丁目 | ||
| アクセス |
|
||
| 建物面積 | 公100㎡ | 駐車場 | あり |
| 築年月 | 1972年(昭和47年)10月築 | ||
| 建物構造 | ブロック 2階建 | 工法 | |
| 主要採光 | 南東向 | バルコニー | |
| 保証・評価 | |||
| リフォーム | |||
| 土地面積 | 公326.4㎡(98.73坪) | 接道 | 北西側(公道)幅 約8.0m 間口 約19.20m |
| 私道 | セットバック | ||
| 地目 | 宅地 | 地勢 | 平坦 |
| 権利 | 所有権 |
||
| 都市計画 | 市街化区域 |
用途地域 | 1種低層 |
| 建ぺい/容積率 | 40% / 50% | 土地国土法 | |
| 許可番号 | 建築基準法 | ||
| 法令制限 | |||
| 小学区 | 双葉小学校 徒歩10分 (約733m) | 中学区 | 広葉中学校 徒歩2分 (約151m) |
| 現況 | 空 | 引渡 | 相談 |
| その他費用 | |||
| 備考 | ◆すみれ保育園 約179m ◆広島大谷幼稚園 約362m ◆北洋銀行北広島中央支店 約530m ◆北洋銀行西の里支店 約530m ◆北広島郵便局 約646m ◆北海道銀行北広島支店 約518m ◆ショッピングきたひろ駅前店 約803m ◆東光ストア北広島店 約620m ◆コープさっぽろエルフィン店 約1.1km |
||
| 物件番号 | 3603348 | 取引態様 | 媒介 |
取扱店舗情報
| 電話番号 | 0123-25-8590 |
|---|---|
| 所在地 | 〒061-1409 北海道恵庭市黄金南7丁目18-4 |
| 営業時間 | 10:00~17:00 |
| 定休日 | 水曜日、祝日 |
| 宅建免許番号 | 北海道知事石狩(3)第8273号 |
| アクセス | 店舗への地図はこちら |

来店ご予約
北海道北広島市で価格が似ている物件はこちら
- 北海道
マイページ物件数 - 6,365件
最近見た物件
-
-

-
- 中古一戸建て
- 2,549万円
-
厚木市みはる野1丁目
-
小田急小田原線本厚木
-
-
-

-
- 新築一戸建て
- 3,698万円
-
糟屋郡宇美町宇美中央1丁目
-
JR香椎線宇美
-
-
-

-
- 土地
- 200万円
-
尾道市浦崎町
-
JR山陽本線松永
-
北海道中古一戸建て新着物件
-
-

-
- 中古一戸建て
- 390万円
-
小樽市桜3丁目
-
JR函館本線小樽築港駅
-
-
-

-
- 中古一戸建て
- 750万円
-
空知郡上富良野町本町5丁目
-
JR富良野線上富良野駅
-
-
-

-
- 中古一戸建て
- 550万円
-
小樽市入船4丁目
-
JR函館本線南小樽駅
-
-
-

-
- 中古一戸建て
- 6,500万円
-
富良野市字扇山
-
JR富良野線富良野駅
-
-
-

-
- 中古一戸建て
- 2,400万円
-
河東郡音更町共栄台西12丁目
-
JR根室本線帯広駅
-
-
-

-
- 中古一戸建て
- 2,400万円
-
河東郡音更町共栄台西12丁目
-
JR根室本線帯広駅
-
-
-

-
- 中古一戸建て
- 1,880万円
-
小樽市桜3丁目
-
JR函館本線小樽築港駅
-
- お近くの店舗を探す
-
おすすめ物件
-
-

-
- 中古一戸建て
- 2,990万円
-
札幌市東区北五十条東7丁目
-
JR札沼線太平
-
-
-

-
- 中古一戸建て
- 1,380万円
-
江別市萌えぎ野東
-
JR函館本線江別
-
-
-

-
- 中古一戸建て
- 3,180万円
-
札幌市北区太平十条6丁目
-
JR札沼線百合が原
-
-
-

-
- 中古一戸建て
- 790万円
-
岩見沢市南町七条4丁目
-
JR函館本線岩見沢
-
-
-

-
- 中古一戸建て
- 2,450万円
-
北見市南仲町2丁目
-
JR石北本線北見
-
-
-

-
- 中古一戸建て
- 890万円
-
旭川市緑が丘一条4丁目
-
JR函館本線旭川
-
-
-

-
- 中古一戸建て
- 2,700万円
-
北広島市広葉町2丁目
-
JR千歳線北広島
-
-
-

-
- 中古一戸建て
- 1,890万円
-
士別市西一条11丁目
-
JR宗谷本線士別
-
-
-

-
- 中古一戸建て
- 1,250万円
-
伊達市舟岡町
-
JR室蘭本線北舟岡
-
-
-

-
- 中古一戸建て
- 1,850万円
-
旭川市亀吉三条3丁目
-
JR函館本線旭川
-















