周南市都町3丁目の中古戸建
掲載情報更新日:2025年10月31日 次回更新予定日:2025年11月14日
- 1,680万円
-
- 借入ご希望金額
万円 - 借入期間
年 - 借入金利
% - 月々のお支払い金額
円
- 借入ご希望金額
※ 月々のお支払例は目安の試算となりますので、実際の金額とは異なる場合がございます。詳しくは店舗までお問合わせください。
- 周南市都町3丁目
-
JR山陽本線『徳山』 徒歩11分 (約880m)
周南市都町3丁目一戸建て | 物件情報
駐車場2台可能◇IHクッキングヒーター◇徳山駅まで徒歩約11分
◇IHクッキングヒーター
◇駐車場2台
物件の設備
- IHクッキングヒータ
- トイレ2箇所
物件の特徴
- 2階建
物件詳細情報
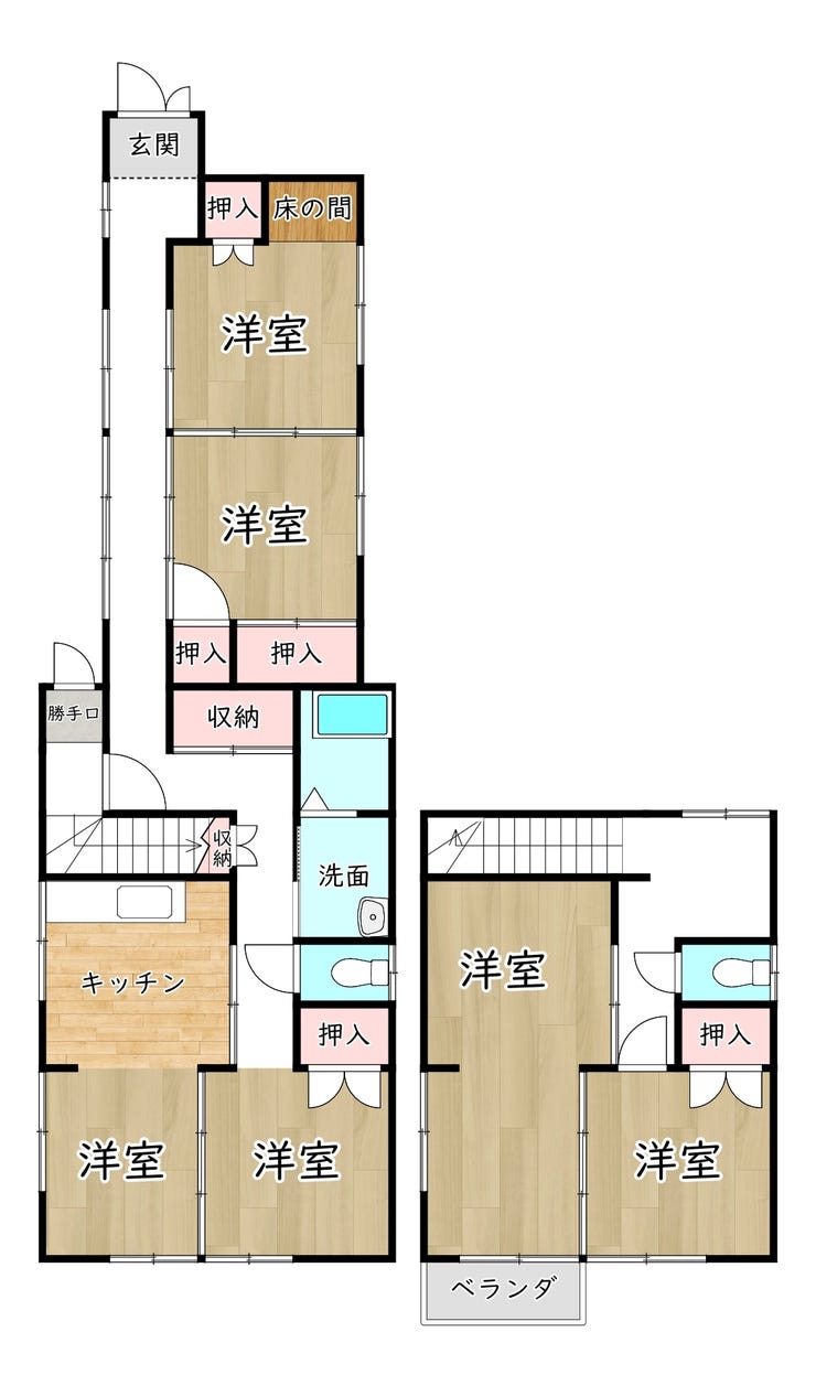
| 価格 | 1,680万円 | 間取り | 5DK |
|---|---|---|---|
| 物件種別 | 中古一戸建て | ||
| 所在地 | 山口県周南市都町3丁目 | ||
| アクセス |
|
||
| 建物面積 | 99.35㎡ | 駐車場 | あり 普通:2台 |
| 築年月 | 1973年(昭和48年)08月築 | ||
| 建物構造 | 木造 2階建 | 工法 | |
| 主要採光 | バルコニー | ||
| 保証・評価 | |||
| リフォーム | |||
| 土地面積 | 公140.69㎡(42.55坪) | 接道 | |
| 私道 | セットバック | ||
| 地目 | 宅地 | 地勢 | |
| 権利 | 所有権 |
||
| 都市計画 | 用途地域 | ||
| 建ぺい/容積率 | 土地国土法 | ||
| 許可番号 | 建築基準法 | ||
| 法令制限 | |||
| 小学区 | 今宿小学校 徒歩12分 (約900m) | 中学区 | 住吉中学校 徒歩17分 (約1300m) |
| 現況 | 空 | 引渡 | 相談 |
| その他費用 | |||
| 周辺環境 | 徳山駅 徒歩11分 (約880m) アルク今宿店 徒歩13分 (約1000m) |
||
| 備考 | ◇IHクッキングヒーター ◇駐車場2台 ≪周辺環境≫ ・徳山駅まで徒歩11分(約880m) ・アルク今宿店まで徒歩13分(約1000m) ・周南市立今宿小学校まで徒歩12分(約900m) ・周南市立住吉中学校まで徒歩17分(約1300m) ・ザ・ビッグ徳山西店まで徒歩2分(約100m) |
||
| 物件番号 | 4321997 | 取引態様 | 媒介 |
取扱店舗情報
| 電話番号 | 0833-48-6111 |
|---|---|
| 所在地 | 〒744-0075 山口県下松市瑞穂町1丁目9-11 |
| 営業時間 | 9:30~18:00 |
| 定休日 | 水曜日 |
| 宅建免許番号 | 山口県知事(8)第2395号 |
| アクセス | 店舗への地図はこちら |

来店ご予約
山口県周南市で価格が似ている物件はこちら
- 山口県
マイページ物件数 - 3,039件
山口県中古一戸建て新着物件
-
-

-
- 中古一戸建て
- 680万円
-
下関市一の宮町5丁目
-
JR山陽本線新下関駅
-
-
-

-
- 中古一戸建て
- 680万円
-
下関市安岡本町3丁目
-
JR山陰本線安岡駅
-
-
-

-
- 中古一戸建て
- 2,650万円
-
周南市藤ヶ台2丁目
-
JR岩徳線勝間駅
-
-
-

-
- 中古一戸建て
- 1,280万円
-
防府市大字田島
-
JR山陽本線防府駅
-
-
-

-
- 中古一戸建て
- 880万円
-
防府市石が口1丁目
-
JR山陽本線防府駅
-
-
-

-
- 中古一戸建て
- 2,300万円
-
下関市東観音町
-
JR山陽本線小月駅
-
-
-

-
- 中古一戸建て
- 2,800万円
-
山口市今井町
-
JR山口線湯田温泉駅
-
- お近くの店舗を探す
-
おすすめ物件
-
-

-
- 中古一戸建て
- 870万円
-
防府市大字台道
-
JR山陽本線大道
-
-
-

-
- 中古一戸建て
- 2,460万円
-
防府市岸津1丁目
-
JR山陽本線防府
-
-
-

-
- 中古一戸建て
- 1,449万円
-
防府市華城中央2丁目
-
JR山陽本線防府
-
-
-

-
- 中古一戸建て
- 1,598万円
-
防府市自由ケ丘2丁目
-
JR山陽本線防府
-
-
-

-
- 中古一戸建て
- 2,450万円
-
周南市大字下上
-
JR山陽本線新南陽
-
-
-

-
- 中古一戸建て
- 2,598万円
-
周南市久米中央2丁目
-
JR山陽本線櫛ヶ浜
-
-
-

-
- 中古一戸建て
- 1,598万円
-
防府市大字仁井令
-
JR山陽本線防府
-
-
-

-
- 中古一戸建て
- 2,498万円
-
光市浅江6丁目
-
JR山陽本線光
-
-
-

-
- 中古一戸建て
- 5,490万円
-
下松市栄町2丁目
-
JR山陽本線下松
-
-
-

-
- 中古一戸建て
- 1,598万円
-
下関市長府浜浦南町
-
JR山陽本線長府
-




担当エージェント:藤谷貴司
広々とした建物面積には5部屋の洋室がございます。駐車場2台分のスペースがございますので車中心の生活を支えてくれます。まずはお気軽にハウスドゥ下松までお問合せくださいませ!