白山市千代野西2丁目の中古戸建
掲載情報更新日:2026年04月10日 次回更新予定日:2026年04月24日
- 2,380万円
-
- 借入ご希望金額
万円 - 借入期間
年 - 借入金利
% - 月々のお支払い金額
円
- 借入ご希望金額
※ 月々のお支払例は目安の試算となりますので、実際の金額とは異なる場合がございます。詳しくは店舗までお問合わせください。
- 白山市千代野西2丁目
-
IRいしかわ鉄道『西松任』 徒歩21分 (約1680m)
白山市千代野西2丁目一戸建て | 物件情報
耐震補強済み!すぐに住める千代野の中古物件の登場!
閑静な住宅街にとして人気のある千代野に好条件の中古物件が出ました。
水廻り、外壁、耐震補強済ですぐにでもご入居可能!
ガレージ付きなので防災グッズも外に収納できます。
物件の設備
- 上水道
- 下水道
- 側溝
- プロパンガス
- システムキッチン
- バス1坪以上
- 浴室に窓
- 室内物干機
- エアコン
- CS
- 省エネ給湯器
- クローゼット
- 庭
- サンルーム
物件の特徴
- リノベーション
- 内装リフォーム済
- 外装リフォーム済
- 内外装リフォーム済
- 前道6m以上
- 閑静な住宅街
- 2階建
- 区画整理地内
- 建築士建物検査報告書
物件詳細情報
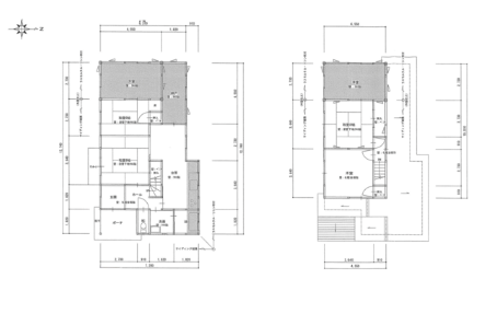
| 価格 | 2,380万円 | 間取り | 6DK+S |
|---|---|---|---|
| 物件種別 | 中古一戸建て | ||
| 所在地 | 石川県白山市千代野西2丁目 | ||
| アクセス |
|
||
| 建物面積 | 147.64㎡ | 駐車場 | あり 普通:2台 |
| 築年月 | 1983年(昭和58年)02月築 | ||
| 建物構造 | 木造 2階建 | 工法 | |
| 主要採光 | バルコニー | ||
| 保証・評価 | 建築士等の建物検査報告書(検査日:2019/03/22) |
||
| リフォーム | 【水回り】2019年03月 キッチン・浴室・トイレ・洗面 【外装】2019年03月 外壁 【その他】2001年04月 増築工事、耐震補強工事(2019年完了) |
||
| 土地面積 | 公248.19㎡(75.07坪) | 接道 | 東側(公道)幅 約6.0m 間口 約15.50m |
| 私道 | セットバック | ||
| 地目 | 宅地 | 地勢 | 平坦 |
| 権利 | 所有権 |
||
| 都市計画 | 市街化区域 |
用途地域 | 1種低層 |
| 建ぺい/容積率 | 50% / 80% | 土地国土法 | |
| 許可番号 | 建築基準法 | ||
| 法令制限 | |||
| 小学区 | 千代野小学校 徒歩12分 (約925m) | 中学区 | 北星中学校 徒歩26分 (約2040m) |
| 現況 | 居住中 | 引渡 | 相談 |
| その他費用 | |||
| 周辺環境 | 千代野中央公園 徒歩9分 (約720m) 白山市立千代野小学校 徒歩12分 (約890m) 松任千代野郵便局 徒歩12分 (約950m) ぱん焼人はたなか・みきお 徒歩12分 (約950m) 白山市立北星中学校 徒歩26分 (約2040m) 社会福祉法人笠間宮保福祉会幼保連携型認定こども園あゆみこども園 徒歩28分 (約2190m) 新成南公園 徒歩31分 (約2410m) |
||
| 備考 | ■建築確認完了検査済証あり、新築時・増改築時の設計図書あり ■建築士等の建物検査報告書 建築士等の建物検査報告書あり 建物検査実施日:2019年03月22日 |
||
| 物件番号 | 4335504 | 取引態様 | 媒介 |
取扱店舗情報
ハウスドゥ ラスパ白山 株式会社アンビション 店舗詳細ページへ
| 電話番号 | 076-225-6461 |
|---|---|
| 所在地 | 〒924-0865 石川県白山市倉光5丁目14 ラスパ白山 A-10 |
| 営業時間 | 10:00~19:00 |
| 定休日 | 毎週水曜日 |
| 宅建免許番号 | 石川県知事(1)第4517号 |
| アクセス | 店舗への地図はこちら |

来店ご予約
石川県白山市で価格が似ている物件はこちら
- 石川県
マイページ物件数 - 459件
最近見た物件
-
-

-
- 中古一戸建て
- 3,300万円
-
佐賀市大和町大字尼寺
-
バス停「長瀬」
-
-
-

-
- 土地
- 780万円
-
霧島市国分台明寺
-
JR日豊本線国分
-
-
-

-
- 土地
- 147万円
-
南都留郡山中湖村平野
-
山中湖インター
-
石川県中古一戸建て新着物件
-
-

-
- 中古一戸建て
- 5,200万円
-
金沢市示野町チ
-
IRいしかわ鉄道金沢駅
-
-
-

-
- 中古一戸建て
- 1,599万円
-
鹿島郡中能登町東馬場
-
中能登中学校 バス停
-
-
-

-
- 中古一戸建て
- 1,849万円
-
河北郡津幡町字能瀬
-
能瀬駅 バス停
-
-
-

-
- 中古一戸建て
- 1,579万円
-
金沢市永安町
-
永安町 バス停
-
-
-

-
- 中古一戸建て
- 2,299万円
-
金沢市吉原町ヨ
-
森本駅 バス停
-
-
-

-
- 中古一戸建て
- 2,129万円
-
金沢市しじま台2丁目
-
しじま台 バス停
-
-
-

-
- 中古一戸建て
- 2,549万円
-
金沢市八日市2丁目
-
押越 バス停
-
- お近くの店舗を探す
-














