富山市楡原の中古戸建
掲載情報更新日:2025年12月21日 次回更新予定日:2026年01月04日
- 180万円
-
- 借入ご希望金額
万円 - 借入期間
年 - 借入金利
% - 月々のお支払い金額
円
- 借入ご希望金額
※ 月々のお支払例は目安の試算となりますので、実際の金額とは異なる場合がございます。詳しくは店舗までお問合わせください。
- 富山市楡原
-
JR高山本線『楡原』 徒歩10分 (約800m)
富山市楡原一戸建て | 物件情報
物件の設備
- 電気
- プロパンガス
- 個別プロパン
- トイレ
- 室内洗濯機置場
- 冷房
- 照明器具
物件の特徴
- 2階建
物件詳細情報
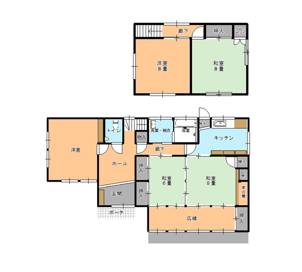
| 価格 | 180万円 | 間取り | 5K |
|---|---|---|---|
| 物件種別 | 中古一戸建て | ||
| 所在地 | 富山県富山市楡原字東島664番6 | ||
| アクセス |
|
||
| 建物面積 | 119.24㎡ | 駐車場 | あり |
| 築年月 | 1978年(昭和53年)08月築 | ||
| 建物構造 | 木造 2階建 | 工法 | |
| 主要採光 | バルコニー | ||
| 保証・評価 | |||
| リフォーム | |||
| 土地面積 | 公321.93㎡(97.38坪) | 接道 | 西側(公道)幅 約4.6m 間口 約4.90m |
| 私道 | セットバック | ||
| 地目 | 宅地 | 地勢 | |
| 権利 | 所有権 |
||
| 都市計画 | 区域外 |
用途地域 | 指定無 |
| 建ぺい/容積率 | 土地国土法 | ||
| 許可番号 | 建築基準法 | ||
| 法令制限 | |||
| 小学区 | 中学区 | ||
| 現況 | 空 | 引渡 | 相談 |
| その他費用 | |||
| 備考 | |||
| 物件番号 | 4427494 | 取引態様 | 専任 |
取扱店舗情報
| 電話番号 | 076-461-4955 |
|---|---|
| 所在地 | 〒939-8261 富山県富山市萩原241-1 |
| 営業時間 | 9:30~18:00 |
| 定休日 | 火曜日、水曜日、年末年始 |
| 宅建免許番号 | 富山県知事(1)第3193号 |
| アクセス | 店舗への地図はこちら |

来店ご予約
富山県富山市で価格が似ている物件はこちら
- 富山県
マイページ物件数 - 763件
最近見た物件
-
-

-
- 新築一戸建て
- 2,480万円
-
加茂郡富加町羽生
-
長良川鉄道富加
-
富山県中古一戸建て新着物件
- お近くの店舗を探す
-
おすすめ物件
-
-

-
- 中古一戸建て
- 980万円
-
富山市向新庄町1丁目
-
富山地鉄本線越中荏原
-
-
-

-
- 中古一戸建て
- 750万円
-
高岡市伏木古府元町
-
JR氷見線伏木
-
-
-

-
- 中古一戸建て
- 2,805万円
-
富山市中島3丁目
-
富山地鉄富山港線粟島(大阪屋前)
-
-
-

-
- 中古一戸建て
- 2,980万円
-
富山市有沢
-
富山地鉄富山市内線トヨタGスクエア五福
-
-
-

-
- 中古一戸建て
- 2,700万円
-
富山市本郷町
-
富山地鉄不二越上滝線上堀
-
-
-

-
- 中古一戸建て
- 350万円
-
射水市八幡町3丁目
-
万葉線中新湊
-
-
-

-
- 中古一戸建て
- 960万円
-
富山市藤の木台2丁目
-
富山地鉄本線越中荏原
-
-
-

-
- 中古一戸建て
- 1,990万円
-
富山市婦中町広田
-
JR高山本線千里
-
-
-

-
- 中古一戸建て
- 120万円
-
射水市港町
-
万葉線第一イン新湊クロスベ
-
-
-

-
- 中古一戸建て
- 2,100万円
-
富山市奥井町
-
富山地鉄富山港線奥田中学校前
-











