高槻市富田町6丁目の中古戸建
掲載情報更新日:2025年12月25日 次回更新予定日:2026年01月08日
- 980万円
-
- 借入ご希望金額
万円 - 借入期間
年 - 借入金利
% - 月々のお支払い金額
円
- 借入ご希望金額
※ 月々のお支払例は目安の試算となりますので、実際の金額とは異なる場合がございます。詳しくは店舗までお問合わせください。
- 高槻市富田町6丁目
-
阪急電鉄京都線『富田』 徒歩12分 (約960m)
JR東海道線『摂津富田』 徒歩14分 (約1120m)
阪急電鉄京都線『総持寺』 徒歩19分 (約1520m)
高槻市富田町6丁目テラスハウス | 物件情報
物件の設備
- 公営水道
- 汲取
- 都市ガス
- バス無
- トイレ
- バルコニー
物件の特徴
- 2沿線利用可
- 駅まで平坦
- 総合病院徒歩10分以内
- 小学校徒歩10分以内
- 前道6m以上
- スーパーが近い
- 陽当り良好
- 2階建
- 平坦地
- 即入居可
物件詳細情報
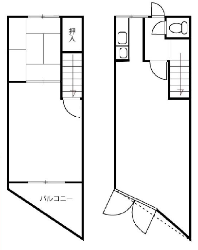
| 価格 | 980万円 | 間取り | 2LK |
|---|---|---|---|
| 物件種別 | 中古一戸建て(テラスハウス) | ||
| 所在地 | 大阪府高槻市富田町6丁目 | ||
| アクセス |
|
||
| 建物面積 | 公65.32㎡ | 駐車場 | なし |
| 築年月 | 1971年(昭和46年)01月築 | ||
| 建物構造 | 木造 瓦葺 2階建 | 工法 | |
| 主要採光 | 南東向 | バルコニー | |
| 保証・評価 | |||
| リフォーム | |||
| 土地面積 | 公46.64㎡(14.10坪) | 接道 | 南東側(公道)幅 約8.0m |
| 私道 | セットバック | ||
| 地目 | 宅地 | 地勢 | 平坦 |
| 権利 | 所有権 |
||
| 都市計画 | 市街化区域 |
用途地域 | 1種住居 |
| 建ぺい/容積率 | 60% / 200% | 土地国土法 | |
| 許可番号 | 建築基準法 | ||
| 法令制限 | 高度地区・準防火地域 | ||
| 小学区 | 富田小学校 徒歩9分 (約720m) | 中学区 | 第四中学校 徒歩17分 (約1340m) |
| 現況 | 空 | 引渡 | 即 |
| その他費用 | |||
| 周辺環境 | 高槻市立富田小学校 徒歩9分 (約720m) 高槻市立第四中学校 徒歩17分 (約1340m) ミニストップ 高槻寿町1丁目店 徒歩4分 (約280m) ローソン 高槻北柳川店 徒歩6分 (約460m) セブンイレブン 高槻富田5丁目店 徒歩7分 (約490m) コノミヤ高槻店 徒歩4分 (約290m) トップワールド富田店 徒歩5分 (約390m) ケアーズ薬局栄店 徒歩5分 (約330m) 富田町病院 徒歩5分 (約340m) 筒井池公園 徒歩5分 (約380m) |
||
| 備考 | 都市計画道路に接道 | ||
| 物件番号 | 4450809 | 取引態様 | 媒介 |
取扱店舗情報
ハウスドゥ 茨木総持寺駅前 株式会社Life Ark 店舗詳細ページへ
| 電話番号 | 072-657-9237 |
|---|---|
| 所在地 | 〒567-0802 大阪府茨木市総持寺駅前町6-13 大紅ビル101 |
| 営業時間 | 10:00~20:00 |
| 定休日 | 水曜日、年末年始 |
| 宅建免許番号 | 大阪府知事(1)第63128号 |
| アクセス | 店舗への地図はこちら |

来店ご予約
大阪府高槻市で価格が似ている物件はこちら
- 大阪府
マイページ物件数 - 16,075件
最近見た物件
-
-

-
- 中古一戸建て
- 2,680万円
-
京田辺市薪堀切谷
-
近鉄京都線新田辺
-
大阪府中古一戸建て新着物件
-
-

-
- 中古一戸建て
- 2,680万円
-
和泉市幸2丁目
-
JR阪和線信太山駅
-
-
-

-
- 中古一戸建て
- 4,500万円
-
和泉市光明台2丁目
-
南海電鉄泉北線光明池駅
-
-
-

-
- 中古一戸建て
- 750万円
-
和泉市光明台2丁目
-
南海電鉄泉北線光明池駅
-
-
-

-
- 中古一戸建て
- 1,390万円
-
和泉市室堂町
-
南海電鉄泉北線光明池駅
-
-
-

-
- 中古一戸建て
- 3,180万円
-
豊中市庄内栄町3丁目
-
阪急電鉄宝塚線庄内駅
-
-
-

-
- 中古一戸建て
- 3,180万円
-
豊中市庄内栄町3丁目
-
阪急電鉄宝塚線庄内駅
-
-
-

-
- 中古一戸建て
- 1,280万円
-
東大阪市友井3丁目
-
近鉄大阪線弥刀駅
-
- お近くの店舗を探す
-
おすすめ物件
-
-

-
- 中古一戸建て
- 2,599万円
-
茨木市庄1丁目
-
JR東海道線JR総持寺
-
-
-

-
- 中古一戸建て
- 3,480万円
-
大阪市住吉区万代6丁目
-
南海電鉄高野線住吉東
-
-
-

-
- 中古一戸建て
- 3,980万円
-
大阪市都島区友渕町3丁目
-
JRおおさか東線城北公園通
-
-
-

-
- 中古一戸建て
- 2,580万円
-
大阪市住吉区長居2丁目
-
JR阪和線長居
-
-
-

-
- 中古一戸建て
- 2,980万円
-
茨木市北春日丘1丁目
-
JR東海道線茨木
-
-
-

-
- 中古一戸建て
- 3,480万円
-
大阪市住吉区万代5丁目
-
南海電鉄高野線帝塚山
-
-
-

-
- 中古一戸建て
- 4,680万円
-
高槻市月見町
-
JR東海道線高槻
-
-
-

-
- 中古一戸建て
- 780万円
-
河内長野市楠ケ丘
-
南海電鉄高野線三日市町
-
-
-

-
- 中古一戸建て
- 780万円
-
堺市北区長曽根町
-
大阪市御堂筋線なかもず
-
-
-

-
- 中古一戸建て
- 2,380万円
-
大阪市住之江区平林南2丁目
-
南港ポートタウン線(ニュートラム)平林
-











