新築戸建 八尾市長池町2丁目
NEW 10.30掲載情報更新日:2025年11月07日 次回更新予定日:2025年11月21日
- 4,480万円
-
- 借入ご希望金額
万円 - 借入期間
年 - 借入金利
% - 月々のお支払い金額
円
- 借入ご希望金額
※ 月々のお支払例は目安の試算となりますので、実際の金額とは異なる場合がございます。詳しくは店舗までお問合わせください。
- 八尾市長池町2丁目
-
近鉄大阪線『近鉄八尾』 徒歩22分 (約1710m)
近鉄大阪線『河内山本』 徒歩23分 (約1810m)
近鉄大阪線『久宝寺口』 徒歩30分 (約2380m)
新築戸建 八尾市長池町2丁目一戸建て | 物件情報
【八尾中学校】約44坪中古戸建!全居室広々6帖以上&LDK18帖以上♪南向きで駐車場もシャッター付!
■世帯住宅としてもおすすめ■駐車最大3台可能■閑静な住宅地♪
―――――――無料送迎サービス実施中――――――
スタッフがご自宅にお伺いして、相談内容をお聞きすることも可能です!
今のお住まいが店舗から遠い方でも、悪天候でも、電話一本で駆けつけさせていただきます!
いつでもお気軽にご相談下さい!
――――――――――――――――――――――――
\物件探しのお手伝いから、お客様のご希望に沿った家づくりまでトータルサポートいたします♪/
●【ヴィンテージ不動産】→お客様の今欲しい情報をご提供いたします!
●【ヴィンテージホームズ】→無料の資金計画&プラン作成もできます!
物件に関するご質問はもちろん、ご購入の流れやローンシュミレーション、資金面でのご相談等ございましたら、いつでもお気軽にご相談下さい。
中古住宅の建て替えやリフォームのご相談も可能です!キッズコーナーや駐車場も完備!
弊社では、お客様それぞれの「理想の家」を実現するため、専門のアドバイザーが担当いたします。
見るだけ・聞くだけすべて無料♪お家探しなら、ハウスドゥ平野区加美店へ!!
物件の設備
- 電気
- 上水道
- 公営水道
- 下水道
- 公共下水
- 給湯
- 食器洗浄乾燥機
- コンロ三口
- グリル
- カウンターキッチン
- システムキッチン
- バス
- ユニットバス
- オートバス
- 追焚機能
- 浴室暖房
- 浴室乾燥機
- トイレ
- 温水洗浄便座
- 高機能トイレ
- 室内洗濯機置場
- 洗面所独立
- モニタ付インターホン
- LDK18畳以上
- 2面採光
- 全室2面採光
- 天井高2.5m以上
- フローリング
- 一部フローリング
- クッションフロア
- フラットフロア
- 24時間換気システム
- クローゼット
- クローゼット2箇所
- クローゼット3箇所
- 納戸
- 全居室収納
- シューズボックス
- 2面バルコニー
- ワイドバルコニー
- 屋上テラス
物件の特徴
- 南向
- 2沿線利用可
- 3沿線以上利用可
- 駅まで平坦
- 総合病院徒歩10分以内
- 小学校徒歩10分以内
- 南側道路面す
- 整備された歩道
- 緑豊かな住宅地
- スーパーが近い
- 閑静な住宅街
- 市街地が近い
- 都市近郊
- 高台に立地
- 眺望良好
- 陽当り良好
- 3階建以上
- 角地
- 平坦地
- 整形地
- 即入居可
物件詳細情報
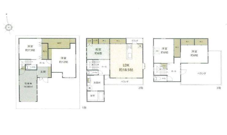
| 価格 | 4,480万円 | 間取り | 5LDK+S |
|---|---|---|---|
| 物件種別 | 中古一戸建て | ||
| 所在地 | 大阪府八尾市長池町2丁目 | ||
| アクセス |
|
||
| 建物面積 | 公173.29㎡ | 駐車場 | あり 普通:1台 |
| 築年月 | 2008年(平成20年)02月築 | ||
| 建物構造 | 木造 3階建 | 工法 | |
| 主要採光 | 南向 | バルコニー | |
| 保証・評価 | |||
| リフォーム | |||
| 土地面積 | 公147.48㎡(44.61坪) | 接道 | 南側(私道)幅 約4.6m 間口 約9.90m(位置指定) |
| 私道 | 別:公22.72㎡ | セットバック | |
| 地目 | 宅地 | 地勢 | 平坦 |
| 権利 | 所有権 |
||
| 都市計画 | 市街化区域 |
用途地域 | 1種住居 |
| 建ぺい/容積率 | 60% / 200% | 土地国土法 | |
| 許可番号 | 建築基準法 | ||
| 法令制限 | 準防火地域 | ||
| 小学区 | 長池小学校 徒歩4分 (約250m) | 中学区 | 八尾中学校 徒歩8分 (約640m) |
| 現況 | 空 | 引渡 | 即 |
| その他費用 | |||
| 周辺環境 | 長池小学校 徒歩4分 (約250m) ファミリーマート八尾小畑町店 徒歩7分 (約540m) 八尾中学校 徒歩8分 (約640m) セブン-イレブン 八尾萱振町3丁目店 徒歩10分 (約800m) スギドラッグ 八尾福万寺店 徒歩12分 (約890m) ローソン 八尾福万寺一丁目店 徒歩12分 (約940m) 万代八尾店 徒歩13分 (約1020m) アリオ八尾 徒歩15分 (約1130m) 東朋八尾病院 徒歩16分 (約1270m) |
||
| 備考 | 現状優先 司法書士売主指定 |
||
| 物件番号 | 4469297 | 取引態様 | 媒介 |
取扱店舗情報
ハウスドゥ 平野区加美 ヴィンテージ不動産株式会社 店舗詳細ページへ
| 電話番号 | 06-4303-4759 |
|---|---|
| 所在地 | 〒547-0005 大阪府大阪市平野区加美西1丁目13-47 |
| 営業時間 | 10:00~18:30 |
| 定休日 | 火曜日、水曜日 |
| 宅建免許番号 | 大阪府知事(1)第65159号 |
| アクセス | 店舗への地図はこちら |

来店ご予約
大阪府八尾市で価格が似ている物件はこちら
- 大阪府
マイページ物件数 - 15,568件
最近見た物件
-
-

-
- 中古一戸建て
- 2,790万円
-
海部郡蟹江町桜2丁目
-
JR関西本線蟹江
-
-
-

-
- 中古一戸建て
- 4,380万円
-
八尾市東山本新町2丁目
-
近鉄大阪線河内山本
-
大阪府中古一戸建て新着物件
-
-

-
- 中古一戸建て
- 1,480万円
-
門真市江端町
-
JR片町線住道駅
-
-
-

-
- 中古一戸建て
- 1,100万円
-
岸和田市流木町
-
JR阪和線東岸和田駅
-
-
-

-
- 中古一戸建て
- 1,580万円
-
四條畷市蔀屋本町
-
JR片町線四条畷駅
-
-
-

-
- 中古一戸建て
- 1,380万円
-
大東市緑が丘2丁目
-
JR片町線野崎駅
-
-
-

-
- 中古一戸建て
- 1,180万円
-
東大阪市岩田町5丁目
-
近鉄難波・奈良線若江岩田駅
-
-
-

-
- 中古一戸建て
- 4,080万円
-
東大阪市長瀬町2丁目
-
JRおおさか東線JR長瀬駅
-
-
-

-
- 中古一戸建て
- 1,180万円
-
阪南市箱作
-
南海電鉄本線箱作駅
-
- お近くの店舗を探す
-
おすすめ物件
-
-

-
- 中古一戸建て
- 2,200万円
-
川西市鼓が滝3丁目
-
能勢電鉄鼓滝
-
-
-

-
- 中古一戸建て
- 1,800万円
-
大阪市淀川区三国本町3丁目
-
阪急電鉄宝塚線三国
-
-
-

-
- 中古一戸建て
- 2,990万円
-
泉大津市豊中町3丁目
-
JR阪和線和泉府中
-
-
-

-
- 中古一戸建て
- 3,380万円
-
泉大津市曽根町2丁目
-
南海電鉄本線松ノ浜
-
-
-

-
- 中古一戸建て
- 1,780万円
-
岸和田市下池田町2丁目
-
JR阪和線久米田
-
-
-

-
- 中古一戸建て
- 1,600万円
-
八尾市垣内4丁目
-
近鉄信貴線信貴山口
-
-
-

-
- 中古一戸建て
- 2,980万円
-
茨木市北春日丘1丁目
-
JR東海道線茨木
-
-
-

-
- 中古一戸建て
- 680万円
-
泉南郡熊取町小垣内1丁目
-
JR阪和線熊取
-
-
-

-
- 中古一戸建て
- 480万円
-
貝塚市橋本
-
JR阪和線和泉橋本
-
-
-

-
- 中古一戸建て
- 3,650万円
-
大阪市住吉区万代5丁目
-
南海電鉄高野線帝塚山
-



担当エージェント:辻井 貴之
【八尾中学校】約44坪中古戸建!全居室広々6帖以上&LDK18帖以上♪南向きで駐車場もシャッター付!
建物のデザインや敷地面積を重視されない方は、まず「立地の良さ」で選んでみませんか?
弊社では、お客様それぞれの「理想の家」を実現するため、専門のアドバイザーが担当いたします。
物件に関するご質問はもちろん、ご購入の流れやローンシュミレーション、資金面でのご相談等ございましたら、いつでもお気軽にご相談下さい。
キッズコーナーや駐車場も完備!
店舗数業界ナンバーワン!!地域密着のハウスドゥ平野区加美店が皆様のご来店をお待ちしております♪
取扱エリアは大阪市平野区・八尾市です!
お客様のご要望に真摯に耳を傾け、本質を理解し、お客様が本当に必要とされている情報をより迅速に、より豊富に、より的確にご提供できるよう心掛けております。
見るだけ・聞くだけOK♪すべて無料♪♪お家探しなら、ハウスドゥ平野区加美店!へ!!