富山市寺町の中古戸建
NEW 10.31掲載情報更新日:2025年10月31日 次回更新予定日:2025年11月14日
- 2,950万円
- 
                    - 借入ご希望金額
 万円
-  借入期間
 年
-  借入金利
 %
-  月々のお支払い金額
 円
 
- 借入ご希望金額
※ 月々のお支払例は目安の試算となりますので、実際の金額とは異なる場合がございます。詳しくは店舗までお問合わせください。
- 富山市寺町
- 
                    JR高山本線『西富山』 徒歩5分 (約400m)
 
富山市寺町一戸建て | 物件情報
【北陸の気候に負けない安全性】家事ラクで快適な暮らしを実現
             
        
            ・制振ダンパーを標準仕様
・高断熱窓+高気密断熱材
・生活感を感じさせないオシャレな暮らし        
物件の設備
- 電気
- オール電化
- 上水道
- 下水道
- 側溝
- 食器洗浄乾燥機
- IHクッキングヒータ
- コンロ三口
- カウンターキッチン
- システムキッチン
- オープンキッチン
- オートバス
- バス1坪以上
- 追焚機能
- 浴室暖房
- 浴室乾燥機
- トイレ2箇所
- 温水洗浄便座
- 洗髪洗面化粧台
- 室内物干機
- エアコン2基
- 照明器具
- ダウンライト
- 人感照明センサー
- 省エネ給湯器
- カードキー
- ダブルロックキー
- モニタ付インターホン
- 火災警報器/報知機
- 2面採光
- 複層ガラス
- 24時間換気システム
- クローゼット
- ウォークインクローゼット
- 全居室収納
- 庭
- サンルーム
物件の特徴
- 高気密高断熱住宅
- ノンホルムアルデヒド
- 制震構造
- 前道6m以上
- 閑静な住宅街
- 2階建
- 整形地
- 外壁サイディング
物件詳細情報
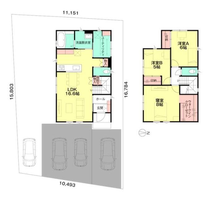
| 価格 | 2,950万円 | 間取り | 3LDK | 
|---|---|---|---|
| 物件種別 | 中古一戸建て | ||
| 所在地 | 富山県富山市寺町 | ||
| アクセス | 
 | ||
| 建物面積 | 94.19㎡ | 駐車場 | あり 普通:4台 | 
| 築年月 | 2024年(令和6年)04月築 | ||
| 建物構造 | ブロック 2階建 | 工法 | |
| 主要採光 | 南向 | バルコニー | |
| 保証・評価 | |||
| リフォーム | |||
| 土地面積 | 公174.8㎡(52.87坪) | 接道 | 東側(公道)幅 約6.0m 間口 約10.40m 西側(公道)幅 約6.3m 間口 約11.10m | 
| 私道 | セットバック | ||
| 地目 | 宅地 | 地勢 | |
| 権利 | 所有権 | ||
| 都市計画 | 市街化区域 | 用途地域 | 1種中高 | 
| 建ぺい/容積率 | 60% / 200% | 土地国土法 | |
| 許可番号 | 建築基準法 | ||
| 法令制限 | |||
| 小学区 | 五福小学校 徒歩9分 (約680m) | 中学区 | 西部中学校 徒歩15分 (約1170m) | 
| 現況 | 空 | 引渡 | 相談 | 
| その他費用 | |||
| 備考 | ☆当社はお客様の住まい探しを全力でお手伝いいたします!☆ 元銀行員のスタッフがローンのご相談も承っております(^^)/ ぜひお気軽にご連絡ください!!ローンやリフォームのご相談も受け付けております! | ||
| 物件番号 | 4471295 | 取引態様 | 媒介 | 
取扱店舗情報
ハウスドゥ 富山駅北 セブン不動産株式会社 店舗詳細ページへ
| 電話番号 | 076-464-6351 | 
|---|---|
| 所在地 | 〒930-0853 富山県富山市永楽町27-16 | 
| 営業時間 | 9:30~17:30 | 
| 定休日 | 水曜日、祝日、年末年始 | 
| 宅建免許番号 | 富山県知事(1)第3250号 | 
| アクセス | 店舗への地図はこちら | 

来店ご予約
富山県富山市で価格が似ている物件はこちら
- 富山県
 マイページ物件数
- 871件
富山県中古一戸建て新着物件
- お近くの店舗を探す
- 
            
            
            
おすすめ物件
- 
				- 
														 
- 
						- 中古一戸建て
- 435万円
- 
								
									射水市庄西町1丁目 
- 
								万葉線六渡寺 
 
 
- 
														
- 
				- 
														 
- 
						- 中古一戸建て
- 1,980万円
- 
								
									富山市粟島町3丁目 
- 
								富山地鉄富山港線粟島(大阪屋前) 
 
 
- 
														
- 
				- 
														 
- 
						- 中古一戸建て
- 50万円
- 
								
									射水市本町3丁目 
- 
								万葉線第一イン新湊クロスベ 
 
 
- 
														
- 
				- 
														 
- 
						- 中古一戸建て
- 2,100万円
- 
								
									富山市奥井町 
- 
								富山地鉄富山港線奥田中学校前 
 
 
- 
														
- 
				- 
														 
- 
						- 中古一戸建て
- 1,990万円
- 
								
									富山市婦中町広田 
- 
								婦中コミュニティバス田村たまご店前 
 
 
- 
														
- 
				- 
														 
- 
						- 中古一戸建て
- 1,398万円
- 
								
									高岡市野村 
- 
								JR氷見線越中中川 
 
 
- 
														
- 
				- 
														 
- 
						- 中古一戸建て
- 180万円
- 
								
									射水市中央町 
- 
								万葉線新町口 
 
 
- 
														
- 
				- 
														 
- 
						- 中古一戸建て
- 50万円
- 
								
									射水市港町 
- 
								万葉線第一イン新湊クロスベ 
 
 
- 
														
- 
				- 
														 
- 
						- 中古一戸建て
- 1,500万円
- 
								
									射水市倉垣小杉 
- 
								あいの風とやま鉄道呉羽 
 
 
- 
														
- 
				- 
														 
- 
						- 中古一戸建て
- 120万円
- 
								
									射水市港町 
- 
								万葉線第一イン新湊クロスベ 
 
 
- 
														
 
     
                         
                         
                         
                    







 
                















 
                 
             
                    

 
                                            
 
                                             
                                             
                                     
                                            






 
						 
						