岩出市根来の中古戸建
NEW 11.01掲載情報更新日:2025年11月01日 次回更新予定日:2025年11月15日
- 930万円
-
- 借入ご希望金額
万円 - 借入期間
年 - 借入金利
% - 月々のお支払い金額
円
- 借入ご希望金額
※ 月々のお支払例は目安の試算となりますので、実際の金額とは異なる場合がございます。詳しくは店舗までお問合わせください。
- 岩出市根来
-
『森』 徒歩5分 (約400m)
岩出市根来一戸建て | 物件情報
物件の設備
- 電気
- 上水道
- 側溝
- 汲取
- プロパンガス
- 温水洗浄便座
- 洗髪洗面化粧台
- クローゼット
- ウォークインクローゼット
- 全居室収納
物件の特徴
- 2階建
- 即入居可
物件詳細情報
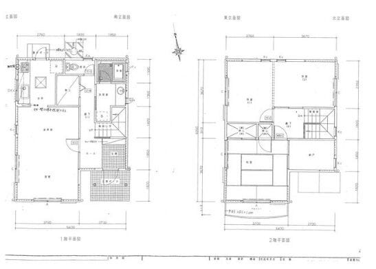
| 価格 | 930万円 | 間取り | 3LDK+S |
|---|---|---|---|
| 物件種別 | 中古一戸建て | ||
| 所在地 | 和歌山県岩出市根来586-5 | ||
| アクセス |
|
||
| 建物面積 | 公96.14㎡ | 駐車場 | あり 普通:2台 |
| 築年月 | 1991年(平成3年)07月築 | ||
| 建物構造 | 軽量鉄骨 2階建 | 工法 | |
| 主要採光 | バルコニー | ||
| 保証・評価 | |||
| リフォーム | |||
| 土地面積 | 公109.74㎡(33.19坪) | 接道 | |
| 私道 | セットバック | ||
| 地目 | 宅地 | 地勢 | |
| 権利 | 所有権 |
||
| 都市計画 | 非線引区域 |
用途地域 | 指定無 |
| 建ぺい/容積率 | 70% / 200% | 土地国土法 | |
| 許可番号 | 建築基準法 | ||
| 法令制限 | |||
| 小学区 | 根来小学校 徒歩7分 (約500m) | 中学区 | 岩出第二中学校 徒歩13分 (約1000m) |
| 現況 | 空 | 引渡 | 即 |
| その他費用 | |||
| 周辺環境 | 岩出市立 根来小学校 徒歩8分 (約600m) スーパーネゴロ 徒歩9分 (約650m) 和歌山中央幼稚園 徒歩12分 (約960m) 根来保育所 徒歩9分 (約670m) 根来郵便局 徒歩11分 (約840m) サンドラッグ岩出店 徒歩13分 (約1000m) 岩出市立 岩出第二中学校 徒歩11分 (約870m) セリア岩出店 徒歩14分 (約1070m) ザ・ロウズ岩出北店 徒歩14分 (約1100m) ダイソー パーティハウス岩出店 徒歩14分 (約1100m) |
||
| 備考 | |||
| 物件番号 | 4471974 | 取引態様 | 媒介 |
取扱店舗情報
ハウスドゥ 和歌山バイパス ミサキハウス株式会社 店舗詳細ページへ
| 電話番号 | 073-499-7788 |
|---|---|
| 所在地 | 〒649-6333 和歌山県和歌山市永穂70 |
| 営業時間 | 9:00~18:00 |
| 定休日 | 水曜日 |
| 宅建免許番号 | 和歌山県知事(1)第4036号 |
| アクセス | 店舗への地図はこちら |

来店ご予約
和歌山県岩出市で価格が似ている物件はこちら
- 和歌山県
マイページ物件数 - 1,260件
和歌山県中古一戸建て新着物件
- お近くの店舗を探す
-
おすすめ物件
-
-

-
- 中古一戸建て
- 890万円
-
和歌山市北休賀町
-
JR和歌山線和歌山
-
-
-

-
- 中古一戸建て
- 1,900万円
-
和歌山市船所
-
南海電鉄本線紀ノ川
-
-
-

-
- 中古一戸建て
- 398万円
-
和歌山市神波
-
JR阪和線紀伊
-
-
-

-
- 中古一戸建て
- 3,480万円
-
和歌山市栄谷
-
南海電鉄本線和歌山大学前
-
-
-

-
- 中古一戸建て
- 1,150万円
-
和歌山市六十谷
-
JR阪和線六十谷
-
-
-

-
- 中古一戸建て
- 2,780万円
-
和歌山市松島
-
JR阪和線紀伊中ノ島
-
-
-

-
- 中古一戸建て
- 3,300万円
-
和歌山市小倉
-
JR和歌山線紀伊小倉
-
-
-

-
- 中古一戸建て
- 2,100万円
-
和歌山市中筋日延
-
和歌山バス池の川
-
-
-

-
- 中古一戸建て
- 2,100万円
-
和歌山市中筋日延
-
JR阪和線紀伊
-
-
-

-
- 中古一戸建て
- 2,980万円
-
和歌山市栄谷
-
南海電鉄本線紀ノ川
-


















