川崎市宮前区西野川3丁目の中古戸建
NEW 12.07掲載情報更新日:2025年12月07日 次回更新予定日:2025年12月21日
- 3,499万円
-
- 借入ご希望金額
万円 - 借入期間
年 - 借入金利
% - 月々のお支払い金額
円
- 借入ご希望金額
※ 月々のお支払例は目安の試算となりますので、実際の金額とは異なる場合がございます。詳しくは店舗までお問合わせください。
- 川崎市宮前区西野川3丁目
-
東急田園都市線『鷺沼』 バス乗車22分 和田八幡宮下 停 徒歩7分 (約560m)
JR南武線『武蔵中原』 バス乗車29分 和田八幡宮下 停 徒歩7分 (約560m)
横浜市営地下鉄ブルーライン『センター北』 バス乗車14分 美里橋前 停 徒歩11分 (約880m)
川崎市宮前区西野川3丁目一戸建て | 物件情報
物件の設備
- システムキッチン
- 追焚機能
- トイレ2箇所
- 室内洗濯機置場
- 洗髪洗面化粧台
- モニタ付インターホン
- フローリング張替
- 網戸
- クローゼット2箇所
- ウォークインクローゼット
- 納戸
物件の特徴
- 内装リフォーム済
- 前道6m以上
- 南側道路面す
- 閑静な住宅街
- 2階建
- 整形地
- 即入居可
物件詳細情報
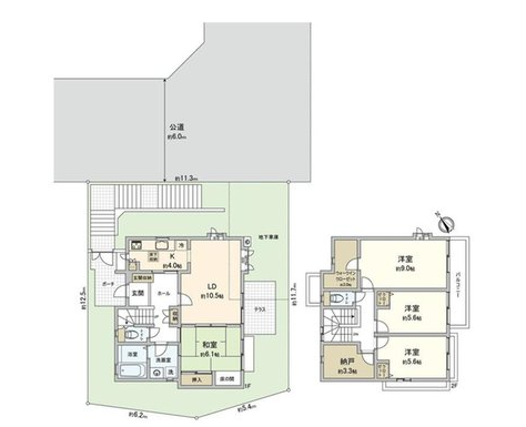
| 価格 | 3,499万円 | 間取り | 4LDK+S |
|---|---|---|---|
| 物件種別 | 中古一戸建て | ||
| 所在地 | 神奈川県川崎市宮前区西野川3丁目 | ||
| アクセス |
|
||
| 建物面積 | 112.58㎡ | 駐車場 | あり |
| 築年月 | 1998年(平成10年)08月築 | ||
| 建物構造 | 軽量鉄骨 2階建 | 工法 | |
| 主要採光 | 南東向 | バルコニー | |
| 保証・評価 | |||
| リフォーム | 【内装】2025年09月 全面 ・壁、天井 ・床 ・全室クロス ・建具 ・サッシ ハウスクリーニング、白蟻点検 |
||
| 土地面積 | 145㎡(43.86坪) | 接道 | 北東側(公道)幅 約6.0m 南西側(公道)幅 約4.0m 南側(公道)幅 約6.0m |
| 私道 | セットバック | ||
| 地目 | 宅地 | 地勢 | |
| 権利 | 所有権 |
||
| 都市計画 | 市街化区域 |
用途地域 | 1種低層 |
| 建ぺい/容積率 | 40% / 80% | 土地国土法 | |
| 許可番号 | 建築基準法 | ||
| 法令制限 | |||
| 小学区 | 南野川小学校 徒歩8分 (約600m) | 中学区 | 野川中学校 徒歩12分 (約900m) |
| 現況 | 空 | 引渡 | 即 |
| その他費用 | |||
| 周辺環境 | 南野川小学校 徒歩8分 (約630m) 野川中学校 徒歩13分 (約970m) ファミリーマート 川崎南野川店 徒歩7分 (約540m) シャトレーゼ 野川店 徒歩7分 (約540m) クリエイトSD川崎南野川店 徒歩8分 (約620m) 野川二丁目公園 徒歩9分 (約690m) コーナンビーバープロ宮前野川店 徒歩14分 (約1050m) セブンイレブン川崎野川くぬぎ坂店 徒歩15分 (約1160m) |
||
| 備考 | |||
| 物件番号 | 4517832 | 取引態様 | 媒介 |
取扱店舗情報
ハウスドゥ 向ヶ丘遊園 株式会社パワーラッシュ 店舗詳細ページへ
| 電話番号 | 044-299-8081 |
|---|---|
| 所在地 | 〒214-0014 神奈川県川崎市多摩区登戸2777-2 N100ビル201号室 |
| 営業時間 | 9:00~18:00 |
| 定休日 | 水曜日、年末年始 |
| 宅建免許番号 | 神奈川県知事(1)第32601号 |
| アクセス | 店舗への地図はこちら |

来店ご予約
神奈川県川崎市宮前区で価格が似ている物件はこちら
- 神奈川県
マイページ物件数 - 3,122件
最近見た物件
-
-

-
- 中古一戸建て
- 1,398万円
-
荒尾市荒尾
-
JR鹿児島本線荒尾
-
-
-

-
- 中古一戸建て
- 1,380万円
-
岡山市東区西大寺上1丁目
-
JR赤穂線西大寺
-
-
-

-
- 中古一戸建て
- 5,280万円
-
豊明市前後町仙人塚
-
名鉄名古屋本線前後
-
神奈川県中古一戸建て新着物件
-
-

-
- 中古一戸建て
- 4,380万円
-
足柄上郡大井町大井中央
-
JR御殿場線相模金子駅
-
-
-

-
- 中古一戸建て
- 1,780万円
-
足柄上郡大井町上大井
-
JR御殿場線上大井駅
-
-
-

-
- 中古一戸建て
- 3,499万円
-
川崎市宮前区西野川3丁目
-
東急田園都市線鷺沼駅
-
-
-

-
- 中古一戸建て
- 3,699万円
-
川崎市麻生区上麻生4丁目
-
小田急小田原線柿生駅
-
-
-

-
- 中古一戸建て
- 3,199万円
-
川崎市麻生区向原2丁目
-
小田急小田原線新百合ヶ丘駅
-
-
-

-
- 中古一戸建て
- 2,980万円
-
平塚市広川
-
JR東海道本線平塚駅
-
-
-

-
- 中古一戸建て
- 3,380万円
-
平塚市花水台
-
JR東海道本線平塚駅
-
- お近くの店舗を探す
-



























