サンロイヤル新田辺アカデミア 1号館 京田辺市草内鐘鉦割の中古マンション
NEW 11.09掲載情報更新日:2025年11月09日 次回更新予定日:2025年11月23日
- 1,180万円
-
- 借入ご希望金額
万円 - 借入期間
年 - 借入金利
% - 月々のお支払い金額
円
- 借入ご希望金額
※ 月々のお支払例は目安の試算となりますので、実際の金額とは異なる場合がございます。詳しくは店舗までお問合わせください。
- 京田辺市草内鐘鉦割
-
近鉄京都線『新田辺』 徒歩17分 (約1360m)
JR片町線『京田辺』 徒歩24分 (約1870m)
近鉄京都線『新田辺』 バス乗車6分 草内口 停 徒歩4分 (約320m)
京田辺市草内鐘鉦割マンション | 物件情報
物件の設備
- 公営水道
- 下水道
- 都市ガス
物件の特徴
- 管理人日勤
- ペット相談
物件詳細情報
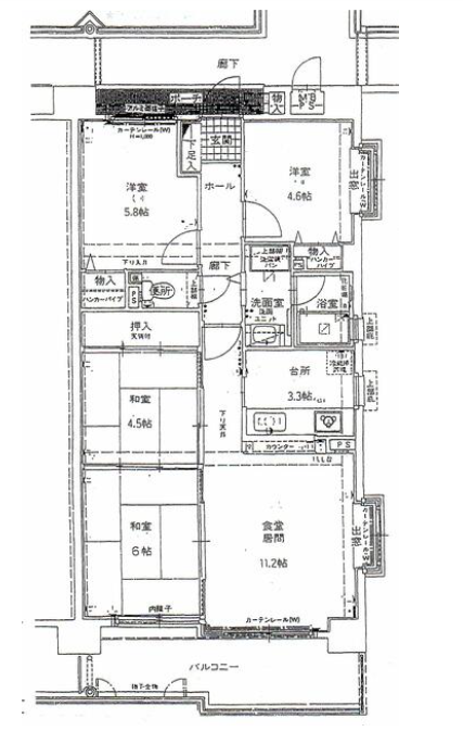
| 価格 | 1,180万円 | 間取り | 4LDK |
|---|---|---|---|
| 物件種別 | 中古マンション | ||
| 所在地 | 京都府京田辺市草内鐘鉦割 | ||
| アクセス |
|
||
| 専有面積 | 内法 75.09㎡ | 所在階 | 7階建/4階部分 |
| 主要採光 | バルコニー | ||
| その他 | |||
| 権利 | 所有権 |
||
| 保証・評価 | |||
| リフォーム | |||
| 総戸数 | 面積 | ||
| 築年月 | 1990年(平成2年)07月築 | 建物構造 | RC |
| 施工会社 | |||
| 管理会社 | 管理方式 | 全部委託 日勤管理 | |
| 駐車場 | |||
| 都市計画 | 用途地域 | 工業 | |
| 建ぺい/容積率 | 土地国土法 | ||
| 法令制限 | |||
| 小学区 | 田辺東小学校 徒歩15分 (約1160m) | 中学区 | 培良中学校 徒歩7分 (約530m) |
| 現況 | 居住中 | 引渡 | 相談 |
| 管理費 | 修繕積立金 | ||
| その他費用 | |||
| 周辺環境 | 田辺東小学校 徒歩15分 (約1160m) 培良中学校 徒歩7分 (約530m) 近鉄新田辺駅 徒歩20分 (約1540m) 禅定寺公園 徒歩4分 (約280m) ローソン 京田辺草内店 徒歩7分 (約560m) 業務スーパー 京田辺店 徒歩11分 (約870m) 田辺東幼稚園 徒歩14分 (約1080m) 寺島クリニック 徒歩18分 (約1420m) 平和堂アル・プラザ京田辺 徒歩25分 (約1940m) キリン堂三山木店 徒歩40分 (約3150m) |
||
| 備考 | ■本物件図は略図の為、図面と異なる場合は現況優先となります □学校区は市条例等で変更の可能性がございますので、管轄の市役所または、役場へとお問合せ下さい ■駐車スペースは車種によります □管理費・修繕積立金・駐車料金及び空き状況・その他費用に関しては、随時変動する場合がございます |
||
| 物件番号 | 4482676 | 取引態様 | 媒介 |
取扱店舗情報
| 電話番号 | 0774-64-5526 |
|---|---|
| 所在地 | 〒610-0361 京都府京田辺市河原北口19-2 |
| 営業時間 | 9:30~18:30 |
| 定休日 | 水曜日 |
| 宅建免許番号 | 京都府知事(1)第14866号 |
| アクセス | 店舗への地図はこちら |

来店ご予約
- 京都府
マイページ物件数 - 3,929件
最近見た物件
-
-

-
- 中古一戸建て
- 3,000万円
-
茨木市丑寅2丁目
-
JR東海道線千里丘
-
-
-

-
- 中古一戸建て
- 5,500万円
-
茨木市北春日丘3丁目
-
JR東海道線茨木
-
-
-

-
- 中古一戸建て
- 2,400万円
-
茨木市東奈良1丁目
-
阪急電鉄京都線南茨木
-
京都府中古マンション新着物件
-
-

-
- 中古マンション
- 1,680万円
-
京都市右京区嵯峨朝日町
-
京福嵐山線車折神社駅
-
-
-

-
- 中古マンション
- 2,222万円
-
京都市中京区聚楽廻西町
-
JR山陰本線円町駅
-
-
-

-
- 中古マンション
- 1,180万円
-
京田辺市草内鐘鉦割
-
近鉄京都線新田辺駅
-
-
-

-
- 中古マンション
- 2,980万円
-
宇治市大久保町田原
-
近鉄京都線大久保駅
-
-
-

-
- 収益
- 2,074万円
-
京都市下京区西七条御領町
-
JR山陰本線梅小路京都西駅
-
-
-

-
- 中古マンション
- 2,490万円
-
京都市伏見区桃山町山ノ下
-
京都市営地下鉄東西線六地蔵駅
-
-
-

-
- 中古マンション
- 4,950万円
-
京都市伏見区桃山町西尾
-
京都市営地下鉄東西線六地蔵駅
-
- お近くの店舗を探す
-















