スターターマンション豊見城 豊見城市字高嶺の中古マンション
掲載情報更新日:2026年04月12日 次回更新予定日:2026年04月26日
- 2,450万円
-
- 借入ご希望金額
万円 - 借入期間
年 - 借入金利
% - 月々のお支払い金額
円
- 借入ご希望金額
※ 月々のお支払例は目安の試算となりますので、実際の金額とは異なる場合がございます。詳しくは店舗までお問合わせください。
- 豊見城市字高嶺
-
沖縄都市モノレール『奥武山公園』 徒歩62分 (約4900m)
バス停『武富』 徒歩2分 (約160m)
豊見城市字高嶺マンション | 物件情報
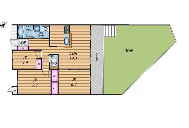
縦列駐車2台!引継ぎ可能。ガーデニングやBBQができる専用庭付き。
☆★7周年記念キャンペーン開催中!★☆
ご成約者様《引越し費用当社で負担》 ♪♪♪
※本キャンペーンは、弊社指定の対象物件に限りご利用いただけます。
ご来店のお客様《お菓子つかみ取り》実施中!!!
~浦添店・南風原店・豊見城店 同時開催!~
※詳細はスタッフにお気軽にお尋ね下さい!
豊見城ICまで車で約4分。マックスバリュ武富店まで車で約3分。生活利便施設が身近にそろい、通勤・通学・買い物もスムーズ。
豊見城市内の不動産はハウスドゥ 豊見城へまるごとおまかせ!!どうぞお気軽にお問合せください☆
物件の設備
- 公営水道
- 下水道
- プロパンガス
- 集中プロパン
- 給湯
- 浄水器
- カウンターキッチン
- システムキッチン
- バス
- ユニットバス
- バス1坪以上
- 浴室乾燥機
- 浴室に窓
- シャワー
- トイレ
- 温水洗浄便座
- B/T別室
- 室内洗濯機置場
- 洗髪洗面化粧台
- 洗面所独立
- エアコン
- 洗濯乾燥機
- BS
- CS
- 光インターネット
- ペット足洗場
- ディンプルキー
- オートロック
- モニタ付インターホン
- 防犯カメラ
- 火災警報器/報知機
- 吹抜
- フローリング
- 全室フローリング
- 24時間換気システム
- 網戸
- クローゼット
- クローゼット3箇所
- 収納スペース
- 全居室収納
- シューズボックス
- バルコニー
- ワイドバルコニー
- 平面駐車場
- 宅配BOX
- 駐輪場
物件の特徴
- 管理人巡回
- スーパーが近い
- 閑静な住宅街
- 通風良好
- 陽当り良好
- 24時間ゴミ出可
- ペット対応
- 楽器相談
物件詳細情報
| 価格 | 2,450万円 | 間取り | 3LDK |
|---|---|---|---|
| 物件種別 | 中古マンション | ||
| 所在地 | 沖縄県豊見城市字高嶺 | ||
| アクセス |
|
||
| 専有面積 | 壁芯 68.28㎡ | 所在階 | 3階建/1階部分 |
| 主要採光 | バルコニー | 東向12.15㎡ | |
| その他 | |||
| 権利 | 定期地上権 借地料8946円/月 期間:2068年1カ月 権利譲渡:可(承諾要) 承諾者 地主 承諾料 要 設定登記:相談 賃料改定:事前協議により決定年ごと 額 事前協議により決定 |
||
| 保証・評価 | |||
| リフォーム | |||
| 総戸数 | 27戸 | 面積 | 敷地:2934.27㎡ 建築:912.92㎡ |
| 築年月 | 2014年(平成26年)06月築 | 建物構造 | RC |
| 施工会社 | (株)金城キク建設 | ||
| 管理会社 | (株)中部興産 | 管理方式 | 全部委託 巡回管理 管理組合あり |
| 駐車場 | 【駐車場】空有 料金:5,500円/月 【駐輪場】空有 |
||
| 都市計画 | 市街化区域 |
用途地域 | 1種低層 |
| 建ぺい/容積率 | 50% / 100% | 土地国土法 | |
| 法令制限 | |||
| 小学区 | 豊見城小学校 徒歩14分 (約1100m) | 中学区 | 豊見城中学校 徒歩25分 (約2000m) |
| 現況 | 居住中 | 引渡 | 相談 |
| 管理費 | 7,200円/月 | 修繕積立金 | 2,150円/月 |
| その他費用 | 借地料8946円/月 期間:2068年1カ月 |
||
| 周辺環境 | マックスバリュ武富店 徒歩5分 (約350m) ローソン 豊見城団地前店 徒歩5分 (約400m) フレッシュプラザユニオン 豊見城 徒歩7分 (約500m) タウンプラザかねひで豊見城団地前店 徒歩7分 (約550m) 豊見城団地内郵便局 徒歩8分 (約600m) 松岡医院 徒歩9分 (約700m) サンエー豊見城ウィングシティ 徒歩14分 (約1100m) 豊見城市立中央公民館 徒歩14分 (約1100m) 豊見城小学校 徒歩14分 (約1100m) 豊見城中学校 徒歩25分 (約2000m) |
||
| 備考 | 縦列駐車2台!引継ぎ可能。ガーデニングやBBQができる専用庭付き。 ◆借地期間:2068年1月まで ◆借地料:約94.753円/(年間) ◆ネット使用料:1090円/月 ◆駐車場:2台:縦列駐車 ◆駐車場料金帯:5000~13000円/月 ◆駐輪場:300円/月(空き無し2024年10月時点) ◆ペット飼育可:管理規約による制限あり ◇周辺環境◇ ・マックスバリュ武富店まで徒歩5分(約350m) ・ローソン 豊見城団地前店まで徒歩5分(約400m) ・フレッシュプラザユニオン 豊見城まで徒歩7分(約500m) ・かねひで豊見城団地前店まで徒歩7分(約550m) ・豊見城ICまで車で3分(約800m) |
||
| 物件番号 | 4581774 | 取引態様 | 専属専任媒介 |
取扱店舗情報
ハウスドゥ 豊見城 株式会社R-JAPAN 店舗詳細ページへ
| 電話番号 | 098-856-5456 |
|---|---|
| 所在地 | 〒901-0225 沖縄県豊見城市豊崎1-1146 |
| 営業時間 | 10:00~19:00 |
| 定休日 | 水曜日、年末年始 |
| 宅建免許番号 | 国土交通大臣(2)第9251号 |
| アクセス | 店舗への地図はこちら |

来店ご予約
- 沖縄県
マイページ物件数 - 3,252件
最近見た物件
-
-

-
- 中古マンション
- 6,540万円
-
名古屋市昭和区楽園町
-
名古屋市名城線名古屋大学
-
沖縄県中古マンション新着物件
-
-

-
- 中古マンション
- 3,298万円
-
沖縄市仲宗根町
-
バスコザ中学校前
-
-
-

-
- 中古マンション
- 9,500万円
-
中頭郡北中城村字喜舎場
-
屋宜原 バス停
-
-
-

-
- 中古マンション
- 6,288万円
-
中頭郡北中城村字ライカム
-
沖縄都市モノレールてだこ浦西駅
-
-
-

-
- 中古マンション
- 7,400万円
-
豊見城市字瀬長
-
バス停具志営業所
-
-
-

-
- 中古マンション
- 1,980万円
-
浦添市宮城2丁目
-
沖縄都市モノレール古島駅
-
-
-

-
- 中古マンション
- 1,890万円
-
那覇市寄宮2丁目
-
沖縄都市モノレール安里駅
-
-
-

-
- 中古マンション
- 3,298万円
-
沖縄市仲宗根町
-
バスコザ中学校前
-
- お近くの店舗を探す
-
おすすめ物件
-
-

-
- 中古マンション
- 4,198万円
-
豊見城市字豊崎
-
バス停アウトレットモールあしびなー
-
-
-

-
- 中古マンション
- 4,250万円
-
豊見城市字豊崎
-
沖縄都市モノレール赤嶺
-
-
-

-
- 中古マンション
- 4,118万円
-
中頭郡中城村字南上原
-
中城南小学校前バス停
-
-
-

-
- 中古マンション
- 2,398万円
-
那覇市松山1丁目
-
沖縄都市モノレール県庁前
-
-
-

-
- 中古マンション
- 980万円
-
宜野湾市愛知1丁目
-
【バス停】愛知 徒歩
-
-
-

-
- 中古マンション
- 980万円
-
浦添市港川2丁目
-
沖縄都市モノレール浦添前田
-
-
-

-
- 中古マンション
- 5,200万円
-
豊見城市字豊崎
-
沖縄都市モノレール赤嶺
-
-
-

-
- 中古マンション
- 7,498万円
-
那覇市おもろまち1丁目
-
沖縄都市モノレールおもろまち
-
-
-

-
- 中古マンション
- 2,780万円
-
宜野湾市真志喜2丁目
-
バス停宜野湾高校前
-
-
-

-
- 中古マンション
- 3,190万円
-
中頭郡北谷町字桑江
-
バス停桑江
-






































担当エージェント:井本 直也
ハウスドゥ 豊見城の井本と申します。
お客様の理想に一歩でも多く近づけるよう、信頼を頂けるよう全力でご対応させて頂きます。
★ハウスドゥ 豊見城のHPから『マイページ登録』をして頂くと日々更新される、HPでは一般公開されていない新着物件をいち早くご覧いただけます!登録は無料!是非ご活用くださいませ★
\購入相談会同時開催中/
◆住宅ローン
借入限度額や自分に合った支払い額を知りたい方
お家探しの前に資金計
画を立てたい方、住替えをお考えの方
他社で断られた方…
一度ご相談ください。専門スタッフがわかりやすくご説明します!
◆ご家族お揃いでお気軽にお越しください♪
キッズスペース・店舗前に駐車場4台完備♪
お子様連れのお客様も安心して、物件探しをご相談頂けます♪
◆お客様のご要望に応じた物件をまとめてご案内する物件ツアーも開催しております。