秀和川口青木町レジデンス 川口市上青木西1丁目の中古マンション
NEW 03.20掲載情報更新日:2026年03月20日 次回更新予定日:2026年04月03日
- 1,898万円
-
- 借入ご希望金額
万円 - 借入期間
年 - 借入金利
% - 月々のお支払い金額
円
- 借入ご希望金額
※ 月々のお支払例は目安の試算となりますので、実際の金額とは異なる場合がございます。詳しくは店舗までお問合わせください。
- 川口市上青木西1丁目
-
JR京浜東北・根岸線『西川口』 徒歩17分 (約1360m)
埼玉高速鉄道『鳩ヶ谷』 徒歩35分 (約2800m)
川口市上青木西1丁目マンション | 物件情報
人気エリアに売マンションが登場!4階部分+南向きバルコニー☆ ※リフォーム施行中
人気エリアに売マンションが登場です!
◆7階建て、南向きの4階部分☆
※リフォーム施行中
物件の設備
- 公営水道
- 下水道
- 都市ガス
- コンロ三口
- ユニットバス
- B/T別室
- 室内洗濯機置場
- 洗髪洗面化粧台
- 洗面所独立
- 防犯カメラ
- 24時間換気システム
- エレベーター
物件の特徴
- 管理人常駐
- リノベーション
- スーパーが近い
- 閑静な住宅街
- 都市近郊
- 陽当り良好
- 平坦地
- ペット不可
- 事務所不可
物件詳細情報
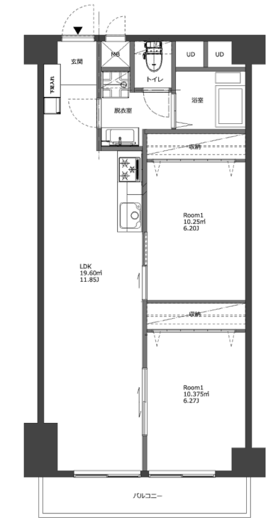
| 価格 | 1,898万円 | 間取り | 2LDK |
|---|---|---|---|
| 物件種別 | 中古マンション | ||
| 所在地 | 埼玉県川口市上青木西1丁目 | ||
| アクセス |
|
||
| 専有面積 | 52.50㎡ | 所在階 | 7階建/4階部分 |
| 主要採光 | 南向 | バルコニー | |
| その他 | |||
| 権利 | 所有権 |
||
| 保証・評価 | |||
| リフォーム | 【その他】2026年04月予定 リノベーション施行中、詳細未確認 |
||
| 総戸数 | 89戸 | 面積 | |
| 築年月 | 1974年(昭和49年)09月築 | 建物構造 | RC |
| 施工会社 | |||
| 管理会社 | レジデンス・ビルディングマネジメント | 管理方式 | 全部委託 常駐管理 |
| 駐車場 | |||
| 都市計画 | 用途地域 | ||
| 建ぺい/容積率 | 土地国土法 | ||
| 法令制限 | |||
| 小学区 | 上青木南小学校 徒歩18分 (約1410m) | 中学区 | 上青木中学校 徒歩9分 (約710m) |
| 現況 | 空 | 引渡 | 期日指定:2026年04月中旬以降 |
| 管理費 | 11,100円/月 | 修繕積立金 | 11,100円/月 |
| その他費用 | |||
| 周辺環境 | スギ薬局 上青木店 徒歩1分 (約80m) 川口きゅうぽら リハビリテーション病院 徒歩2分 (約90m) ローソン 蕨塚越6丁目店 徒歩5分 (約380m) 青木町公園 徒歩6分 (約470m) ENEOS/㈱藤川燃料 上青木西SS 徒歩7分 (約510m) サンドラッグ 川口上青木店 徒歩7分 (約540m) カスミ フードスクエア 川口前川店 徒歩7分 (約540m) ビッグ・エー 川口上青木西2丁目店 徒歩6分 (約480m) 上青木西保育所 徒歩8分 (約620m) 川口市立上青木中学校 徒歩9分 (約710m) |
||
| 備考 | |||
| 物件番号 | 4645194 | 取引態様 | 媒介 |
取扱店舗情報
ハウスドゥ 鳩ヶ谷坂下町 株式会社ウェルカムホーム 店舗詳細ページへ
| 電話番号 | 048-242-5180 |
|---|---|
| 所在地 | 〒334-0003 埼玉県川口市坂下町3丁目32-21 |
| 営業時間 | 9:00~18:00 |
| 定休日 | 火曜日、水曜日、年末年始 |
| 宅建免許番号 | 埼玉県知事(1)第25389号 |
| アクセス | 店舗への地図はこちら |

来店ご予約
埼玉県川口市で価格が似ている物件はこちら
- 埼玉県
マイページ物件数 - 3,528件
最近見た物件
-
-

-
- 新築一戸建て
- 2,440万円
-
加茂郡川辺町下川辺
-
JR高山本線中川辺
-
-
-

-
- 中古一戸建て
- 2,699万円
-
駿東郡清水町中徳倉
-
JR東海道本線三島
-
-
-

-
- 新築一戸建て
- 2,990万円
-
知多郡阿久比町大字草木字東郷
-
名鉄河和線坂部
-
埼玉県中古マンション新着物件
-
-

-
- 中古マンション
- 3,790万円
-
川口市上青木1丁目
-
JR京浜東北・根岸線西川口駅
-
-
-

-
- 中古マンション
- 3,980万円
-
川口市南鳩ヶ谷4丁目
-
埼玉高速鉄道南鳩ヶ谷駅
-
-
-

-
- 中古マンション
- 3,290万円
-
さいたま市北区本郷町
-
埼玉新都市交通今羽駅
-
-
-

-
- 中古マンション
- 3,680万円
-
戸田市南町
-
JR埼京線戸田公園駅
-
-
-

-
- 収益
- 930万円
-
川口市西青木3丁目
-
JR京浜東北・根岸線西川口駅
-
-
-

-
- 中古マンション
- 6,480万円
-
川口市川口1丁目
-
JR京浜東北・根岸線川口駅
-
-
-

-
- 中古マンション
- 1,980万円
-
川口市中青木3丁目
-
JR京浜東北・根岸線西川口駅
-
- お近くの店舗を探す
-
おすすめ物件
-
-

-
- 中古マンション
- 5,780万円
-
戸田市川岸2丁目
-
JR埼京線戸田公園
-
-
-

-
- 中古マンション
- 2,890万円
-
さいたま市北区櫛引町2丁目
-
埼玉新都市交通鉄道博物館(大成)
-
-
-

-
- 中古マンション
- 1,000万円
-
北本市朝日2丁目
-
JR高崎線北本
-
-
-

-
- 中古マンション
- 1,980万円
-
上尾市大字久保
-
JR高崎線北上尾
-
-
-

-
- 中古マンション
- 4,799万円
-
戸田市本町5丁目
-
JR埼京線戸田公園
-
-
-

-
- 中古マンション
- 3,999万円
-
戸田市上戸田2丁目
-
JR埼京線戸田公園
-
-
-

-
- 中古マンション
- 1,890万円
-
越谷市千間台西1丁目
-
東武伊勢崎・大師線せんげん台
-
-
-

-
- 中古マンション
- 2,890万円
-
越谷市北越谷2丁目
-
東武伊勢崎・大師線北越谷
-
-
-

-
- 中古マンション
- 3,680万円
-
戸田市大字新曽
-
JR埼京線戸田
-
-
-

-
- 中古マンション
- 3,298万円
-
吉川市大字保
-
JR武蔵野線吉川
-




担当エージェント:富重 隆文
お客様に「寄り添う」会社です。不動産の購入は金額も大きく、不安なことがたくさんあると思います。ぜひ、一度ご連絡ください。不動産に関するプロとして、お客様の課題に一つ一つ向き合っていきます。