デュオプレステージフォンテーヌ宝殿 4階 加古川市西神吉町岸の中古マンション
NEW 04.20掲載情報更新日:2026年04月20日 次回更新予定日:2026年05月04日
- 1,980万円
-
- 借入ご希望金額
万円 - 借入期間
年 - 借入金利
% - 月々のお支払い金額
円
- 借入ご希望金額
※ 月々のお支払例は目安の試算となりますので、実際の金額とは異なる場合がございます。詳しくは店舗までお問合わせください。
- 加古川市西神吉町岸
-
JR山陽本線『宝殿』 徒歩7分 (約560m)
加古川市西神吉町岸マンション | 物件情報
リフォーム履歴あり!
ハウスドゥ加古川インターの掲載物件を閲覧頂きましてありがとうございます!
加古川市内の土地、戸建て、マンションのHP掲載数トップクラス !
ハウスドゥ加古川インターでは加古川市、明石市、三木市、加西市に強いスタッフが在籍しておりますので加古川以外の地域でお考えのお客様も手厚くサポートさせて頂きます◎
【ご購入のお客様】
宅建士複数名在籍!
住宅ローンアドバイザーや、女性スタッフも在籍してますので女性のお客様でもご来店・ご相談しやすい店舗の空間となっております。
物件内覧希望につきましてはお気軽にお問い合わせ下さい。
【お住替えのお客様】
関連会社は加古川市で解体業を行っております。
古家の解体や不用品の処分も是非お任せください!
買取も強化中です!是非ご相談ください!
物件の設備
- 公営水道
- 公共下水
- 都市ガス
- カウンターキッチン
- バス
- トイレ
- 床暖房
- オートロック
- ウォークインクローゼット
- バルコニー
- エレベーター
- アルコーブ
物件の特徴
- 管理人日勤
物件詳細情報
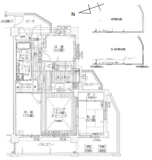
| 価格 | 1,980万円 | 間取り | 3LDK |
|---|---|---|---|
| 物件種別 | 中古マンション | ||
| 所在地 | 兵庫県加古川市西神吉町岸 | ||
| アクセス |
|
||
| 専有面積 | 74.28㎡ | 所在階 | 6階建/4階部分 |
| 主要採光 | バルコニー | ||
| その他 | |||
| 権利 | 所有権 |
||
| 保証・評価 | |||
| リフォーム | |||
| 総戸数 | 面積 | ||
| 築年月 | 2005年(平成17年)11月築 | 建物構造 | RC |
| 施工会社 | |||
| 管理会社 | 日本住宅管理株式会社 | 管理方式 | 全部委託 日勤管理 |
| 駐車場 | |||
| 都市計画 | 市街化区域 |
用途地域 | 1種住居 |
| 建ぺい/容積率 | 60% / 200% | 土地国土法 | |
| 法令制限 | |||
| 小学区 | 西神吉小学校 徒歩20分 (約1600m) | 中学区 | 神吉中学校 徒歩22分 (約1700m) |
| 現況 | 空 | 引渡 | 相談 |
| 管理費 | 8,900円/月 | 修繕積立金 | 19,310円/月 |
| その他費用 | |||
| 周辺環境 | 加古川西市民センター 徒歩6分 (約480m) セブンイレブンJR宝殿駅前店 徒歩9分 (約710m) スギ薬局宝殿店 徒歩10分 (約760m) ローソン加古川西インター 徒歩11分 (約820m) 東播磨夜間休日応急診療センター 徒歩15分 (約1170m) コープ神吉 徒歩19分 (約1510m) キリン堂加古川神吉店 徒歩22分 (約1720m) マクドナルド東神吉店 徒歩21分 (約1670m) 加古川市立神吉中学校 徒歩24分 (約1850m) 加古川市立西神吉小学校 徒歩21分 (約1620m) |
||
| 備考 | ※ポーチ使用料:250円/月 ※駐車場空き状況は都度確認要 (2026.4.17空き4台あり H1550、L5050、W1850、2000kg) |
||
| 物件番号 | 4684817 | 取引態様 | 媒介 |
取扱店舗情報
ハウスドゥ 加古川インター TREK株式会社 店舗詳細ページへ
| 電話番号 | 079-451-5840 |
|---|---|
| 所在地 | 〒675-0067 兵庫県加古川市加古川町河原359-7 |
| 営業時間 | 10:00~19:00 |
| 定休日 | 水曜日、年末年始 |
| 宅建免許番号 | 兵庫県知事(1)第401686号 |
| アクセス | 店舗への地図はこちら |

来店ご予約
兵庫県加古川市で価格が似ている物件はこちら
- 兵庫県
マイページ物件数 - 3,136件
最近見た物件
-
-

-
- 中古マンション
- 1,580万円
-
大阪市東淀川区下新庄6丁目
-
阪急電鉄千里線下新庄
-
-
-

-
- 中古マンション
- 2,090万円
-
札幌市中央区南二条西20丁目
-
札幌市東西線西18丁目
-
-
-

-
- 中古マンション
- 3,329万円
-
札幌市中央区南十七条西18丁目
-
札幌市軌道線西線16条
-
兵庫県中古マンション新着物件
-
-

-
- 中古マンション
- 1,698万円
-
伊丹市池尻6丁目
-
阪急電鉄神戸線武庫之荘駅
-
-
-

-
- 中古マンション
- 720万円
-
明石市魚住町住吉2丁目
-
山陽電鉄本線山陽魚住駅
-
-
-

-
- 中古マンション
- 600万円
-
姫路市御国野町国分寺
-
JR山陽本線御着駅
-
-
-

-
- 中古マンション
- 1,380万円
-
加古川市平岡町中野
-
山陽電鉄本線別府駅
-
-
-

-
- 中古マンション
- 5,950万円
-
川西市中央町
-
阪急電鉄宝塚線川西能勢口駅
-
-
-

-
- 中古マンション
- 2,698万円
-
姫路市坂田町
-
JR播但線京口駅
-
-
-

-
- 中古マンション
- 1,980万円
-
加古川市西神吉町岸
-
JR山陽本線宝殿駅
-
- お近くの店舗を探す
-
おすすめ物件
-
-

-
- 中古マンション
- 1,280万円
-
伊丹市荒牧4丁目
-
JR福知山線中山寺
-
-
-

-
- 中古マンション
- 1,380万円
-
明石市二見町西二見
-
JR山陽本線土山
-
-
-

-
- 中古マンション
- 9,800万円
-
神戸市中央区新港町
-
JR東海道線三ノ宮
-
-
-

-
- 中古マンション
- 2,399万円
-
神戸市中央区港島中町6丁目
-
神戸新交通ポートアイランド線みなとじま
-
-
-

-
- 中古マンション
- 880万円
-
明石市北朝霧丘1丁目
-
山陽電鉄本線大蔵谷
-
-
-

-
- 中古マンション
- 3,090万円
-
神戸市中央区港島中町6丁目
-
神戸新交通ポートアイランド線みなとじま
-
-
-

-
- 中古マンション
- 2,380万円
-
神戸市中央区港島中町3丁目
-
神戸新交通ポートアイランド線中公園
-
-
-

-
- 中古マンション
- 350万円
-
明石市松が丘1丁目
-
JR山陽本線朝霧
-
-
-

-
- 中古マンション
- 998万円
-
姫路市青山6丁目
-
JR姫新線余部
-
-
-

-
- 中古マンション
- 4,100万円
-
神戸市中央区港島1丁目
-
神戸新交通ポートアイランド線中公園
-




ペット飼育可(制限あり)マンション!!
ヤング開発施工
駐車場空き有