筑後市大字西牟田 DSK
掲載情報更新日:2026年04月11日 次回更新予定日:2026年04月25日 取引条件の有効期限:2026年05月02日
筑後市大字西牟田 DSK | 物件情報
価格
2,399万円~2,399万円所在地
福岡県筑後市大字西牟田交通
西鉄天神大牟田線『犬塚』 徒歩27分 ~ 27分 (約2160m ~ 2160m)※所要時間内は、統計データに基づいた所要時間を掲載しております。
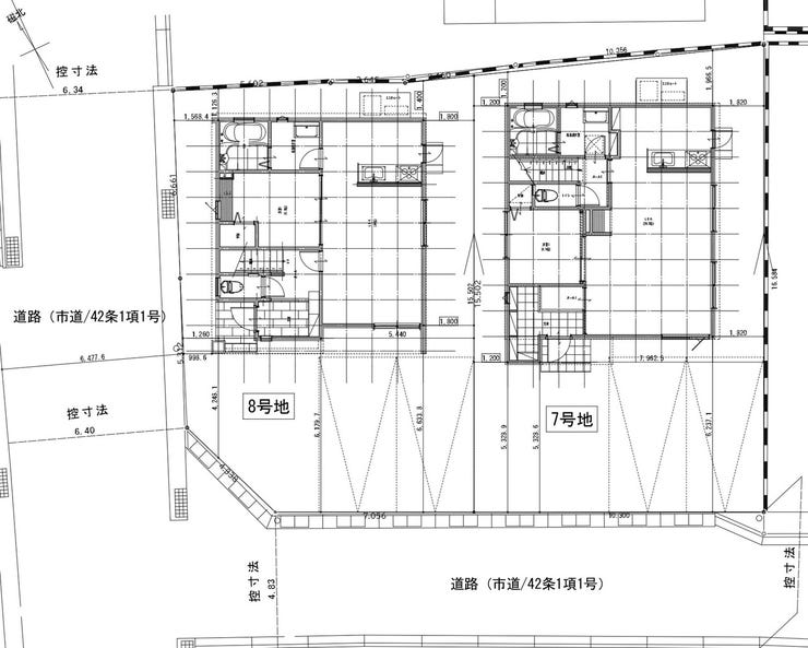
【区画割り画像】
物件の設備
- オール電化
- 下水道
- 上水道
- 電気
物件の特徴
- 2階建
分譲地情報
| 分譲地名 | 筑後市大字西牟田 DSK | ||
|---|---|---|---|
| 販売区画数 | 総区画数 | 2戸 | |
| 価格 | 2,399万円~2,399万円 | ||
| 最多価格帯 | |||
| 交通 |
西鉄天神大牟田線『犬塚』 徒歩27分 ~ 27分 (約2160m ~ 2160m) |
||
| 土地面積 | 153.45㎡ ~153.45㎡ | ||
| 建物面積 | 110.21㎡ ~110.21㎡ | ||
| 都市計画 | 非線引区域 | 用途地域 | 1種住居 |
| 建ぺい率 | 70% | 容積率 | 200% |
| 地目 | 地勢 | ||
| 許可番号 | 土地国士法 | ||
| 法令制限 | |||
| 小学校区 | 西牟田小学校 徒歩1分 ~1分 (約80m ~80m) | ||
| 中学校区 | 筑後北中学校 徒歩20分 ~20分 (約1600m ~1600m) | ||
| 周辺環境情報 | |||
| 備考 | |||
| 分譲地番号 | 240799 | ||
取扱店舗情報
| 電話番号 | 0942-50-5735 |
|---|---|
| 所在地 | 〒841-0051 佐賀県鳥栖市元町1246番地3 |
| 営業時間 | 10:00~18:00 |
| 定休日 | 水曜日 |
| 宅建免許番号 | 佐賀県知事(2)第2561号 |
| アクセス | 店舗への地図はこちら |





