伊予郡松前町筒井 全4区画
掲載情報更新日:2026年01月20日 次回更新予定日:2026年02月03日 取引条件の有効期限:2026年02月12日
伊予郡松前町筒井 全4区画 | 物件情報
価格
2,630万円~2,680万円所在地
愛媛県伊予郡松前町大字筒井交通
伊予鉄道郡中線『松前』 徒歩13分 ~ 13分 (約1040m ~ 1040m)※所要時間内は、統計データに基づいた所要時間を掲載しております。
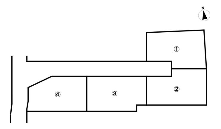
【区画割り画像】
物件の設備
- オール電化
- 公営水道
- 電気
物件の特徴
- 2階建
分譲地情報
| 分譲地名 | 伊予郡松前町筒井 全4区画 | ||
|---|---|---|---|
| 販売区画数 | 4戸 | 総区画数 | 4戸 |
| 価格 | 2,630万円~2,680万円 | ||
| 最多価格帯 | |||
| 交通 |
伊予鉄道郡中線『松前』 徒歩13分 ~ 13分 (約1040m ~ 1040m) |
||
| 土地面積 | 125.96㎡ ~137.22㎡ | ||
| 建物面積 | 102.06㎡ ~108.13㎡ | ||
| 都市計画 | 市街化区域 | 用途地域 | 1種住居 |
| 建ぺい率 | 60%(一部70% 含む) | 容積率 | 172% |
| 地目 | 地勢 | ||
| 許可番号 | 土地国士法 | ||
| 法令制限 | |||
| 小学校区 | 松前小学校 徒歩18分 ~18分 (約1400m ~1400m) | ||
| 中学校区 | 松前中学校 徒歩17分 ~17分 (約1300m ~1300m) | ||
| 周辺環境情報 | |||
| 備考 | |||
| 分譲地番号 | 241744 | ||
取扱店舗情報
| 電話番号 | 089-989-9258 |
|---|---|
| 所在地 | 〒791-3120 愛媛県伊予郡松前町筒井955番1 |
| 営業時間 | 9:30~18:00 |
| 定休日 | 水曜日、年末年始 |
| 宅建免許番号 | 愛媛県知事(6)第4310号 |
| アクセス | 店舗への地図はこちら |





