高槻市津之江町一丁目売土地
掲載情報更新日:2025年12月04日 次回更新予定日:2025年12月18日 取引条件の有効期限:2025年12月24日
高槻市津之江町一丁目売土地 | 物件情報
価格
2,380万円~2,380万円所在地
大阪府高槻市津之江町1丁目交通
阪急電鉄京都線『富田』 徒歩22分 ~ 22分 (約1760m ~ 1760m)※所要時間内は、統計データに基づいた所要時間を掲載しております。
物件の設備
- 公共下水
- 都市ガス
- 上水道
物件の特徴
- 小学校徒歩10分以内
- 2沿線利用可
- スーパーが近い
- 閑静な住宅街
- 陽当り良好
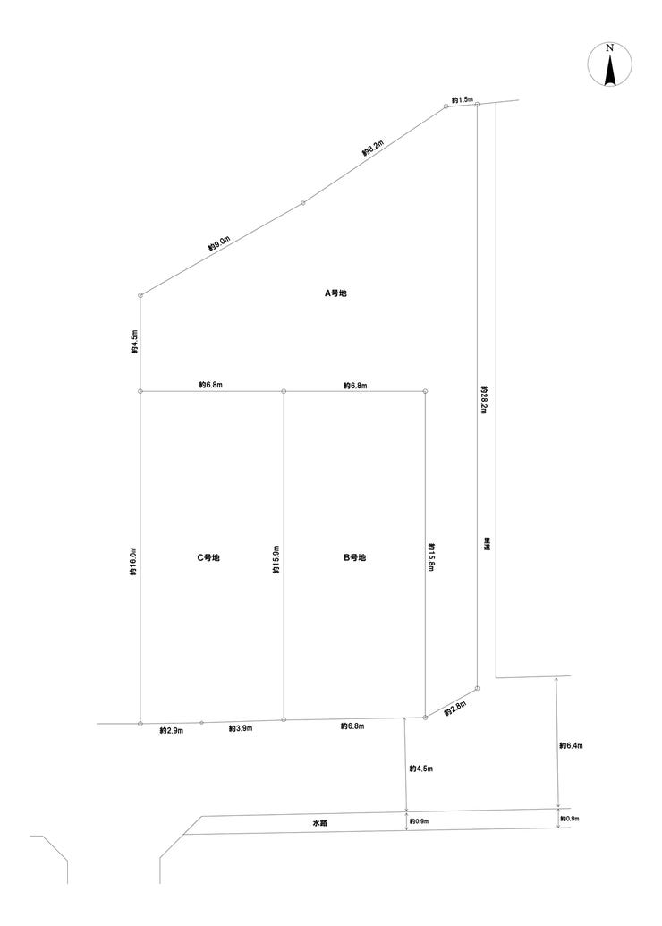
分譲地情報
| 分譲地名 | 高槻市津之江町一丁目売土地 | ||
|---|---|---|---|
| 販売区画数 | 2戸 | 総区画数 | 2戸 |
| 価格 | 2,380万円~2,380万円 | ||
| 最多価格帯 | |||
| 交通 |
阪急電鉄京都線『富田』 徒歩22分 ~ 22分 (約1760m ~ 1760m) |
||
| 土地面積 | 109.07㎡ ~109.95㎡ | ||
| 建物面積 | |||
| 都市計画 | 市街化区域 | 用途地域 | 2種中高 |
| 建ぺい率 | 60% | 容積率 | 200% |
| 地目 | 地勢 | ||
| 許可番号 | 土地国士法 | ||
| 法令制限 | 高度地区・宅地造成及び特定盛土等規制法・準防火地域・景観地区 | ||
| 小学校区 | |||
| 中学校区 | |||
| 周辺環境情報 | |||
| 備考 | |||
| 分譲地番号 | 245733 | ||
取扱店舗情報
ハウスドゥ 阪急高槻南 阿佐建築工務株式会社 店舗詳細ページへ
| 電話番号 | 072-668-1888 |
|---|---|
| 所在地 | 〒569-0072 大阪府高槻市京口町8-7 |
| 営業時間 | 9:00~18:00 |
| 定休日 | 火曜日・水曜日 |
| 宅建免許番号 | 大阪府知事(15)第10672号 |
| アクセス | 店舗への地図はこちら |






