府中市紅葉丘3丁目 全2棟 新築分譲住宅
掲載情報更新日:2025年12月06日 次回更新予定日:2025年12月20日 取引条件の有効期限:2025年12月27日
府中市紅葉丘3丁目 全2棟 新築分譲住宅 | 物件情報
価格
5,990万円~6,490万円所在地
東京都府中市紅葉丘3丁目交通
西武多摩川線『多磨』 徒歩6分 ~ 6分 (約480m ~ 480m)西武多摩川線『白糸台』 徒歩12分 ~ 12分 (約960m ~ 960m)
※所要時間内は、統計データに基づいた所要時間を掲載しております。
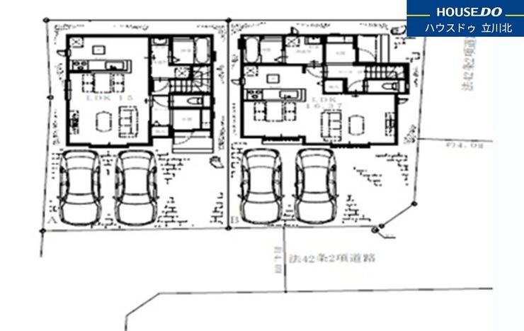
【区画割り画像】
物件の設備
- 公共下水
- 公営水道
- 電気
物件の特徴
- 小学校徒歩10分以内
- 市街地が近い
- 都市近郊
- 閑静な住宅街
- 2階建
- 陽当り良好
- 通風良好
- 整形地
分譲地情報
| 分譲地名 | 府中市紅葉丘3丁目 全2棟 新築分譲住宅 | ||
|---|---|---|---|
| 販売区画数 | 2戸 | 総区画数 | 2戸 |
| 価格 | 5,990万円~6,490万円 | ||
| 最多価格帯 | |||
| 交通 |
西武多摩川線『多磨』 徒歩6分 ~ 6分 (約480m ~ 480m) 西武多摩川線『白糸台』 徒歩12分 ~ 12分 (約960m ~ 960m) |
||
| 土地面積 | 105.80㎡ ~109.10㎡ | ||
| 建物面積 | 83.20㎡ ~86.90㎡ | ||
| 都市計画 | 市街化区域 | 用途地域 | 1種低層 |
| 建ぺい率 | 40% | 容積率 | 80% |
| 地目 | 地勢 | ||
| 許可番号 | 土地国士法 | ||
| 法令制限 | |||
| 小学校区 | 白糸台小学校 徒歩9分 ~9分 (約720m ~720m) | ||
| 中学校区 | 府中第二中学校 徒歩8分 ~8分 (約640m ~640m) | ||
| 周辺環境情報 | |||
| 備考 | ☆西武多摩川線「多磨」駅徒歩6分☆ フーズマーケットさえき若松町店・・・徒歩約15分/ファミリーマート 府中あんず通り店・・・徒歩約5分/さくらんぼ保育園・・・約徒歩 7 分/府中つくし幼稚園・・・約徒歩 9 分 | ||
| 分譲地番号 | 249755 | ||
取扱店舗情報
ハウスドゥ 立川北 株式会社シティリノベーション 店舗詳細ページへ
| 電話番号 | 042-537-9361 |
|---|---|
| 所在地 | 〒190-0004 東京都立川市柏町3-19-14 フレンテ1F |
| 営業時間 | 9:00~18:00 |
| 定休日 | GW、夏季、冬季 |
| 宅建免許番号 | 東京都知事(2)第100954号 |
| アクセス | 店舗への地図はこちら |

来店ご予約
最近見た物件
-
-

-
- 新築一戸建て
- 3,690万円
-
名古屋市北区西味鋺5丁目
-
名鉄小牧線味鋺
-
-
-

-
- 新築一戸建て
- 4,890万円
-
刈谷市野田町西田
-
JR東海道本線野田新町
-
-
-

-
- 中古マンション
- 1,480万円
-
横浜市中区本牧大里町
-
JR京浜東北・根岸線山手
-


