リナージュ四日市市松本5丁目 01期 全3棟
掲載情報更新日:2026年04月10日 次回更新予定日:2026年04月24日 取引条件の有効期限:2026年04月28日
リナージュ四日市市松本5丁目 01期 全3棟 | 物件情報
価格
2,990万円~3,590万円所在地
三重県四日市市松本5丁目交通
近鉄湯の山線『伊勢松本』 徒歩5分 ~ 5分 (約400m ~ 400m)近鉄湯の山線『中川原』 徒歩17分 ~ 17分 (約1360m ~ 1360m)
三重交通バス『「松本駅前」停』 徒歩4分 ~ 4分 (約320m ~ 320m)
※所要時間内は、統計データに基づいた所要時間を掲載しております。
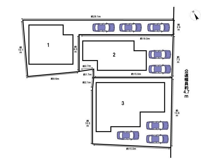
【区画割り画像】
物件の設備
- 公共下水
- 公営水道
- 都市ガス
- 上水道
- 電気
物件の特徴
- 耐震構造
- 小学校徒歩10分以内
- 駅まで平坦
- スーパーが近い
- 2階建
- 平坦地
分譲地情報
| 分譲地名 | リナージュ四日市市松本5丁目 01期 全3棟 | ||
|---|---|---|---|
| 販売区画数 | 総区画数 | 3戸 | |
| 価格 | 2,990万円~3,590万円 | ||
| 最多価格帯 | |||
| 交通 |
近鉄湯の山線『伊勢松本』 徒歩5分 ~ 5分 (約400m ~ 400m) 近鉄湯の山線『中川原』 徒歩17分 ~ 17分 (約1360m ~ 1360m) 三重交通バス『「松本駅前」停』 徒歩4分 ~ 4分 (約320m ~ 320m) |
||
| 土地面積 | 140.93㎡ ~149.39㎡ | ||
| 建物面積 | 106.82㎡ ~106.82㎡ | ||
| 都市計画 | 市街化区域 | 用途地域 | 1種住居 |
| 建ぺい率 | 60% | 容積率 | 200% |
| 地目 | 地勢 | ||
| 許可番号 | 土地国士法 | ||
| 法令制限 | 法22条区域 | ||
| 小学校区 | 常磐西小学校 徒歩10分 ~10分 (約750m ~750m) | ||
| 中学校区 | 常磐中学校 徒歩11分 ~11分 (約850m ~850m) | ||
| 周辺環境情報 | |||
| 備考 | |||
| 分譲地番号 | 251980 | ||
取扱店舗情報
ハウスドゥ 四日市松本街道 ファミリアホームサービス株式会社 店舗詳細ページへ
| 電話番号 | 059-328-5015 |
|---|---|
| 所在地 | 〒510-0836 三重県四日市市松本3丁目8-7 ジーアイビル BLOOM 1A |
| 営業時間 | 10:00~18:00 |
| 定休日 | 水曜日、年末年始(水曜日が祝日の場合は営業) |
| 宅建免許番号 | 国土交通大臣(2)第9218号 |
| アクセス | 店舗への地図はこちら |






