Re・Terrechez名古屋市北区上飯田南町2丁目 全2棟
NEW 04.15掲載情報更新日:2026年04月11日 次回更新予定日:2026年04月25日 取引条件の有効期限:2026年05月02日
Re・Terrechez名古屋市北区上飯田南町2丁目 全2棟 | 物件情報
価格
4,999万円~5,199万円所在地
愛知県名古屋市北区上飯田南町2丁目交通
名古屋市上飯田線『上飯田』 徒歩6分 ~ 6分 (約480m ~ 480m)名古屋市上飯田線『上飯田』 徒歩6分 ~ 6分 (約480m ~ 480m)
名古屋市営バス『「上飯田」停』 徒歩3分 ~ 3分 (約172m ~ 172m)
※所要時間内は、統計データに基づいた所要時間を掲載しております。
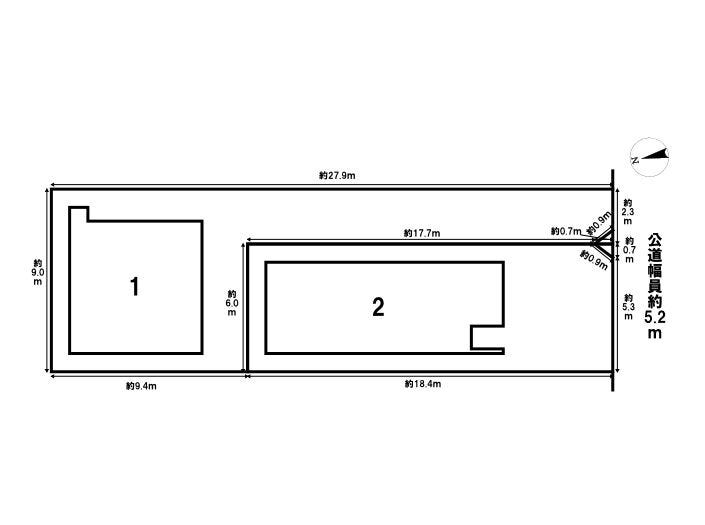
【区画割り画像】
物件の設備
- 公営水道
- 都市ガス
- 下水道
物件の特徴
- 小学校徒歩10分以内
- スーパーが近い
- 陽当り良好
- 整形地
- 2階建
分譲地情報
| 分譲地名 | Re・Terrechez名古屋市北区上飯田南町2丁目 全2棟 | ||
|---|---|---|---|
| 販売区画数 | 総区画数 | 2戸 | |
| 価格 | 4,999万円~5,199万円 | ||
| 最多価格帯 | |||
| 交通 |
名古屋市上飯田線『上飯田』 徒歩6分 ~ 6分 (約480m ~ 480m) 名古屋市上飯田線『上飯田』 徒歩6分 ~ 6分 (約480m ~ 480m) 名古屋市営バス『「上飯田」停』 徒歩3分 ~ 3分 (約172m ~ 172m) |
||
| 土地面積 | 111.59㎡ ~141.70㎡ | ||
| 建物面積 | 97.99㎡ ~106.65㎡ | ||
| 都市計画 | 市街化区域 | 用途地域 | 1種住居 |
| 建ぺい率 | 60% | 容積率 | 200% |
| 地目 | 地勢 | ||
| 許可番号 | 土地国士法 | ||
| 法令制限 | 準防火地域31m高度地区 | ||
| 小学校区 | 飯田小学校 徒歩7分 ~7分 (約540m ~540m) | ||
| 中学校区 | 大曽根中学校 徒歩15分 ~15分 (約1170m ~1170m) | ||
| 周辺環境情報 | |||
| 備考 | |||
| 分譲地番号 | 258438 | ||
取扱店舗情報
ハウスドゥ 北区城北 ファミリアホームサービス株式会社 店舗詳細ページへ
| 電話番号 | 052-908-8088 |
|---|---|
| 所在地 | 〒462-0051 愛知県名古屋市北区中切町4丁目84-1 |
| 営業時間 | 10:00~18:00 |
| 定休日 | 水曜日・年末年始(水曜日が祝日の場合は営業) |
| 宅建免許番号 | 国土交通大臣(2)第9218号 |
| アクセス | 店舗への地図はこちら |

来店ご予約
最近見た物件
-
-

-
- 中古一戸建て
- 3,388万円
-
菊池郡菊陽町武蔵ヶ丘2丁目
-
JR豊肥本線武蔵塚
-
-
-

-
- 新築一戸建て
- 4,480万円
-
知多郡東浦町大字石浜字田之助
-
JR武豊線石浜
-
-
-

-
- 中古一戸建て
- 1,699万円
-
新潟市西区五十嵐2の町
-
JR越後線内野
-


