泉佐野市南中安松第1期 全11区画 リナージュ 土地分譲
NEW 04.20掲載情報更新日:2026年04月19日 次回更新予定日:2026年05月03日 取引条件の有効期限:2026年05月10日
泉佐野市南中安松第1期 全11区画 リナージュ 土地分譲 | 物件情報
価格
1,280万円~1,880万円所在地
大阪府泉佐野市南中安松交通
南海電鉄本線『羽倉崎』 徒歩17分 ~ 17分 (約1360m ~ 1360m)JR阪和線『長滝』 徒歩23分 ~ 23分 (約1840m ~ 1840m)
※所要時間内は、統計データに基づいた所要時間を掲載しております。
物件の設備
- 公営水道
- 都市ガス
- 浄化槽
- 電気
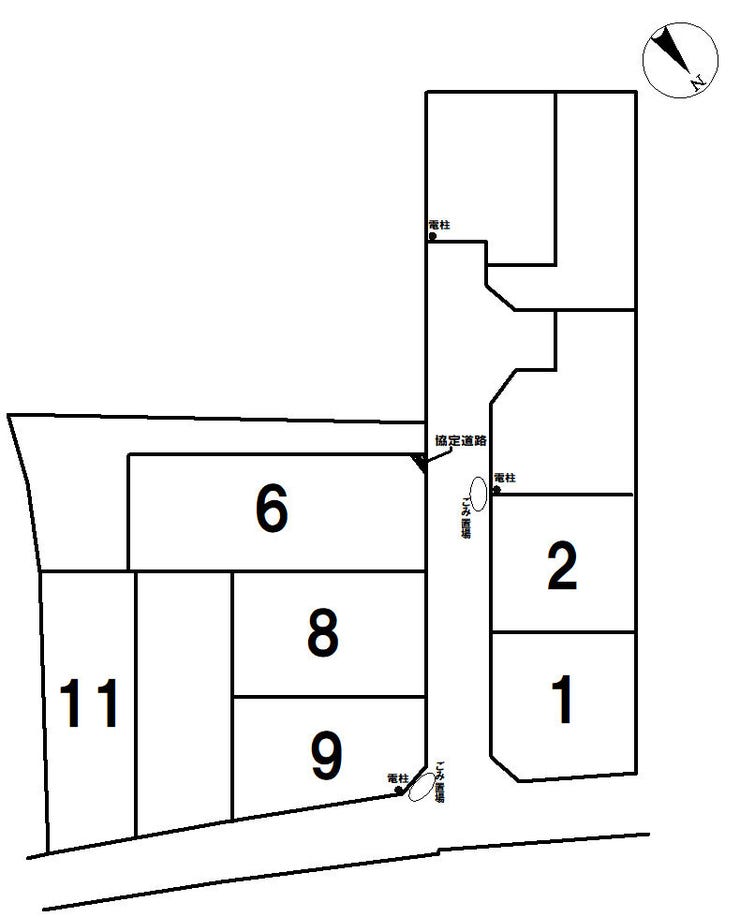
分譲地情報
| 分譲地名 | 泉佐野市南中安松第1期 全11区画 リナージュ 土地分譲 | ||
|---|---|---|---|
| 販売区画数 | 6戸 | 総区画数 | |
| 価格 | 1,280万円~1,880万円 | ||
| 最多価格帯 | 1400.00万円 ~1500.00万円(3戸) | ||
| 交通 |
南海電鉄本線『羽倉崎』 徒歩17分 ~ 17分 (約1360m ~ 1360m) JR阪和線『長滝』 徒歩23分 ~ 23分 (約1840m ~ 1840m) |
||
| 土地面積 | 105.45㎡ ~184.26㎡ | ||
| 建物面積 | |||
| 都市計画 | 市街化区域 | 用途地域 | 準工業 |
| 建ぺい率 | 60% | 容積率 | 200% |
| 地目 | 地勢 | ||
| 許可番号 | 土地国士法 | ||
| 法令制限 | 法22条区域 | ||
| 小学校区 | 長南小学校 徒歩13分 ~13分 (約1000m ~1000m) | ||
| 中学校区 | 長南中学校 徒歩10分 ~10分 (約800m ~800m) | ||
| 周辺環境情報 |
安松幼稚園 徒歩8分 ~ 8分 (約550m ~ 550m) セブンイレブン 泉佐野南中安松店 徒歩8分 ~ 8分 (約600m ~ 600m) 泉佐野南中安松郵便局 徒歩8分 ~ 8分 (約550m ~ 550m) 長南小学校徒歩13分 (約1000m) 泉佐野市立長南中学校徒歩10分 (約800m) |
||
| 備考 | ●建築条件無し ●現況:更地 ●お好きなハウスメーカー・工務店で建築できます♪ ●泉佐野南中安松郵便局まで約550m ●安松幼稚園まで約550m ●セブンーイレブン 泉佐野南中安松店まで約600m ●マツゲン 長滝店まで約750m ・新設の位置指定道路は市に移管予定 ・現況有姿でのお引き渡し(現状有姿売買) | ||
| 分譲地番号 | 258712 | ||
取扱店舗情報
ハウスドゥ 泉佐野日根野 株式会社ファイン・サポート 店舗詳細ページへ
| 電話番号 | 072-447-6624 |
|---|---|
| 所在地 | 〒598-0021 大阪府泉佐野市日根野4288-1-103 |
| 営業時間 | 10:00~19:00 |
| 定休日 | 水曜日 |
| 宅建免許番号 | 大阪府知事(6)第47889号 |
| アクセス | 店舗への地図はこちら |

来店ご予約
最近見た物件
-
-

-
- 中古一戸建て
- 2,590万円
-
一宮市丹陽町重吉字鋳物師海道
-
名鉄犬山線石仏
-
-
-

-
- 新築一戸建て
- 3,190万円
-
海部郡大治町大字馬島字西深田
-
名鉄津島線甚目寺
-
-
-

-
- 中古一戸建て
- 600万円
-
長崎市矢の平2丁目
-
長崎電軌螢茶屋支線新中川町
-


