福津市日蒔野6丁目 2号棟 新築戸建
掲載情報更新日:2026年03月17日 次回更新予定日:2026年03月31日
- 4,348万円
-
- 借入ご希望金額
万円 - 借入期間
年 - 借入金利
% - 月々のお支払い金額
円
- 借入ご希望金額
※ 月々のお支払例は目安の試算となりますので、実際の金額とは異なる場合がございます。詳しくは店舗までお問合わせください。
- 福津市日蒔野6丁目
-
JR鹿児島本線『福間』 徒歩18分 (約1420m)
JR鹿児島本線『千鳥』 徒歩33分 (約2590m)
JR鹿児島本線『東福間』 徒歩34分 (約2710m)
西鉄バス『上西郷』 徒歩3分 (約240m)
福津市日蒔野6丁目 2号棟 新築戸建一戸建て | 物件情報
物件の設備
- オール電化
- 公営水道
- 公共下水
- 側溝
- 給湯
- 浄水器
- 食器洗浄乾燥機
- コンロ三口
- グリル
- カウンターキッチン
- システムキッチン
- オートバス
- バス1坪以上
- 追焚機能
- 浴室暖房
- 浴室乾燥機
- 浴室に窓
- トイレ2箇所
- 温水洗浄便座
- 室内洗濯機置場
- 洗髪洗面化粧台
- ダウンライト
- リビング階段
- 省エネ給湯器
- カードキー
- ディンプルキー
- ダブルロックキー
- モニタ付インターホン
- 火災警報器/報知機
- LDK15畳以上
- 和室
- 複層ガラス
- シャッター雨戸
- 24時間換気システム
- クローゼット
- ウォークインクローゼット
- 床下収納
- 全居室収納
- シューズボックス
- バルコニー
- ワイドバルコニー
- 南面バルコニー
- 宅配BOX
物件の特徴
- 前道6m以上
- スーパーが近い
- 閑静な住宅街
- 周辺交通量少なめ
- 陽当り良好
- 2階建
- 平坦地
- 建設住宅性能評価付
- 設計住宅性能評価付
- 建築確認完了検査済証
- フラット35Sに対応
物件詳細情報
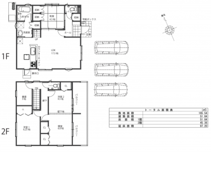
| 価格 | 4,348万円 | 間取り | 4LDK+S |
|---|---|---|---|
| 物件種別 | 新築一戸建て | ||
| 所在地 | 福岡県福津市日蒔野6丁目 2号棟 | ||
| アクセス |
|
||
| 建物面積 | 公97.2㎡ | 駐車場 | あり |
| 築年月 | 2024年(令和6年)02月築 | 建築確認 | |
| 建物構造 | 木造 2階建 | 工法 | |
| 主要採光 | バルコニー | ||
| 保証・評価 | 設計住宅性能評価書・建設住宅性能評価書(新築時) |
||
| 土地面積 | 公165.54㎡(50.07坪) | 接道 | 南東側(公道)幅 約9.0m 間口 約11.80m |
| 私道 | セットバック | ||
| 地目 | 宅地 | 地勢 | 平坦 |
| 権利 | 所有権 |
||
| 都市計画 | 市街化区域 |
用途地域 | 1種低層 |
| 建ぺい/容積率 | 40% / 60% | 土地国土法 | |
| 許可番号 | 建築基準法 | ||
| 法令制限 | |||
| 小学区 | 福間南小学校 徒歩13分 (約1020m) | 中学区 | 福間中学校 徒歩26分 (約2060m) |
| 現況 | 空 | 引渡 | 相談 |
| その他費用 | |||
| 周辺環境 | 宮城病院 徒歩2分 (約150m) 福津いくみ保育園 徒歩4分 (約320m) しもつき公園 徒歩3分 (約240m) ファミリーマート 福津上西郷店 徒歩4分 (約320m) 宗像水光会総合病院 徒歩6分 (約440m) セブンイレブン 福津日蒔野店 徒歩7分 (約550m) 日蒔野あおぞら保育園 徒歩8分 (約590m) イオンモール福津 徒歩9分 (約660m) ドラッグストアモリ 福間店 徒歩9分 (約660m) 日蒔野 うみがめ保育園 徒歩10分 (約750m) |
||
| 備考 | |||
| 物件番号 | 4117090 | 取引態様 | 媒介 |
取扱店舗情報
| 電話番号 | 092-719-1128 |
|---|---|
| 所在地 | 〒811-3101 福岡県古賀市天神1丁目25番1号 アコーンズ古賀101号 |
| 営業時間 | 10:00~18:00 |
| 定休日 | 年末年始 |
| 宅建免許番号 | 福岡県知事(1)第19922号 |
| アクセス | 店舗への地図はこちら |

来店ご予約
福岡県福津市で価格が似ている物件はこちら
- 福岡県
マイページ物件数 - 8,741件
福岡県新築一戸建て新着物件
-
-

-
- 新築一戸建て
- 5,280万円
-
福岡市東区美和台5丁目
-
西鉄貝塚線三苫駅
-
-
-

-
- 新築一戸建て
- 5,330万円
-
福岡市東区美和台5丁目
-
西鉄貝塚線三苫駅
-
-
-

-
- 新築一戸建て
- 4,598万円
-
福岡市南区老司1丁目
-
JR博多南線博多南駅
-
-
-

-
- 新築一戸建て
- 3,898万円
-
古賀市千鳥2丁目
-
JR鹿児島本線千鳥駅
-
-
-

-
- 新築一戸建て
- 3,898万円
-
古賀市千鳥2丁目
-
JR鹿児島本線千鳥駅
-
-
-

-
- 新築一戸建て
- 4,298万円
-
福岡市南区寺塚2丁目
-
西鉄天神大牟田線高宮駅
-
-
-

-
- 新築一戸建て
- 4,498万円
-
福岡市南区寺塚2丁目
-
西鉄天神大牟田線高宮駅
-
- お近くの店舗を探す
-
おすすめ物件
-
-

-
- 新築一戸建て
- 3,498万円
-
宗像市原町
-
JR鹿児島本線東郷
-
-
-

-
- 新築一戸建て
- 2,798万円
-
宗像市原町
-
JR鹿児島本線東郷
-
-
-

-
- 新築一戸建て
- 3,298万円
-
北九州市小倉南区中貫2丁目
-
西鉄バス貫入口停
-
-
-

-
- 新築一戸建て
- 3,398万円
-
北九州市小倉南区上貫1丁目
-
JR日豊本線下曽根
-
-
-

-
- 新築一戸建て
- 2,498万円
-
鞍手郡鞍手町大字中山
-
JR筑豊本線鞍手
-
-
-

-
- 新築一戸建て
- 3,398万円
-
大野城市南ケ丘6丁目
-
JR鹿児島本線水城
-
-
-

-
- 新築一戸建て
- 3,598万円
-
古賀市天神4丁目
-
JR鹿児島本線古賀
-
-
-

-
- 新築一戸建て
- 4,398万円
-
福岡市南区長住1丁目
-
西鉄天神大牟田線高宮
-
-
-

-
- 新築一戸建て
- 4,880万円
-
福岡市西区横浜1丁目
-
JR筑肥線九大学研都市
-
-
-

-
- 新築一戸建て
- 4,098万円
-
那珂川市今光8丁目
-
JR博多南線博多南
-











