茨木市目垣1丁目の新築戸建
掲載情報更新日:2026年03月28日 次回更新予定日:2026年04月11日
- 3,980万円
-
- 借入ご希望金額
万円 - 借入期間
年 - 借入金利
% - 月々のお支払い金額
円
- 借入ご希望金額
※ 月々のお支払例は目安の試算となりますので、実際の金額とは異なる場合がございます。詳しくは店舗までお問合わせください。
- 茨木市目垣1丁目
-
阪急電鉄京都線『茨木市』 バス乗車15分 京阪バス 目垣 停 徒歩5分 (約400m)
茨木市目垣1丁目一戸建て | 物件情報
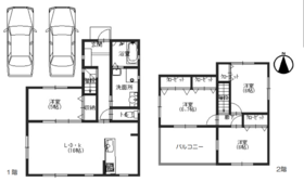
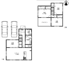
◇3LDK+2台駐車可 ◇2方向空き。採光・通風良好 ◇土地面積102㎡ ◇収納充実
住宅ローン・資金計画にお悩みの方、是非当社にご相談ください!
住宅購入・お住み替えにつきもののお悩みを一緒に解決していきましょう!
・頭金0円で購入したい・・・
・駅近くのマンションに住み替えたい・・・
・住宅ローンが通るか不安・・・
・頭金が用意できない・・・
・毎月いくらまで払えるかわからない・・・
など、様々なお悩みをお持ちの方。
お気軽にお申し付け下さい♪
★物件のご内覧は、ご自宅への送迎や指定場所お待合わせでのご案内可。
★キッズスペース完備!DVDおもちゃなどご用意していますので安心してご来店ください。
★お客様専用駐車場完備!お気軽にご来店お待ちいたしております。
物件の設備
- 電気
- 上水道
- 下水道
- 都市ガス
- 食器洗浄乾燥機
- システムキッチン
- オートバス
- 浴室暖房
- 浴室乾燥機
- 浴室に窓
- 温水洗浄便座
- 床暖房
- LDK15畳以上
- 全室フローリング
- ワイドバルコニー
物件の特徴
- 南向
- 小学校徒歩10分以内
- スーパーが近い
- 閑静な住宅街
- 通風良好
- 陽当り良好
- 2階建
- 整形地
- 開発分譲地内
- 区画整理地内
物件詳細情報
| 価格 | 3,980万円 | 間取り | 3LDK |
|---|---|---|---|
| 物件種別 | 新築一戸建て | ||
| 所在地 | 大阪府茨木市目垣1丁目 | ||
| アクセス |
|
||
| 建物面積 | 公90.72㎡ | 駐車場 | なし |
| 築年月 | 2025年(令和7年)03月予定 | 建築確認 | 技建認2024-00610号 |
| 建物構造 | 木造 2階建 | 工法 | |
| 主要採光 | バルコニー | ||
| 保証・評価 | |||
| 土地面積 | 公102㎡(30.85坪) | 接道 | |
| 私道 | セットバック | ||
| 地目 | 宅地 | 地勢 | |
| 権利 | 所有権 |
||
| 都市計画 | 市街化区域 |
用途地域 | 1種中高 |
| 建ぺい/容積率 | 60% / 200% | 土地国土法 | |
| 許可番号 | 建築基準法 | ||
| 法令制限 | |||
| 小学区 | 中学区 | ||
| 現況 | 建築中 | 引渡 | 未記入 |
| その他費用 | |||
| 周辺環境 | 玉島公民館 図書館分室 徒歩5分 (約330m) まるとく市場平田店 徒歩9分 (約660m) スギドラッグ茨木平田店 徒歩7分 (約550m) 西松屋 茨木平田店 徒歩8分 (約570m) セブンイレブン茨木目垣2丁目店 徒歩8分 (約610m) ニトリ 茨木南目垣店 徒歩9分 (約680m) 玉島交番 徒歩9分 (約670m) ファミリーマート茨木南目垣店 徒歩9分 (約710m) 茨木ゴルフセンター 徒歩9分 (約660m) 北野外科内科 徒歩11分 (約850m) |
||
| 備考 | |||
| 物件番号 | 4136228 | 取引態様 | 媒介 |
取扱店舗情報
ハウスドゥ 阪急茨木市駅南 株式会社エムアイエム 店舗詳細ページへ
| 電話番号 | 072-697-8701 |
|---|---|
| 所在地 | 〒567-0827 大阪府茨木市稲葉町11-8 ローズビルウチダ1F |
| 営業時間 | 10:00~19:00 |
| 定休日 | 水曜日、年末年始 |
| 宅建免許番号 | 大阪府知事(1)第64466号 |
| アクセス | 店舗への地図はこちら |

来店ご予約
大阪府茨木市で価格が似ている物件はこちら
- 大阪府
マイページ物件数 - 18,147件
最近見た物件
-
-

-
- 土地
- 200万円
-
瀬戸内市牛窓町鹿忍
-
西小学校前バス停
-
大阪府新築一戸建て新着物件
-
-

-
- 新築一戸建て
- 4,380万円
-
堺市西区堀上緑町2丁
-
南海電鉄泉北線深井駅
-
-
-

-
- 新築一戸建て
- 3,180万円
-
堺市東区南野田
-
南海電鉄高野線北野田駅
-
-
-

-
- 新築一戸建て
- 2,980万円
-
堺市西区浜寺石津町西4丁
-
南海電鉄本線石津川駅
-
-
-

-
- 新築一戸建て
- 5,280万円
-
箕面市半町4丁目
-
阪急電鉄箕面線桜井駅
-
-
-

-
- 新築一戸建て
- 4,490万円
-
高槻市昭和台町2丁目
-
阪急電鉄京都線総持寺駅
-
-
-

-
- 新築一戸建て
- 4,890万円
-
高槻市昭和台町2丁目
-
阪急電鉄京都線総持寺駅
-
-
-

-
- 新築一戸建て
- 5,190万円
-
高槻市昭和台町2丁目
-
阪急電鉄京都線総持寺駅
-
- お近くの店舗を探す
-
おすすめ物件
-
-

-
- 新築一戸建て
- 3,850万円
-
泉大津市昭和町
-
南海電鉄本線泉大津
-
-
-

-
- 新築一戸建て
- 3,480万円
-
高槻市津之江町2丁目
-
JR東海道線摂津富田
-
-
-

-
- 新築一戸建て
- 3,380万円
-
東大阪市花園東町2丁目
-
近鉄難波・奈良線東花園
-
-
-

-
- 新築一戸建て
- 3,680万円
-
大阪市東住吉区住道矢田4丁目
-
近鉄南大阪線矢田
-
-
-

-
- 新築一戸建て
- 3,680万円
-
高槻市安岡寺町2丁目
-
JR東海道線高槻
-
-
-

-
- 新築一戸建て
- 3,090万円
-
摂津市南別府町
-
大阪市今里筋線井高野
-
-
-

-
- 新築一戸建て
- 2,798万円
-
高槻市東五百住町2丁目
-
阪急電鉄京都線富田
-
-
-

-
- 新築一戸建て
- 3,290万円
-
摂津市南別府町
-
大阪市今里筋線井高野
-
-
-

-
- 新築一戸建て
- 4,198万円
-
摂津市三島2丁目
-
大阪モノレール摂津
-
-
-

-
- 新築一戸建て
- 4,780万円
-
堺市北区百舌鳥本町2丁
-
JR阪和線百舌鳥
-



担当エージェント:村田 実
住宅ローン・資金計画にお悩みの方、是非当社にご相談ください!住宅購入・お住み替えにつきもののお悩みを一緒に解決していきましょう!お気軽にお申し付け下さい♪