かほく市内日角ワの新築戸建
掲載情報更新日:2026年04月27日 次回更新予定日:2026年05月11日
- 3,180万円
-
- 借入ご希望金額
万円 - 借入期間
年 - 借入金利
% - 月々のお支払い金額
円
- 借入ご希望金額
※ 月々のお支払例は目安の試算となりますので、実際の金額とは異なる場合がございます。詳しくは店舗までお問合わせください。
- かほく市内日角ワ
-
JR七尾線『宇野気』 徒歩27分 (約2110m)
かほく市内日角ワ一戸建て | 物件情報
イオンモールかほくまで徒歩圏内!嬉しい4LDK の新築戸建て登場(^^)/
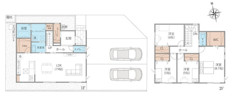
★南向きリビングの4LDK
★ユーティリティールーム完備で洗濯物の家事楽々♪
★各居室収納完備
★イオンモールかほくまで徒歩5分
イオンモールかほくまで徒歩圏内の好立地に4LDKの新築戸建てが登場!
前面道路の幅員6mで駐車が苦手の方でも安心です!整備された開発分譲地ですので、新築戸建が並び合い綺麗な住宅街です♪
室内はパントリー、WICなど収納豊富でお部屋をスッキリ見せれますね(^^)/
主寝室は広々8.7帖、使い方によってはデスクを置いて読書やリモートワークにも最適です!
物件の設備
- オール電化
- 上水道
- 下水道
- プロパンガス
- 食品庫
- IHクッキングヒータ
- カウンターキッチン
- バス1坪以上
- トイレ2箇所
- 温水洗浄便座
- 洗面所独立
- LDK18畳以上
- 複層ガラス
- クローゼット3箇所
- ウォークインクローゼット
- 床下収納
- 全居室収納
物件の特徴
- 前道6m以上
- 2階建
物件詳細情報
| 価格 | 3,180万円 | 間取り | 4LDK |
|---|---|---|---|
| 物件種別 | 新築一戸建て | ||
| 所在地 | 石川県かほく市内日角ワ 5号棟 | ||
| アクセス |
|
||
| 建物面積 | 公117.58㎡ | 駐車場 | あり 普通:2台 |
| 築年月 | 2025年(令和7年)05月築 | 建築確認 | 第ERI-24041175号 |
| 建物構造 | 木造 2階建 | 工法 | |
| 主要採光 | 南向 | バルコニー | |
| 保証・評価 | |||
| 土地面積 | 公159.62㎡(48.28坪) | 接道 | 東側(公道)幅 約6.0m |
| 私道 | セットバック | ||
| 地目 | 宅地 | 地勢 | |
| 権利 | 所有権 |
||
| 都市計画 | 非線引区域 |
用途地域 | 準工業 |
| 建ぺい/容積率 | 60% / 200% | 土地国土法 | |
| 許可番号 | 建築基準法 | ||
| 法令制限 | 水防法・都市再生特別措置法・景観法 | ||
| 小学区 | 宇ノ気小学校 徒歩28分 (約2190m) | 中学区 | 宇ノ気中学校 徒歩30分 (約2390m) |
| 現況 | 完工済 | 引渡 | 期日指定:2025年05月下旬 |
| その他費用 | |||
| 周辺環境 | イオンモールかほく 徒歩8分 (約620m) Aコープ かほく店 徒歩22分 (約1750m) セブンイレブン 白尾インター店 徒歩23分 (約1770m) かほく市立しらゆりこども園 徒歩26分 (約2060m) クスリのアオキ新七塚店 徒歩23分 (約1840m) 宇ノ気小学校 徒歩28分 (約2190m) 大阪屋ショップ かほく店 徒歩25分 (約1970m) JR七尾線/宇野気駅 徒歩27分 (約2110m) 外日角郵便局 徒歩31分 (約2480m) 宇ノ気中学校 徒歩30分 (約2390m) |
||
| 備考 | 非線引き区域、水防法、都市再生特別措置法、景観法、文化財保護法、建築条件有り、道路斜線制限:有、隣地斜線制限:有、日影規制:有、敷地面積の制限:有(最低限度150㎡)、容積率の制限補足:かほく市内日角ワ108番8(5号地)と122番2(1号地)については街区の角にある敷地、またはこれに準ずる敷地で、特定行政庁が指定するものに含まれる予定の為、建ぺい率が70%となる予定です。 水防法:雨水出水浸水想定区域の指定あり・高潮浸水想定区域の指定なし。 | ||
| 物件番号 | 4140364 | 取引態様 | 媒介 |
取扱店舗情報
ハウスドゥ 金沢福久 株式会社サンリーバイカイ 店舗詳細ページへ
| 電話番号 | 076-201-8855 |
|---|---|
| 所在地 | 〒920-3126 石川県金沢市福久2丁目1 |
| 営業時間 | 9:30~18:00 |
| 定休日 | 毎週水曜・年末年始 |
| 宅建免許番号 | 石川県知事(1)第4504号 |
| アクセス | 店舗への地図はこちら |

来店ご予約
石川県かほく市で価格が似ている物件はこちら
- 石川県
マイページ物件数 - 467件
最近見た物件
-
-

-
- 中古一戸建て
- 1,570万円
-
高知市潮見台1丁目
-
とさでん交通後免線長崎
-
-
-

-
- 中古一戸建て
- 3,000万円
-
西条市神拝甲
-
JR予讃線伊予西条
-
-
-

-
- 土地
- 80万円
-
室蘭市本輪西町5丁目
-
すずかけ団地
-
石川県新築一戸建て新着物件
- お近くの店舗を探す
-








担当エージェント:中川 駿
生活動線がしっかり考えられた間取りで、毎日の暮らしがもっと快適に(^^)/
周辺は静かで落ち着いた住宅街なので、日々の暮らしをゆったりと過ごせる新築戸建です!
住まい探しのご不安やご質問など、どうぞお気軽にご相談ください!