三養基郡上峰町 大字坊所 (中原駅 ) 平屋建
掲載情報更新日:2025年10月30日 次回更新予定日:2025年11月13日
- 1,948万円
-
- 借入ご希望金額
万円 - 借入期間
年 - 借入金利
% - 月々のお支払い金額
円
- 借入ご希望金額
※ 月々のお支払例は目安の試算となりますので、実際の金額とは異なる場合がございます。詳しくは店舗までお問合わせください。
- 三養基郡上峰町大字坊所
-
JR長崎本線『中原』 徒歩33分 (約2640m)
JR長崎本線『吉野ヶ里公園』 徒歩36分 (約2880m)
三養基郡上峰町 大字坊所 (中原駅 ) 平屋建 一戸建て | 物件情報
物件の設備
- 電気
- 上水道
- 下水道
- プロパンガス
- 浄水器
- コンロ三口
- カウンターキッチン
- システムキッチン
- オートバス
- 追焚機能
- 浴室乾燥機
- 温水洗浄便座
- 省エネ給湯器
- ディンプルキー
- モニタ付インターホン
- 火災警報器/報知機
- 複層ガラス
- 床下収納
- 全居室収納
物件の特徴
- 南側道路面す
- フラット35
- S適合証明書
- 即入居可
物件詳細情報
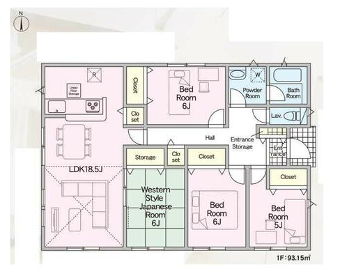
| 価格 | 1,948万円 | 間取り | 4LDK |
|---|---|---|---|
| 物件種別 | 新築一戸建て | ||
| 所在地 | 佐賀県三養基郡上峰町大字坊所 | ||
| アクセス |
|
||
| 建物面積 | 93.15㎡ | 駐車場 | あり |
| 築年月 | 2025年(令和7年)04月築 | 建築確認 | 第R07SHC100737号 |
| 建物構造 | 木造 1階建 | 工法 | |
| 主要採光 | バルコニー | ||
| 保証・評価 | フラット35適合証明書・フラット35S適合証明書 |
||
| 土地面積 | 公243.53㎡(73.66坪) | 接道 | 南側幅 約4.0m |
| 私道 | セットバック | ||
| 地目 | 宅地 | 地勢 | |
| 権利 | 所有権 |
||
| 都市計画 | 非線引区域 |
用途地域 | 指定無 |
| 建ぺい/容積率 | 60% / 200% | 土地国土法 | |
| 許可番号 | 建築基準法 | ||
| 法令制限 | |||
| 小学区 | 上峰小学校 徒歩29分 (約2291m) | 中学区 | 上峰中学校 徒歩22分 (約1746m) |
| 現況 | 完工済 | 引渡 | 即 |
| その他費用 | |||
| 周辺環境 | ファミリーマート 佐賀上峰店 徒歩8分 (約610m) ドラッグストアモリ 上峰店 徒歩9分 (約700m) セブンイレブン 神埼吉田店 徒歩15分 (約1130m) 上峰町立上峰中学校 徒歩22分 (約1710m) 上峰町役場 徒歩24分 (約1870m) ドラッグ&フレッシュトライアル 上峰店 徒歩30分 (約2370m) ローソン 上峰坊所店 徒歩30分 (約2370m) 上峰町立上峰小学校 徒歩29分 (約2250m) アルゾ 吉野ヶ里店 徒歩32分 (約2530m) |
||
| 備考 | |||
| 物件番号 | 4172786 | 取引態様 | 媒介 |
取扱店舗情報
| 電話番号 | 0952-20-7791 |
|---|---|
| 所在地 | 〒842-0031 佐賀県神埼郡吉野ヶ里町吉田272-12 |
| 営業時間 | 9:30~18:00 |
| 定休日 | 火・水曜日,年末年始等 |
| 宅建免許番号 | 佐賀県知事(1)第2688号 |
| アクセス | 店舗への地図はこちら |

来店ご予約
佐賀県三養基郡上峰町で価格が似ている物件はこちら
- 佐賀県
マイページ物件数 - 1,405件
最近見た物件
-
-

-
- 新築一戸建て
- 2,530万円
-
桑名市東正和台7丁目
-
三岐鉄道北勢線在良
-
-
-

-
- 新築一戸建て
- 2,998万円
-
熊本市東区昭和町
-
熊本市健軍線健軍町
-
-
-

-
- 新築一戸建て
- 2,798万円
-
熊本市東区若葉6丁目
-
熊本市健軍線健軍町
-
佐賀県新築一戸建て新着物件
-
-

-
- 新築一戸建て
- 3,049万円
-
佐賀市木原3丁目
-
矢加部医院前
-
-
-

-
- 新築一戸建て
- 2,999万円
-
佐賀市木原3丁目
-
矢加部医院前
-
-
-

-
- 新築一戸建て
- 2,580万円
-
神埼郡吉野ヶ里町立野
-
JR長崎本線吉野ヶ里公園駅
-
-
-

-
- 新築一戸建て
- 2,798万円
-
佐賀市大和町大字久池井
-
JR長崎本線佐賀駅
-
-
-

-
- 新築一戸建て
- 2,898万円
-
佐賀市大和町大字久池井
-
JR長崎本線佐賀駅
-
-
-

-
- 新築一戸建て
- 2,799.80万円
-
鳥栖市桜ケ丘町
-
JR長崎本線新鳥栖駅
-
-
-

-
- 新築一戸建て
- 2,399.80万円
-
神埼市神埼町永歌
-
JR長崎本線神埼駅
-
- お近くの店舗を探す
-
おすすめ物件
-
-

-
- 新築一戸建て
- 3,980万円
-
鳥栖市あさひ新町
-
JR鹿児島本線肥前旭
-
-
-

-
- 新築一戸建て
- 2,998万円
-
神埼市神埼町鶴
-
JR長崎本線神埼
-
-
-

-
- 新築一戸建て
- 2,199.80万円
-
神埼市神埼町鶴
-
JR長崎本線神埼
-
-
-

-
- 新築一戸建て
- 2,698万円
-
神埼郡吉野ヶ里町三津
-
JR長崎本線吉野ヶ里公園
-
-
-

-
- 新築一戸建て
- 2,899.80万円
-
佐賀市鬼丸町
-
JR長崎本線佐賀
-
-
-

-
- 新築一戸建て
- 2,798万円
-
神埼市神埼町鶴
-
JR長崎本線神埼
-
-
-

-
- 新築一戸建て
- 2,798万円
-
鳥栖市土井町
-
JR鹿児島本線鳥栖
-
-
-

-
- 新築一戸建て
- 2,898万円
-
神埼市神埼町鶴
-
JR長崎本線神埼
-
-
-

-
- 新築一戸建て
- 3,700万円
-
神埼市神埼町鶴
-
JR長崎本線神埼
-























