青森市浪館前田4丁目の新築戸建
掲載情報更新日:2025年10月20日 次回更新予定日:2025年11月03日
- 3,100万円
- 
                    - 借入ご希望金額
 万円
-  借入期間
 年
-  借入金利
 %
-  月々のお支払い金額
 円
 
- 借入ご希望金額
※ 月々のお支払例は目安の試算となりますので、実際の金額とは異なる場合がございます。詳しくは店舗までお問合わせください。
- 青森市浪館前田4丁目
- 
                    青い森鉄道『青森』 徒歩33分 (約2640m)
 市営バス『「西中学校入口」バス停』 徒歩3分 (約240m)
 
青森市浪館前田4丁目一戸建て | 物件情報
小・中学校まで徒歩10分圏内♪広々LDKと収納たっぷり3LDKの物件です!
             
        
            ◆小・中学校まで徒歩10分圏内♪通学やお出かけにも利便性が良い立地です。
◆広々LDKと各居室に収納があり快適に暮らせる間取り♪
◆駐車2台以上可能なゆったり駐車スペース。        
物件の設備
- 公営水道
- 下水道
- プロパンガス
- 浄水器
- 食器洗浄乾燥機
- IHクッキングヒータ
- システムキッチン
- バス1坪以上
- 追焚機能
- トイレ2箇所
- 温水洗浄便座
- 洗髪洗面化粧台
- 省エネ給湯器
- ディンプルキー
- モニタ付インターホン
- LDK18畳以上
- 複層ガラス
- 全室フローリング
- ウォークインクローゼット
- 全居室収納
- シューズインクローク
物件の特徴
- 高気密高断熱住宅
- 小学校徒歩10分以内
- スーパーが近い
- 閑静な住宅街
- 陽当り良好
- 2階建
- BELS/省エネ基準適合
- 即入居可
物件詳細情報
| 価格 | 3,100万円 | 間取り | 3LDK | 
|---|---|---|---|
| 物件種別 | 新築一戸建て | ||
| 所在地 | 青森県青森市浪館前田4丁目 | ||
| アクセス | 
 | ||
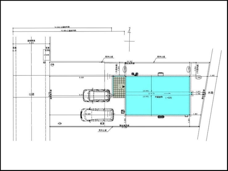
| 建物面積 | 公100.69㎡ | 駐車場 | あり 普通:2台 | 
| 築年月 | 2024年(令和6年)12月築 | 建築確認 | |
| 建物構造 | 木造 2階建 | 工法 | |
| 主要採光 | バルコニー | ||
| 保証・評価 | |||
| 土地面積 | 公200.55㎡(60.66坪) | 接道 | 西側(公道)幅 約5.2m 間口 約9.10m | 
| 私道 | セットバック | ||
| 地目 | 宅地 | 地勢 | |
| 権利 | 所有権 | ||
| 都市計画 | 市街化区域 | 用途地域 | 1種低層 | 
| 建ぺい/容積率 | 60% / 150% | 土地国土法 | |
| 許可番号 | 建築基準法 | ||
| 法令制限 | 景観地区 | ||
| 小学区 | 泉川小学校 徒歩9分 (約690m) | 中学区 | 西中学校 徒歩5分 (約390m) | 
| 現況 | 完工済 | 引渡 | 即 | 
| その他費用 | |||
| 周辺環境 | 青森市立泉川小学校 徒歩9分 (約690m) 青森市立西中学校 徒歩5分 (約390m) 若芽保育園 徒歩5分 (約370m) 青森駅 徒歩33分 (約2580m) 三戸内科胃腸科 徒歩6分 (約460m) ファミリーマート 青森浪館店 徒歩6分 (約450m) 青森県民生協 あやめ館 徒歩18分 (約1370m) ユニバース 大野店 徒歩21分 (約1630m) ハッピー・ドラッグ 青森西大野店 徒歩23分 (約1830m) | ||
| 備考 | ※法令等制限:景観地区 ※施工会社:タナカホーム株式会社 ※設備保証付 ※BELS/省エネ基準適合認定 | ||
| 物件番号 | 4177633 | 取引態様 | 媒介 | 
取扱店舗情報
ハウスドゥ 青森浪館 株式会社リノベアーズ 店舗詳細ページへ
| 電話番号 | 017-718-5449 | 
|---|---|
| 所在地 | 〒038-0024 青森県青森市浪館前田2丁目4-15 | 
| 営業時間 | 9:30~18:00 | 
| 定休日 | 火曜日、水曜日、GW、お盆、年末年始 | 
| 宅建免許番号 | 青森県知事(1)第3673号 | 
| アクセス | 店舗への地図はこちら | 

来店ご予約
青森県青森市で価格が似ている物件はこちら
- 青森県
 マイページ物件数
- 2,087件
最近見た物件
- 
                        - 
									                                     
- 
                                - 新築一戸建て
- 2,580万円
- 
                                        
                                            八戸市諏訪2丁目 
- 
                                        塩入バス停 
 
 
- 
									                                    
- 
                        - 
									                                     
- 
                                - 新築一戸建て
- 2,200万円
- 
                                        
                                            八戸市根城2丁目 
- 
                                        平中通バス停 
 
 
- 
									                                    
- 
                        - 
									                                     
- 
                                - 新築一戸建て
- 3,080万円
- 
                                        
                                            海部郡蟹江町桜3丁目 
- 
                                        JR関西本線蟹江 
 
 
- 
									                                    
青森県新築一戸建て新着物件
- お近くの店舗を探す
- 
            
            
            
おすすめ物件
- 
				- 
														 
- 
						- 新築一戸建て
- 1,645万円
- 
								
									青森市大字三内字沢部 
- 
								JR奥羽本線新青森 
 
 
- 
														
- 
				- 
														 
- 
						- 新築一戸建て
- 1,999万円
- 
								
									青森市本泉1丁目 
- 
								青い森鉄道矢田前 
 
 
- 
														
- 
				- 
														 
- 
						- 新築一戸建て
- 2,670万円
- 
								
									青森市桂木3丁目 
- 
								JR奥羽本線青森 
 
 
- 
														
- 
				- 
														 
- 
						- 新築一戸建て
- 2,790万円
- 
								
									青森市桂木3丁目 
- 
								JR奥羽本線青森 
 
 
- 
														
- 
				- 
														 
- 
						- 新築一戸建て
- 3,990万円
- 
								
									青森市勝田2丁目 
- 
								青い森鉄道筒井 
 
 
- 
														
- 
				- 
														 
- 
						- 新築一戸建て
- 2,198万円
- 
								
									青森市はまなす2丁目 
- 
								青い森鉄道小柳 
 
 
- 
														
- 
				- 
														 
- 
						- 新築一戸建て
- 2,200万円
- 
								
									八戸市根城2丁目 
- 
								市営バス平中通バス停 
 
 
- 
														
- 
				- 
														 
- 
						- 新築一戸建て
- 2,980万円
- 
								
									青森市桂木3丁目 
- 
								JR奥羽本線青森 
 
 
- 
														
- 
				- 
														 
- 
						- 新築一戸建て
- 2,090万円
- 
								
									八戸市多賀台4丁目 
- 
								青い森鉄道陸奥市川 
 
 
- 
														
- 
				- 
														 
- 
						- 新築一戸建て
- 1,595万円
- 
								
									青森市大字三内字沢部 
- 
								JR奥羽本線新青森 
 
 
- 
														
 
     
                         
                         
                         
                    







 
                
















 
                 
             
                    

 
                                     
                                            







 
						 
						
□■ハウスドゥ 青森浪館 (株)リノベアーズ■□
お客様一人ひとりに合ったプランをご提案させていただきます。
住宅ローンはもちろん、リフォームに関してもご相談承ります。
まずはお気軽にハウスドゥ 青森浪館へお問い合わせください!