新築戸建 三島市中田町 全6棟
掲載情報更新日:2026年03月03日 次回更新予定日:2026年03月17日
- 4,998万円
-
- 借入ご希望金額
万円 - 借入期間
年 - 借入金利
% - 月々のお支払い金額
円
- 借入ご希望金額
※ 月々のお支払例は目安の試算となりますので、実際の金額とは異なる場合がございます。詳しくは店舗までお問合わせください。
- 三島市中田町
-
伊豆箱根鉄道駿豆線『三島田町』 徒歩5分 (約400m)
JR東海道本線『三島』 車8分(約1.8km)
JR御殿場線『大岡』 車14分(約5.6km)
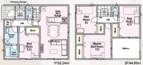
新築戸建 三島市中田町 全6棟一戸建て | 物件環境・地図
※表示されている地図は周辺環境を示すものであり、実際の物件所在地とは異なる場合がございます。
詳細は必ず店舗までお問い合わせください。
物件周辺環境
- 静岡県
マイページ物件数 - 2,734件
静岡県新築一戸建て新着物件
- お近くの店舗を探す
-














