新築戸建 葵区羽鳥五丁目 1号棟
掲載情報更新日:2026年05月22日 次回更新予定日:2026年06月05日
- 2,490万円
-
- 借入ご希望金額
万円 - 借入期間
年 - 借入金利
% - 月々のお支払い金額
円
- 借入ご希望金額
※ 月々のお支払例は目安の試算となりますので、実際の金額とは異なる場合がございます。詳しくは店舗までお問合わせください。
- 静岡市葵区羽鳥5丁目
-
JR東海道本線『静岡』 バス乗車18分 しずてつジャストライン 「羽鳥団地前」 停 徒歩4分 (約320m)
静岡鉄道静岡清水線『新静岡』 車17分(約5.2km)
新築戸建 葵区羽鳥五丁目 1号棟一戸建て | 物件情報
◎スーパー、コンビニ徒歩圏内 ◎小学校、中学校徒歩15分圏内 ◎閑静な住宅街
私たち「ハウスドゥ 東静岡」は、
静岡市葵区・駿河区エリアを中心に不動産情報を発信しています。
*「不動産購入って何から始めたらいいの?」
*「月々の支払いは、いくらくらいがベストなの?」
*「住宅ローンを組む銀行は、どこがいいの?」
*「高い買い物だから、失敗したくない」
*「不動産は、いつが買い時なの?」
など不動産を購入する際のお悩みや不安などを解決します!
是非ご相談ください!
また当日のご見学、ご内覧、ご相談も承ります!!
お気軽にお問合せ下さいませ!
営業時間:9:00~19:00(水曜日定休)
◇キッズスペース有◇
【ハウスドゥ 東静岡】
〒420-0813 静岡県静岡市葵区長沼三丁目1番36号
お問合わせ:0120-761-751
スタッフ一同お客様のご来店を心よりお待ちしております!
物件の設備
- 電気
- 公営水道
- 公共下水
- 都市ガス
- 給湯
- コンロ三口
- グリル
- カウンターキッチン
- システムキッチン
- バス
- バス1坪以上
- 浴室に窓
- トイレ
- トイレ2箇所
- 室内洗濯機置場
- 洗面所独立
- LDK18畳以上
- フローリング
- 全室フローリング
- クローゼット
- クローゼット2箇所
- 床下収納
- シューズボックス
- 2面バルコニー
物件の特徴
- 南側道路面す
- 2階建
- 整形地
物件詳細情報
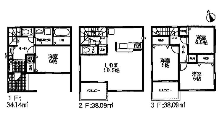
| 価格 | 2,490万円 | 間取り | 4LDK |
|---|---|---|---|
| 物件種別 | 新築一戸建て | ||
| 所在地 | 静岡県静岡市葵区羽鳥5丁目 1号棟 | ||
| アクセス |
|
||
| 建物面積 | 110.32㎡ | 駐車場 | あり 普通:2台 |
| 築年月 | 2025年(令和7年)12月築 | 建築確認 | 確認サービス第KS125-0420-50145号 |
| 建物構造 | 木造 2階建 | 工法 | |
| 主要採光 | バルコニー | ||
| 保証・評価 | |||
| 分譲情報 | |||
| 土地面積 | 92.58㎡(28坪) | 接道 | 南側(公道)幅 約4.0m 間口 約7.72m 北側幅 約2.4m |
| 私道 | セットバック | ||
| 地目 | 宅地 | 地勢 | |
| 権利 | 所有権 |
||
| 都市計画 | 市街化区域 |
用途地域 | 2種中高 |
| 建ぺい/容積率 | 60% / 200% | 土地国土法 | |
| 許可番号 | 建築基準法 | ||
| 法令制限 | |||
| 小学区 | 服織小学校 徒歩12分 (約900m) | 中学区 | 服織中学校 徒歩5分 (約350m) |
| 現況 | 完工済 | 引渡 | 相談 |
| その他費用 | |||
| 周辺環境 | ローソン静岡羽鳥五丁目店 徒歩3分 (約240m) マックスバリュエクスプレス静岡羽鳥店 徒歩5分 (約390m) クリエイトエス・ディー 静岡羽鳥店 徒歩6分 (約420m) カインズ 静岡羽鳥店 徒歩13分 (約1020m) 静岡市立服織小学校 徒歩11分 (約820m) 静岡市立服織中学校 徒歩6分 (約410m) 羽鳥公園 徒歩2分 (約160m) 静岡伊勢丹 徒歩53分 (約4220m) 静岡赤十字病院 徒歩54分 (約4300m) 静岡市葵区役所 徒歩56分 (約4480m) |
||
| 備考 | |||
| 物件番号 | 4207321 | 取引態様 | 媒介 |
取扱店舗情報
| 電話番号 | 054-204-2711 |
|---|---|
| 所在地 | 〒420-0813 静岡県静岡市葵区長沼3丁目1番36号 |
| 営業時間 | 9:00~18:00 |
| 定休日 | 水曜日、年末年始 |
| 宅建免許番号 | 国土交通大臣(1)第10568号 |
| アクセス | 店舗への地図はこちら |

来店ご予約
静岡県静岡市葵区で価格が似ている物件はこちら
- 静岡県
マイページ物件数 - 2,679件
最近見た物件
-
-

-
- 中古マンション
- 1,690万円
-
仙台市青葉区国見6丁目
-
JR仙山線東北福祉大前
-
-
-

-
- 収益
- 480万円
-
高崎市乗附町
-
JR高崎線高崎
-
-
-

-
- 土地
- 130万円
-
苫小牧市字勇払
-
JR日高本線勇払
-
静岡県新築一戸建て新着物件
-
-

-
- 新築一戸建て
- 2,690万円
-
沼津市本松下
-
JR東海道本線沼津駅
-
-
-

-
- 新築一戸建て
- 4,180万円
-
沼津市大岡
-
JR東海道本線沼津駅
-
-
-

-
- 新築一戸建て
- 2,980万円
-
静岡市清水区川原町
-
静岡鉄道静岡清水線桜橋駅
-
-
-

-
- 新築一戸建て
- 3,280万円
-
静岡市清水区川原町
-
静岡鉄道静岡清水線桜橋駅
-
-
-

-
- 新築一戸建て
- 4,990万円
-
静岡市駿河区登呂6丁目
-
JR東海道本線静岡駅
-
-
-

-
- 新築一戸建て
- 4,890万円
-
静岡市駿河区登呂6丁目
-
JR東海道本線静岡駅
-
-
-

-
- 新築一戸建て
- 4,590万円
-
静岡市駿河区登呂6丁目
-
JR東海道本線静岡駅
-
- お近くの店舗を探す
-

























・スーパー、コンビニ徒歩圏内でお買い物しやすい!
・小学校、中学校徒歩15分圏内で子育てしやすい!
・閑静な住宅街で生活しやすい!