大治町八ツ屋裏畑 全3棟 1号棟 新築一戸建て
掲載情報更新日:2025年10月24日 次回更新予定日:2025年11月07日
- 2,699万円
-
- 借入ご希望金額
万円 - 借入期間
年 - 借入金利
% - 月々のお支払い金額
円
- 借入ご希望金額
※ 月々のお支払例は目安の試算となりますので、実際の金額とは異なる場合がございます。詳しくは店舗までお問合わせください。
- 海部郡大治町大字八ツ屋字裏畑
-
名古屋市東山線『中村公園』 徒歩31分 (約2480m)
名鉄名古屋本線『新川橋』 徒歩41分 (約3280m)
市・名鉄バス『「大正橋西」停』 徒歩3分 (約240m)
大治町八ツ屋裏畑 全3棟 1号棟 新築一戸建て一戸建て | 物件情報
●○価格変更○●【全居室洋室◎5LDK!】全居室洋室なので、掃除などの家事の負担も軽減ができます♪
■全国店舗数NO.1。ハウスドゥ あま大治■
\あれこれ不動産サイトを見なくても当店で解決/
あま市・大治町エリア専門。取り扱い物件多数。
最新の情報をスピーディーにお届け。
ネットに掲載していない物件は店頭でご紹介いたします。
◆大治小学校/大治中学校
◆LDKを見渡せる対面キッチン
◆水回り動線良好な間取り
◆2面バルコニー
◆並列駐車2台可能(車種による)
※写真をクリックすると、詳細をご覧いただけます。
物件の設備
- 電気
- 上水道
- 公営水道
- 浄化槽
- 集中浄化槽
- 側溝
- 都市ガス
- 給湯
- カウンターキッチン
- システムキッチン
- 独立キッチン
- バス
- ユニットバス
- オートバス
- 追焚機能
- トイレ
- トイレ2箇所
- 温水洗浄便座
- 室内洗濯機置場
- 洗髪洗面化粧台
- 洗面所独立
- モニタ付インターホン
- 火災警報器/報知機
- LDK15畳以上
- 2面採光
- クローゼット
- ウォークインクローゼット
- ウォークインクローゼット2箇所
- 床下収納
- シューズボックス
- 2面バルコニー
- 両面バルコニー
- 2WAYバルコニー
物件の特徴
- 2階建
- 建設住宅性能評価付
物件詳細情報
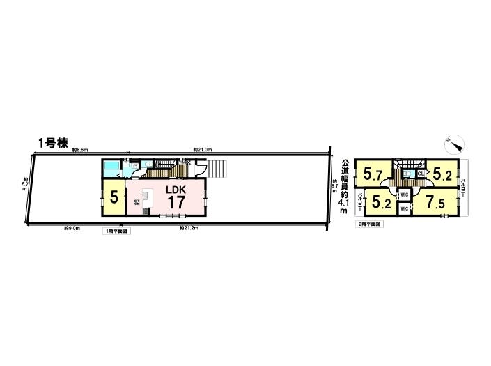
| 価格 | 2,699万円 | 間取り | 5LDK |
|---|---|---|---|
| 物件種別 | 新築一戸建て | ||
| 所在地 | 愛知県海部郡大治町大字八ツ屋字裏畑 1号棟 | ||
| アクセス |
|
||
| 建物面積 | 105.16㎡ | 駐車場 | あり 普通:2台 |
| 築年月 | 2025年(令和7年)11月予定 | 建築確認 | 第KS125-0410-53492号 |
| 建物構造 | 木造 アスファルトシングル葺 2階建 | 工法 | |
| 主要採光 | 南東向 | バルコニー | |
| 保証・評価 | 建設住宅性能評価書(新築時) |
||
| 分譲情報 | |||
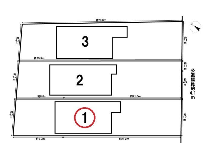
| 土地面積 | 実203.38㎡(61.52坪) | 接道 | 南東側(公道)幅 約4.1m 間口 約6.77m |
| 私道 | セットバック | ||
| 地目 | 宅地 | 地勢 | |
| 権利 | 所有権 |
||
| 都市計画 | 市街化区域 |
用途地域 | 1種住居 |
| 建ぺい/容積率 | 60% / 200% | 土地国土法 | |
| 許可番号 | 建築基準法 | ||
| 法令制限 | 法22条区域・日影規制4h-2.5h/10m・下水道処理区域外 | ||
| 小学区 | 大治小学校 徒歩21分 (約1630m) | 中学区 | 大治中学校 徒歩18分 (約1390m) |
| 現況 | 建築中 | 引渡 | 期日指定:2025年11月 |
| その他費用 | |||
| 周辺環境 | 大治小学校 徒歩21分 (約1630m) 大治中学校 徒歩18分 (約1390m) 大治東保育園 徒歩12分 (約940m) ずいよう幼稚園 徒歩15分 (約1150m) 東條中切ちびっこ広場 徒歩10分 (約760m) アオキスーパー大治店 徒歩17分 (約1310m) V・drug 大治店 徒歩16分 (約1220m) 寺西歯科医院 徒歩12分 (約940m) 大治郵便局 徒歩11分 (約880m) セブンイレブン大治町東條店 徒歩7分 (約550m) |
||
| 備考 | 大治東保育園 約940m ずいよう幼稚園 約1.2km(車約3分) 東條中切ちびっこ広場 約760m アオキスーパー大治店 約1.4km(車約4分) V・drug 大治店 約1.3km(車約4分) 寺西歯科医院 約940m 大治郵便局 約880m セブンイレブン大治町東條店 約550m | ||
| 物件番号 | 4214177 | 取引態様 | 媒介 |
取扱店舗情報
ハウスドゥ あま大治 ファミリアホームサービス株式会社 店舗詳細ページへ
| 電話番号 | 052-462-8039 |
|---|---|
| 所在地 | 〒490-1136 愛知県海部郡大治町大字花常字福島28番地1D |
| 営業時間 | 10:00~18:00 |
| 定休日 | 水曜日・年末年始(水曜日が祝日の場合は営業) |
| 宅建免許番号 | 国土交通大臣(2)第9218号 |
| アクセス | 店舗への地図はこちら |

来店ご予約
愛知県海部郡大治町で価格が似ている物件はこちら
- 愛知県
マイページ物件数 - 30,187件
最近見た物件
-
-

-
- 中古マンション
- 1,180万円
-
鹿児島市鴨池新町
-
市営バス/球技場前
-
愛知県新築一戸建て新着物件
-
-

-
- 新築一戸建て
- 3,830万円
-
豊橋市曙町字若松
-
豊橋鉄道渥美線南栄駅
-
-
-

-
- 新築一戸建て
- 2,880万円
-
弥富市荷之上町六十人
-
JR関西本線弥富駅
-
-
-

-
- 新築一戸建て
- 3,680万円
-
名古屋市中川区小碓通2丁目
-
名古屋臨海高速鉄道中島駅
-
-
-

-
- 新築一戸建て
- 4,880万円
-
豊田市四郷町下古屋
-
愛知環状鉄道四郷駅
-
-
-

-
- 新築一戸建て
- 4,680万円
-
豊田市四郷町下古屋
-
愛知環状鉄道四郷駅
-
-
-

-
- 新築一戸建て
- 4,390万円
-
豊田市四郷町下古屋
-
愛知環状鉄道四郷駅
-
-
-

-
- 新築一戸建て
- 4,990万円
-
名古屋市南区鶴里町2丁目
-
名古屋市桜通線鶴里駅
-
- お近くの店舗を探す
-
おすすめ物件
-
-

-
- 新築一戸建て
- 5,399万円
-
名古屋市瑞穂区神前町2丁目
-
名古屋市名城線新瑞橋
-
-
-

-
- 新築一戸建て
- 4,799万円
-
名古屋市南区赤坪町
-
名鉄名古屋本線本笠寺
-
-
-

-
- 新築一戸建て
- 2,580万円
-
愛西市諸桑町東浦
-
名鉄津島線藤浪
-
-
-

-
- 新築一戸建て
- 3,390万円
-
高浜市湯山町4丁目
-
名鉄三河線三河高浜
-
-
-

-
- 新築一戸建て
- 3,250万円
-
名古屋市中川区打出1丁目
-
名古屋市東山線高畑
-
-
-

-
- 新築一戸建て
- 2,890万円
-
あま市甚目寺郷中
-
名鉄津島線甚目寺
-
-
-

-
- 新築一戸建て
- 2,590万円
-
海部郡蟹江町西之森9丁目
-
JR関西本線永和
-
-
-

-
- 新築一戸建て
- 6,199万円
-
名古屋市昭和区元宮町6丁目
-
名古屋市鶴舞線川名
-
-
-

-
- 新築一戸建て
- 3,680万円
-
小牧市間々本町
-
名鉄小牧線小牧
-
-
-

-
- 新築一戸建て
- 3,880万円
-
清須市西枇杷島町小田井3丁目
-
名鉄犬山線中小田井
-














担当エージェント:西川 勝也
《あま市・大治町の物件のことならお任せ下さい!》
土地・中古・マンション・新築物件の情報多数ございます。リフォームや資金計画、住宅ローンについても丁寧にご説明いたします。お気軽にご相談ください。