新築戸建 一宮市第1貴船町 2号棟 全2棟
掲載情報更新日:2026年02月17日 次回更新予定日:2026年03月03日
- 3,299万円
-
- 借入ご希望金額
万円 - 借入期間
年 - 借入金利
% - 月々のお支払い金額
円
- 借入ご希望金額
※ 月々のお支払例は目安の試算となりますので、実際の金額とは異なる場合がございます。詳しくは店舗までお問合わせください。
- 一宮市貴船町4丁目
-
JR東海道本線『尾張一宮』 徒歩32分 (約2560m)
名鉄名古屋本線『名鉄一宮』 徒歩32分 (約2560m)
名鉄名古屋本線『名鉄一宮』 バス乗車11分 名鉄バス 中島通1丁目 停 徒歩7分 (約560m)
新築戸建 一宮市第1貴船町 2号棟 全2棟一戸建て | 物件情報
ご見学のご予約はハウスドゥ一宮中央へ!◆今から見たい◆いろんな物件を見たい◆ご対応いたします♪
※マウスを乗せると画像が切り替わります。
◆ハウスドゥ一宮中央◆
●新築住宅・中古住宅・中古マンション・土地や事業用に関すること 何でもご相談ください!
●いろんな不動産屋さんを回らなくても大丈夫!!
当店は地域密着で一宮市内はもちろんのこと、その他地域の物件もまとめてご紹介できます!
掲載されていない物件もご案内可能です!ぜひご相談くださいね♪
●専門スタッフによる資金計画のご相談承っております!
マイホームが欲しい!!でも何から始めたらいいかわからない。お話しをしっかり伺い、お客様にあったご提案をさせていただきます。資金計画、住宅ローンやお金のご不安のある方もお任せください。
●不動産の売却・査定・買取もご相談ください
見るだけOK!聞くだけOK!お気軽にお問合せくださいね♪
物件の設備
- 電気
- 公営水道
- 公共下水
- 都市ガス
- システムキッチン
- 浴室暖房
- 浴室乾燥機
- モニタ付インターホン
- 複層ガラス
物件の特徴
- 2階建
物件詳細情報
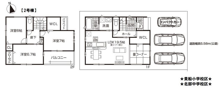
| 価格 | 3,299万円 | 間取り | 4LDK+S |
|---|---|---|---|
| 物件種別 | 新築一戸建て | ||
| 所在地 | 愛知県一宮市貴船町4丁目 2号棟 | ||
| アクセス |
|
||
| 建物面積 | 公96.8㎡ | 駐車場 | あり 普通:2台 軽:1台 |
| 築年月 | 2025年(令和7年)09月築 | 建築確認 | 第R06確認建築愛建住セ25799号 |
| 建物構造 | 木造 2階建 | 工法 | |
| 主要採光 | バルコニー | ||
| 保証・評価 | |||
| 分譲情報 | |||
| 土地面積 | 公108.59㎡(32.84坪) | 接道 | 東側(公道)幅 約5.5m |
| 私道 | セットバック | ||
| 地目 | 田 | 地勢 | |
| 権利 | 所有権 |
||
| 都市計画 | 市街化区域 |
用途地域 | 準工業 |
| 建ぺい/容積率 | 60% / 200% | 土地国土法 | |
| 許可番号 | 建築基準法 | ||
| 法令制限 | |||
| 小学区 | 貴船小学校 徒歩8分 (約610m) | 中学区 | 北部中学校 徒歩9分 (約720m) |
| 現況 | 完工済 | 引渡 | 期日指定:2025年09月以降 |
| その他費用 | |||
| 周辺環境 | 貴船小学校 徒歩8分 (約610m) 北部中学校 徒歩9分 (約720m) 貴船保育園 徒歩7分 (約530m) Vドラック一宮北店 徒歩3分 (約200m) セブンイレブン一宮貴船3丁目店 徒歩4分 (約320m) ドラックスギヤマ松降通店 徒歩5分 (約390m) 一宮市民病院 徒歩13分 (約1040m) テラスウォーク一宮 徒歩13分 (約970m) 尾張一宮駅 徒歩28分 (約2240m) |
||
| 備考 | ・貴船小学校まで徒歩8分(約610m) ・北部中学校まで徒歩9分(約720m) ・貴船保育園まで徒歩7分(約530m) ・Vドラック一宮北店まで徒歩3分(約200m) ・セブンイレブン一宮貴船3丁目店まで徒歩4分(約320m) ・ドラックスギヤマ松降通店まで徒歩5分(約390m) ・一宮市民病院まで徒歩13分(約1040m) ・テラスウォーク一宮まで徒歩13分(約970m) ・尾張一宮駅まで徒歩28分(約2240m) |
||
| 物件番号 | 4217743 | 取引態様 | 媒介 |
取扱店舗情報
ハウスドゥ 一宮中央 株式会社城西ホームテック 店舗詳細ページへ
| 電話番号 | 0586-24-1703 |
|---|---|
| 所在地 | 〒491-0024 愛知県一宮市富士2丁目14-4 |
| 営業時間 | 9:30~18:00 |
| 定休日 | 水曜日、年末年始、夏季休暇 |
| 宅建免許番号 | 愛知県知事(2)第23489号 |
| アクセス | 店舗への地図はこちら |

来店ご予約
愛知県一宮市で価格が似ている物件はこちら
![]()
![]()
-
- 新築一戸建て 2024.01.06
-
-
- 3,380万円
-
一宮市小信中島字南平口
-
名鉄尾西線「奥町駅」まで徒歩25分
- 5LDK
-
-
- 新築一戸建て 2025.03.02
-
-
- 3,299万円
-
一宮市貴船町4丁目
-
JR東海道本線「尾張一宮駅」まで徒歩28分
- 4LDK
-
-
- 新築一戸建て 2025.03.31
-
-
- 3,299万円
-
一宮市貴船町4丁目
-
JR東海道本線「尾張一宮駅」まで徒歩32分
- 3LDK
-
-
- 新築一戸建て 2025.04.03
-
-
- 3,299万円
-
一宮市貴船町4丁目
-
JR東海道本線「尾張一宮駅」まで徒歩28分
- 3LDK
-
-
- 新築一戸建て 2025.07.22
-
-
- 3,380万円
-
一宮市時之島字堂山
-
名鉄犬山線「江南駅」バス乗車12分 バス停「子供の家ともいき前」まで徒歩7分
- 4LDK
-
-
- 新築一戸建て 2025.09.27
-
-
- 3,290万円
-
一宮市伝法寺7丁目
-
JR東海道本線「稲沢駅」まで徒歩23分
- 4LDK
-
-
- 新築一戸建て 2025.09.27
-
-
- 3,230万円
-
一宮市伝法寺7丁目
-
JR東海道本線「稲沢駅」まで徒歩23分
- 4LDK
-
-
- 新築一戸建て 2025.10.06
-
-
- 3,280万円
-
一宮市今伊勢町本神戸字筋替
-
名鉄名古屋本線「今伊勢駅」まで徒歩20分
- 4LDK
-
-
- 新築一戸建て 2025.10.07
-
-
- 3,280万円
-
一宮市今伊勢町本神戸字筋替
-
名鉄名古屋本線「今伊勢駅」まで徒歩16分
- 4LDK
-
-
- 新築一戸建て 2025.10.07
-
-
- 3,230万円
-
一宮市伝法寺7丁目
-
JR東海道本線「稲沢駅」まで徒歩32分
- 4LDK
-
-
- 新築一戸建て 2025.10.14
-
-
- 3,280万円
-
一宮市今伊勢町本神戸字筋替
-
名鉄名古屋本線「今伊勢駅」まで徒歩16分
- 4LDK
-
-
- 新築一戸建て 2025.11.06
-
-
- 3,280万円
-
一宮市今伊勢町本神戸字筋替
-
名鉄名古屋本線「今伊勢駅」まで徒歩16分
- 4LDK
-
-
- 新築一戸建て 2025.11.14
-
-
- 3,380万円
-
一宮市時之島字堂山
-
名鉄犬山線「江南駅」バス乗車12分 バス停「子供の家ともいき前」まで徒歩7分
- 4LDK
-
-
- 新築一戸建て 2025.11.14
-
-
- 3,299万円
-
一宮市貴船町4丁目
-
JR東海道本線「尾張一宮駅」まで徒歩32分
- 3LDK
-
-
- 新築一戸建て 2025.11.17
-
-
- 3,280万円
-
一宮市今伊勢町本神戸字筋替
-
名鉄名古屋本線「今伊勢駅」まで徒歩20分
- 4LDK
-
-
- 新築一戸建て 2025.11.17
-
-
- 3,290万円
-
一宮市伝法寺7丁目
-
JR東海道本線「稲沢駅」まで徒歩23分
- 4LDK
-
-
- 新築一戸建て 2025.11.17
-
-
- 3,230万円
-
一宮市伝法寺7丁目
-
JR東海道本線「稲沢駅」まで徒歩23分
- 4LDK
-
-
- 新築一戸建て 2025.11.25
-
-
- 3,280万円
-
一宮市北丹町
-
名鉄名古屋本線「今伊勢駅」まで徒歩19分
- 4LDK
-
-
- 新築一戸建て 2025.11.25
-
-
- 3,380万円
-
一宮市北丹町
-
名鉄名古屋本線「今伊勢駅」まで徒歩19分
- 5LDK
-
-
- 新築一戸建て 2025.11.25
-
-
- 3,330万円
-
一宮市北丹町
-
名鉄名古屋本線「今伊勢駅」まで徒歩19分
- 3LDK
-
-
- 新築一戸建て 2025.11.28
-
-
- 3,280万円
-
一宮市北丹町
-
名鉄名古屋本線「今伊勢駅」まで徒歩19分
- 3LDK
-
-
- 新築一戸建て 2025.11.28
-
-
- 3,330万円
-
一宮市北丹町
-
名鉄名古屋本線「今伊勢駅」まで徒歩19分
- 3LDK
-
-
- 新築一戸建て 2025.12.01
-
-
- 3,280万円
-
一宮市北丹町
-
名鉄名古屋本線「今伊勢駅」まで徒歩17分
- 3LDK
-
-
- 新築一戸建て 2025.12.01
-
-
- 3,380万円
-
一宮市北丹町
-
名鉄名古屋本線「今伊勢駅」まで徒歩17分
- 5LDK
-
-
- 新築一戸建て 2025.12.01
-
-
- 3,330万円
-
一宮市北丹町
-
名鉄名古屋本線「今伊勢駅」まで徒歩17分
- 3LDK
-
-
- 新築一戸建て 2025.12.01
-
-
- 3,280万円
-
一宮市北丹町
-
名鉄名古屋本線「今伊勢駅」まで徒歩17分
- 3LDK
-
-
- 新築一戸建て 2025.12.01
-
-
- 3,380万円
-
一宮市北丹町
-
名鉄名古屋本線「今伊勢駅」まで徒歩17分
- 5LDK
-
-
- 新築一戸建て 2025.12.01
-
-
- 3,330万円
-
一宮市北丹町
-
名鉄名古屋本線「今伊勢駅」まで徒歩17分
- 3LDK
-
-
- 新築一戸建て 2025.12.02
-
-
- 3,280万円
-
一宮市北丹町
-
名鉄名古屋本線「今伊勢駅」まで徒歩17分
- 3LDK
-
-
- 新築一戸建て 2025.12.02
-
-
- 3,380万円
-
一宮市北丹町
-
名鉄名古屋本線「今伊勢駅」まで徒歩17分
- 5LDK
-
-
- 新築一戸建て 2025.12.02
-
-
- 3,330万円
-
一宮市北丹町
-
名鉄名古屋本線「今伊勢駅」まで徒歩17分
- 3LDK
-
-
- 新築一戸建て 2025.12.09
-
-
- 3,390万円
-
一宮市大和町妙興寺字八町
-
名鉄名古屋本線「妙興寺駅」まで徒歩19分
- 4LDK
-
-
- 新築一戸建て 2025.12.09
-
-
- 3,390万円
-
一宮市大和町妙興寺字八町
-
名鉄名古屋本線「妙興寺駅」まで徒歩19分
- 3LDK
-
-
- 新築一戸建て 2025.12.13
-
-
- 3,290万円
-
一宮市伝法寺7丁目
-
JR東海道本線「稲沢駅」まで車9分
- 4LDK
-
-
- 新築一戸建て 2025.12.13
-
-
- 3,230万円
-
一宮市伝法寺7丁目
-
JR東海道本線「稲沢駅」まで車9分
- 4LDK
-
-
- 新築一戸建て 2026.01.09
-
-
- 3,290万円
-
一宮市伝法寺7丁目
-
JR東海道本線「稲沢駅」まで徒歩32分
- 4LDK
-
-
- 新築一戸建て 2026.01.09
-
-
- 3,230万円
-
一宮市伝法寺7丁目
-
JR東海道本線「稲沢駅」まで徒歩32分
- 4LDK
-
-
- 新築一戸建て 2026.01.13
-
-
- 3,290万円
-
一宮市三ツ井5丁目
-
名鉄犬山線「大山寺駅」まで車11分
- 4LDK
-
-
- 新築一戸建て 2026.01.13
-
-
- 3,390万円
-
一宮市三ツ井5丁目
-
名鉄犬山線「大山寺駅」まで車11分
- 4LDK
-
-
- 新築一戸建て 2026.01.23
-
-
- 3,290万円
-
一宮市伝法寺6丁目
-
JR東海道本線「稲沢駅」まで徒歩32分
- 4LDK
-
-
- 新築一戸建て 2026.01.23
-
-
- 3,290万円
-
一宮市伝法寺6丁目
-
JR東海道本線「稲沢駅」まで徒歩23分
- 4LDK
-
-
- 新築一戸建て 2026.01.23
-
-
- 3,290万円
-
一宮市伝法寺6丁目
-
JR東海道本線「稲沢駅」まで徒歩23分
- 4LDK
-
-
-
新築一戸建て
2026.01.27
-
-
- 3,280万円
-
一宮市定水寺字山ケ作
-
JR東海道本線「尾張一宮駅」バス乗車21分 バス停「i-バス定水寺」まで徒歩5分
- 3LDK
-
-
新築一戸建て
2026.01.27
-
-
新築一戸建て
2026.01.27
-
-
- 3,280万円
-
一宮市定水寺字山ケ作
-
JR東海道本線「尾張一宮駅」バス乗車21分 バス停「i-バス定水寺」まで徒歩5分
- 3LDK
-
-
新築一戸建て
2026.01.27
-
-
新築一戸建て
2026.01.27
-
-
- 3,290万円
-
一宮市伝法寺6丁目
-
JR東海道本線「稲沢駅」まで車10分
- 4LDK
-
-
新築一戸建て
2026.01.27
-
-
新築一戸建て
2026.01.29
-
-
- 3,390万円
-
一宮市大和町妙興寺字八町
-
名鉄名古屋本線「妙興寺駅」まで徒歩19分
- 4LDK
-
-
新築一戸建て
2026.01.29
-
-
新築一戸建て
2026.01.29
-
-
- 3,390万円
-
一宮市大和町妙興寺字八町
-
名鉄名古屋本線「妙興寺駅」まで徒歩19分
- 3LDK
-
-
新築一戸建て
2026.01.29
-
-
新築一戸建て
2026.01.29
-
-
- 3,390万円
-
一宮市大和町妙興寺字八町
-
名鉄名古屋本線「妙興寺駅」まで徒歩19分
- 4LDK
-
-
新築一戸建て
2026.01.29
-
-
新築一戸建て
2026.01.29
-
-
- 3,390万円
-
一宮市大和町妙興寺字八町
-
名鉄名古屋本線「妙興寺駅」まで徒歩19分
- 3LDK
-
-
新築一戸建て
2026.01.29
-
-
新築一戸建て
2026.02.05
-
-
- 3,290万円
-
一宮市三ツ井5丁目
-
JR東海道本線「稲沢駅」まで徒歩45分
- 4LDK
-
-
新築一戸建て
2026.02.05
-
-
新築一戸建て
2026.02.05
-
-
- 3,390万円
-
一宮市三ツ井5丁目
-
JR東海道本線「稲沢駅」まで徒歩45分
- 4LDK
-
-
新築一戸建て
2026.02.05
-
-
新築一戸建て
2026.02.05
-
-
- 3,390万円
-
一宮市三条字小辰己
-
名鉄尾西線「開明駅」まで徒歩37分
- 3LDK+S
-
-
新築一戸建て
2026.02.05
-
-
新築一戸建て
2026.02.05
-
-
- 3,380万円
-
一宮市時之島字堂山
-
名鉄犬山線「布袋駅」まで車10分
- 3LDK
-
-
新築一戸建て
2026.02.05
-
-
新築一戸建て
2026.02.06
-
-
- 3,390万円
-
一宮市三条字小辰己
-
名鉄尾西線「奥町駅」まで車7分
- 3LDK+S
-
-
新築一戸建て
2026.02.06
-
-
新築一戸建て
2026.02.07
-
-
- 3,390万円
-
一宮市三条字小辰己
-
名鉄尾西線「開明駅」まで徒歩37分
- 3LDK+S
-
-
新築一戸建て
2026.02.07
-
-
新築一戸建て
2026.02.07
-
-
- 3,390万円
-
一宮市三条字小辰己
-
名鉄尾西線「開明駅」まで徒歩37分
- 3LDK+S
-
-
新築一戸建て
2026.02.07
-
-
新築一戸建て
2026.02.09
-
-
- 3,380万円
-
一宮市時之島字堂山
-
名鉄犬山線「江南駅」バス乗車11分 バス停「名鉄バスこどもの家ともいき前」まで徒歩7分
- 3LDK
-
-
新築一戸建て
2026.02.09
-
-
新築一戸建て
2026.02.09
-
-
- 3,290万円
-
一宮市三ツ井5丁目
-
JR東海道本線「尾張一宮駅」バス乗車23分 バス停「名鉄バス東三ツ井」まで徒歩4分
- 4LDK
-
-
新築一戸建て
2026.02.09
-
-
新築一戸建て
2026.02.09
-
-
- 3,390万円
-
一宮市三ツ井5丁目
-
JR東海道本線「尾張一宮駅」バス乗車23分 バス停「名鉄バス東三ツ井」まで徒歩4分
- 4LDK
-
-
新築一戸建て
2026.02.09
-
-
新築一戸建て
2026.02.13
-
-
- 3,380万円
-
一宮市時之島字堂山
-
名鉄犬山線「布袋駅」まで徒歩38分
- 3LDK
-
-
新築一戸建て
2026.02.13
- 愛知県
マイページ物件数 - 32,064件
最近見た物件
-
-

-
- 新築一戸建て
- 4,790万円
-
福岡市西区今宿東3丁目
-
JR筑肥線今宿
-
愛知県新築一戸建て新着物件
-
-

-
- 新築一戸建て
- 3,680万円
-
名古屋市中村区横井2丁目
-
近鉄名古屋線伏屋駅
-
-
-

-
- 新築一戸建て
- 3,680万円
-
名古屋市中村区横井2丁目
-
近鉄名古屋線伏屋駅
-
-
-

-
- 新築一戸建て
- 2,790万円
-
一宮市浅井町河端字流
-
名鉄名古屋本線名鉄一宮駅
-
-
-

-
- 新築一戸建て
- 2,680万円
-
愛西市佐屋町宅地
-
名鉄尾西線佐屋駅
-
-
-

-
- 新築一戸建て
- 3,680万円
-
名古屋市中村区横井2丁目
-
名古屋市東山線八田駅
-
-
-

-
- 新築一戸建て
- 2,890万円
-
愛西市佐屋町宅地
-
名鉄尾西線佐屋駅
-
-
-

-
- 新築一戸建て
- 3,680万円
-
名古屋市中村区横井2丁目
-
名古屋市東山線八田駅
-
- お近くの店舗を探す
-
おすすめ物件
-
-

-
- 新築一戸建て
- 3,499万円
-
一宮市木曽川町黒田字川北
-
名鉄名古屋本線新木曽川
-
-
-

-
- 新築一戸建て
- 6,499万円
-
名古屋市千種区城木町3丁目
-
名古屋市桜通線吹上
-
-
-

-
- 新築一戸建て
- 2,380万円
-
一宮市北方町北方字狐塚郷
-
JR東海道本線木曽川
-
-
-

-
- 新築一戸建て
- 3,499万円
-
海部郡蟹江町学戸6丁目
-
近鉄名古屋線近鉄蟹江
-
-
-

-
- 新築一戸建て
- 2,190万円
-
あま市下萱津山伏
-
名鉄津島線甚目寺
-
-
-

-
- 新築一戸建て
- 2,890万円
-
小牧市大字東田中
-
名鉄小牧線小牧原
-
-
-

-
- 新築一戸建て
- 2,690万円
-
名古屋市港区東茶屋1丁目
-
名古屋臨海高速鉄道港北
-
-
-

-
- 新築一戸建て
- 3,490万円
-
西尾市住吉町6丁目
-
名鉄西尾線西尾
-
-
-

-
- 新築一戸建て
- 3,199万円
-
清須市西須ケ口
-
名鉄名古屋本線須ヶ口
-
-
-

-
- 新築一戸建て
- 5,299万円
-
名古屋市瑞穂区萩山町2丁目
-
名古屋市名城線瑞穂運動場東
-





















担当エージェント:野田
お客様のお話しをしっかり伺い、お客様にあったお家をご提案させていただきます。資金計画、住宅ローンにご不安のあるお客様、お任せください。お金の不安を解消する事で安心してお家探しが出来ます。あなたの「マイホームの夢」教えてください!