川崎市多摩区菅6丁目の新築戸建
掲載情報更新日:2025年09月26日 次回更新予定日:2025年10月10日
- 4,380万円
-
- 借入ご希望金額
万円 - 借入期間
年 - 借入金利
% - 月々のお支払い金額
円
- 借入ご希望金額
※ 月々のお支払例は目安の試算となりますので、実際の金額とは異なる場合がございます。詳しくは店舗までお問合わせください。
- 川崎市多摩区菅6丁目
-
JR南武線『矢野口』 徒歩8分 (約640m)
川崎市多摩区菅6丁目一戸建て | 物件情報
物件の設備
- 公営水道
- 公共下水
- 都市ガス
- 浄水器
- システムキッチン
- バス1坪以上
- トイレ2箇所
- 室内洗濯機置場
- 洗髪洗面化粧台
- 洗面所独立
- モニタ付インターホン
- LDK15畳以上
- 24時間換気システム
- クローゼット
- ウォークインクローゼット2箇所
物件の特徴
- 3階建以上
物件詳細情報
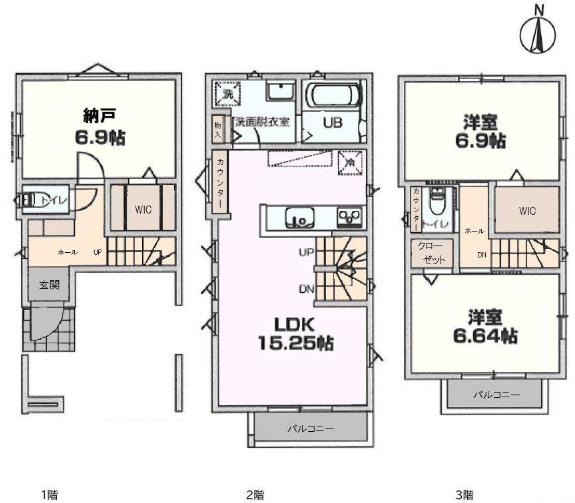
価格 | 4,380万円 | 間取り | 2LDK+S |
---|---|---|---|
物件種別 | 新築一戸建て | ||
所在地 | 神奈川県川崎市多摩区菅6丁目1539番3号 | ||
アクセス |
|
||
建物面積 | 102.2㎡ | 駐車場 | あり 普通:1台 |
築年月 | 2025年(令和7年)07月予定 | 建築確認 | 第KBI-TKN25-10-0171号 |
建物構造 | 木造 3階建 | 工法 | |
主要採光 | バルコニー | ||
保証・評価 | |||
土地面積 | 57.51㎡(17.39坪) | 接道 | |
私道 | セットバック | ||
地目 | 宅地 | 地勢 | |
権利 | 所有権 |
||
都市計画 | 市街化区域 |
用途地域 | 1種中高 |
建ぺい/容積率 | 60% / 200% | 土地国土法 | |
許可番号 | 建築基準法 | ||
法令制限 | |||
小学区 | 中学区 | ||
現況 | 未着工 | 引渡 | 期日指定:2025年07月末以降 |
その他費用 | |||
周辺環境 | 川崎市立菅中学校 徒歩10分 (約790m) セブンイレブン 川崎菅野戸呂店 徒歩9分 (約670m) ユーコープ 菅店 徒歩8分 (約610m) 多摩区役所菅行政サービスコーナー 徒歩12分 (約950m) |
||
備考 | |||
物件番号 | 4219279 | 取引態様 | 媒介 |
取扱店舗情報
ハウスドゥ 向ヶ丘遊園 株式会社パワーラッシュ 店舗詳細ページへ
電話番号 | 044-299-8081 |
---|---|
所在地 | 〒214-0014 神奈川県川崎市多摩区登戸2777-2 N100ビル201号室 |
営業時間 | 9:00~18:00 |
定休日 | 水曜日、年末年始 |
宅建免許番号 | 神奈川県知事(1)第32601号 |
アクセス | 店舗への地図はこちら |
来店ご予約
神奈川県川崎市多摩区で価格が似ている物件はこちら
- 神奈川県
マイページ物件数 - 3,241件
最近見た物件
-
-
-
- 新築一戸建て
- 3,177万円
-
うるま市字前原
-
ジャスコ具志川入口
-
-
-
-
- 新築一戸建て
- 4,280万円
-
川崎市多摩区菅馬場1丁目
-
JR南武線稲田堤
-
-
-
-
- 新築一戸建て
- 2,890万円
-
富山市呉羽町
-
あいの風とやま鉄道呉羽
-
神奈川県新築一戸建て新着物件
-
-
-
- 新築一戸建て
- 5,780万円
-
川崎市多摩区栗谷1丁目
-
小田急小田原線読売ランド前駅
-
-
-
-
- 新築一戸建て
- 4,980万円
-
川崎市多摩区南生田1丁目
-
小田急小田原線読売ランド前駅
-
-
-
-
- 新築一戸建て
- 3,180万円
-
厚木市山際
-
小田急小田原線本厚木駅
-
-
-
-
- 新築一戸建て
- 3,380万円
-
厚木市山際
-
小田急小田原線本厚木駅
-
-
-
-
- 新築一戸建て
- 4,480万円
-
相模原市中央区相生1丁目
-
JR横浜線淵野辺駅
-
-
-
-
- 新築一戸建て
- 2,780万円
-
足柄上郡開成町中之名
-
小田急小田原線開成駅
-
-
-
-
- 新築一戸建て
- 3,280万円
-
平塚市出縄
-
JR東海道本線平塚駅
-
- お近くの店舗を探す
-