木更津市清見台2丁目 新築戸建
掲載情報更新日:2025年12月18日 次回更新予定日:2026年01月01日
- 3,380万円
-
- 借入ご希望金額
万円 - 借入期間
年 - 借入金利
% - 月々のお支払い金額
円
- 借入ご希望金額
※ 月々のお支払例は目安の試算となりますので、実際の金額とは異なる場合がございます。詳しくは店舗までお問合わせください。
- 木更津市清見台2丁目
-
JR内房線『木更津』 徒歩27分 (約2160m)
JR久留里線『祇園』 徒歩18分 (約1440m)
木更津市清見台2丁目 新築戸建一戸建て | 物件情報
開放的な角地☆設備機能充実の4LDK新築戸建♪ 最終1棟分譲中♪
☆新築ご購入でプレゼント実施中☆
◎地震に強いおうち☆部屋数収納たっぷり4LDK+駐車場並列2台分♪
◎電動シャッター、食器洗浄乾燥機、浴室暖房乾燥機など、標準装備の設備機能が充実♪
◎宅配ボックス、モニター付きインターフォン完備♪
◎S.I.C、W.I.C、リビング収納、階段下収納など多彩なストレージ♪
◎広い洗面脱衣室にリネン収納♪
◎国道16号線、木更津駅へのアクセス良好☆徒歩圏に商業施設が充実の生活便利地♪
◎小、中学校も近く通学安心☆子育て世代におススメの住環境♪
◎ご購入までの流れ、各種費用詳細、ご活用いただける制度までしっかりとご説明いたします♪
物件の設備
- 電気
- 上水道
- 公営水道
- 下水道
- 公共下水
- 都市ガス
- 食器洗浄乾燥機
- コンロ三口
- グリル
- カウンターキッチン
- システムキッチン
- オープンキッチン
- バス
- ユニットバス
- バス1坪以上
- 追焚機能
- 浴室暖房
- 浴室乾燥機
- 浴室に窓
- トイレ
- トイレ2箇所
- 温水洗浄便座
- 室内洗濯機置場
- 洗髪洗面化粧台
- ダウンライト
- ディンプルキー
- ダブルロックキー
- モニタ付インターホン
- 火災警報器/報知機
- LDK18畳以上
- 全室2面採光
- 複層ガラス
- 全居室複層ガラス
- フローリング
- 全室フローリング
- シャッター雨戸
- 電動シャッター
- 24時間換気システム
- クローゼット
- ウォークインクローゼット
- 床下収納
- 全居室収納
- シューズボックス
- シューズインクローク
- バルコニー
- 宅配BOX
物件の特徴
- 南向
- 地盤調査済
- 免震構造
- 前道6m以上
- 南側道路面す
- スーパーが近い
- 通風良好
- 陽当り良好
- 2階建
- 角地
- 外壁サイディング
- バリアフリー
- 即入居可
物件詳細情報
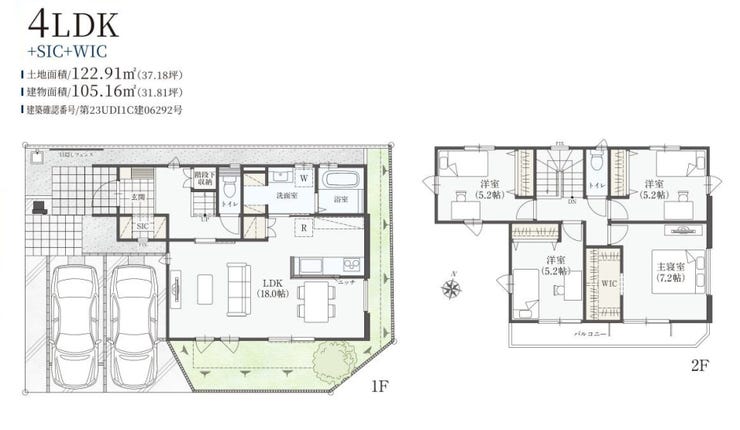
| 価格 | 3,380万円 | 間取り | 4LDK |
|---|---|---|---|
| 物件種別 | 新築一戸建て | ||
| 所在地 | 千葉県木更津市清見台2丁目 2号棟 | ||
| アクセス |
|
||
| 建物面積 | 公105.16㎡ | 駐車場 | あり 普通:2台 |
| 築年月 | 2024年(令和6年)06月築 | 建築確認 | |
| 建物構造 | 木造 2階建 | 工法 | |
| 主要採光 | 南向 | バルコニー | |
| 保証・評価 | |||
| 土地面積 | 公122.91㎡(37.18坪) | 接道 | 南側(公道)幅 約6.0m |
| 私道 | セットバック | ||
| 地目 | 宅地 | 地勢 | |
| 権利 | 所有権 |
||
| 都市計画 | 市街化区域 |
用途地域 | 準住居 |
| 建ぺい/容積率 | 70% / 200% | 土地国土法 | |
| 許可番号 | 建築基準法 | ||
| 法令制限 | 高度地区・景観法・法22条区域 | ||
| 小学区 | 清見台小学校 徒歩12分 (約960m) | 中学区 | 太田中学校 徒歩13分 (約1000m) |
| 現況 | 完工済 | 引渡 | 即 |
| その他費用 | |||
| 周辺環境 | 木更津市立清見台小学校 徒歩10分 (約780m) 木更津市立太田中学校 徒歩12分 (約890m) 酒&業務スーパー木更津店 徒歩9分 (約700m) ヤックスドラッグ木更津清見台店 徒歩8分 (約580m) TSUTAYA木更津店 徒歩3分 (約230m) ダイソー 木更津太田店 徒歩7分 (約530m) VERY FOODS owariya 木更津店 徒歩12分 (約960m) セブンイレブン木更津清見台2丁目店 徒歩6分 (約480m) 太田山公園 徒歩7分 (約500m) |
||
| 備考 | |||
| 物件番号 | 4236482 | 取引態様 | 媒介 |
取扱店舗情報
ハウスドゥ 木更津北 有限会社グリーンエース 店舗詳細ページへ
| 電話番号 | 0438-97-5036 |
|---|---|
| 所在地 | 〒292-0052 千葉県木更津市祇園485-1 |
| 営業時間 | 10:00~18:30 |
| 定休日 | 水曜日、年末年始、火曜不定休 |
| 宅建免許番号 | 千葉県知事(2)第17071号 |
| アクセス | 店舗への地図はこちら |

来店ご予約
千葉県木更津市で価格が似ている物件はこちら
- 千葉県
マイページ物件数 - 2,845件
千葉県新築一戸建て新着物件
-
-

-
- 新築一戸建て
- 3,999万円
-
佐倉市井野
-
京成本線志津駅
-
-
-

-
- 新築一戸建て
- 4,780万円
-
船橋市馬込西2丁目
-
東武野田線馬込沢駅
-
-
-

-
- 新築一戸建て
- 4,580万円
-
船橋市馬込西2丁目
-
東武野田線馬込沢駅
-
-
-

-
- 新築一戸建て
- 6,499万円
-
松戸市新松戸7丁目
-
つくばエクスプレス南流山駅
-
-
-

-
- 新築一戸建て
- 5,999万円
-
松戸市新松戸7丁目
-
つくばエクスプレス南流山駅
-
-
-

-
- 新築一戸建て
- 3,490万円
-
八千代市八千代台東6丁目
-
京成本線京成大和田駅
-
-
-

-
- 新築一戸建て
- 3,390万円
-
八千代市八千代台東6丁目
-
京成本線京成大和田駅
-
- お近くの店舗を探す
-
おすすめ物件
-
-

-
- 新築一戸建て
- 3,680万円
-
成田市寺台
-
JR成田線成田
-
-
-

-
- 新築一戸建て
- 4,680万円
-
流山市野々下5丁目
-
東武野田線豊四季
-
-
-

-
- 新築一戸建て
- 3,480万円
-
成田市寺台
-
JR成田線成田
-
-
-

-
- 新築一戸建て
- 4,788万円
-
流山市東初石1丁目
-
東武野田線初石
-
-
-

-
- 新築一戸建て
- 4,480万円
-
流山市鰭ケ崎
-
JR武蔵野線南流山
-
-
-

-
- 新築一戸建て
- 4,299万円
-
松戸市平賀
-
JR千代田・常磐緩行線北小金
-
-
-

-
- 新築一戸建て
- 3,890万円
-
柏市西原4丁目
-
東武野田線江戸川台
-
-
-

-
- 新築一戸建て
- 5,299万円
-
流山市江戸川台西1丁目
-
東武野田線江戸川台
-
-
-

-
- 新築一戸建て
- 4,280万円
-
流山市鰭ケ崎
-
JR武蔵野線南流山
-
-
-

-
- 新築一戸建て
- 3,780万円
-
成田市寺台
-
JR成田線成田
-


























担当エージェント:三谷 晴美
♪いつでもご案内いたします~お気軽にご連絡くださいませ♪
中古を含めたおうちの探し方、資金計画の立て方や住宅ローン選び、おうちの税金面のアドバイス等、いろいろサポートさせていただきます♪