八王子市下恩方町6区画 新築一戸建住宅
掲載情報更新日:2026年01月05日 次回更新予定日:2026年01月19日
- 3,050万円
-
- 借入ご希望金額
万円 - 借入期間
年 - 借入金利
% - 月々のお支払い金額
円
- 借入ご希望金額
※ 月々のお支払例は目安の試算となりますので、実際の金額とは異なる場合がございます。詳しくは店舗までお問合わせください。
- 八王子市下恩方町
-
JR中央本線『高尾』 バス乗車15分 中央線「高尾」 川原宿大橋 停 徒歩2分 (約160m)
八王子市下恩方町6区画 新築一戸建住宅一戸建て | 物件情報
【新築仲介手数料無料のハウスドゥ立川北】八王子下恩方町 全2棟 2号棟
こちらの物件は【ハウスドゥ立川北限定のゼロキャンペーン対象物件】です。ご購入の際の仲介手数料が【無料】の0円です。中古住宅ご購入のお客様には【Wキャンペーン対象物件】でギフト券をプレゼント!大変お得なキャンペーンなのでぜひご利用ください。さらにローンシュミレーションからライフプランの設計も【無料】で作成いたします。賢く買うならハウスドゥ 立川北で検索!
物件の設備
- 電気
- 上水道
- 下水道
- プロパンガス
- 給湯
- 浄水器
- コンロ三口
- グリル
- システムキッチン
- ユニットバス
- 追焚機能
- 浴室乾燥機
- 浴室に窓
- 温水洗浄便座
- 高機能トイレ
- 室内洗濯機置場
- 洗髪洗面化粧台
- 洗面所独立
- ディンプルキー
- モニタ付インターホン
- 火災警報器/報知機
- LDK20畳以上
- 2面採光
- 全居室複層ガラス
- 24時間換気システム
- クローゼット3箇所
- 床下収納
- シューズボックス
物件の特徴
- 小学校徒歩10分以内
- 閑静な住宅街
- 市街地が近い
- 通風良好
- 陽当り良好
- 2階建
- 平坦地
物件詳細情報
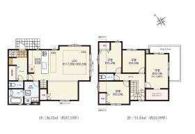
| 価格 | 3,050万円 | 間取り | 3LDK |
|---|---|---|---|
| 物件種別 | 新築一戸建て | ||
| 所在地 | 東京都八王子市下恩方町1852-1 2号棟 | ||
| アクセス |
|
||
| 建物面積 | 公104.3㎡ | 駐車場 | なし |
| 築年月 | 2026年(令和8年)03月築 | 建築確認 | 第R06確認建築八王子市00014号 |
| 建物構造 | 木造 2階建 | 工法 | 軸組工法 |
| 主要採光 | 南東向 | バルコニー | |
| 保証・評価 | |||
| 分譲情報 | |||
| 土地面積 | 公153.8㎡(46.52坪) | 接道 | |
| 私道 | セットバック | ||
| 地目 | 畑 | 地勢 | 平坦 |
| 権利 | 所有権 |
||
| 都市計画 | 市街化区域 |
用途地域 | 1種低層 |
| 建ぺい/容積率 | 40% / 80% | 土地国土法 | |
| 許可番号 | 建築基準法 | ||
| 法令制限 | |||
| 小学区 | 恩方第一小学校 徒歩7分 (約550m) | 中学区 | 恩方中学校 徒歩25分 (約2000m) |
| 現況 | 建築中 | 引渡 | 未記入 |
| その他費用 | |||
| 備考 | ◆閑静な住宅街です。 | ||
| 物件番号 | 4237161 | 取引態様 | 媒介 |
取扱店舗情報
ハウスドゥ 立川北 株式会社シティリノベーション 店舗詳細ページへ
| 電話番号 | 042-537-9361 |
|---|---|
| 所在地 | 〒190-0004 東京都立川市柏町3-19-14 フレンテ1F |
| 営業時間 | 9:00~18:00 |
| 定休日 | GW、夏季、冬季 |
| 宅建免許番号 | 東京都知事(2)第100954号 |
| アクセス | 店舗への地図はこちら |

来店ご予約
東京都八王子市で価格が似ている物件はこちら
- 東京都
マイページ物件数 - 4,948件
最近見た物件
-
-

-
- 土地
- 800万円
-
関市小瀬
-
岐阜バス新田停
-
東京都新築一戸建て新着物件
- お近くの店舗を探す
-
おすすめ物件
-
-

-
- 新築一戸建て
- 5,999万円
-
国分寺市北町5丁目
-
西武国分寺線鷹の台
-
-
-

-
- 新築一戸建て
- 6,390万円
-
三鷹市中原4丁目
-
京王線つつじヶ丘
-
-
-

-
- 新築一戸建て
- 1億4,500万円
-
世田谷区砧7丁目
-
小田急小田原線祖師ヶ谷大蔵
-
-
-

-
- 新築一戸建て
- 1億399万円
-
世田谷区北烏山3丁目
-
京王線千歳烏山
-
-
-

-
- 新築一戸建て
- 4,990万円
-
調布市深大寺南町5丁目
-
京王線つつじヶ丘
-
-
-

-
- 新築一戸建て
- 8,799万円
-
練馬区東大泉7丁目
-
西武池袋・豊島線大泉学園
-
-
-

-
- 新築一戸建て
- 7,588万円
-
江戸川区南葛西5丁目
-
JR京葉線葛西臨海公園
-
-
-

-
- 新築一戸建て
- 3,499万円
-
八王子市富士見町
-
JR八高線北八王子
-
-
-

-
- 新築一戸建て
- 1億399万円
-
世田谷区北烏山3丁目
-
京王線千歳烏山
-
-
-

-
- 新築一戸建て
- 3,980万円
-
足立区大谷田4丁目
-
東京メトロ千代田線北綾瀬
-










担当エージェント:板谷 和友樹
ハウスドゥ立川北のホームページをご覧頂きありがとうございます。
お客様の多くがお家を買うのに不安があるかと思われます。ハウスドゥではお客様の不安や問題解決に一つ一つ誠心誠意お答えいたします。また、お家探しに役立つ多くの物件に関する情報を掲載しております。
ハウスドゥ立川北ではお客様お一人お一人にあったご提案を心がけており、ローンシュミレーションや人工知能を使ったライフプランの作成(要予約)を行いお客様の不安を解決いたします
■頭金は必要なのか?
■ローンは払っていけるのか?
■どのタイミングで住み替えや引越しが出来るのか?etc
お気軽に相談できるハウスドゥ立川北へお問い合わせ下さい
◆ご予約方法◆
直接お電話ください。【0120-537-936】
メールでのご予約も承ります。お気軽にご来店ください。
物件によっては事前に鍵の手配が必要な場合がありますので、お早目にご連絡をいただけるとご案内がスムーズです。
◆ご案内方法◆
①最寄駅や周辺地での待ち合わせ②ハウスドゥ立川北へのご来店などご相談ください。