大崎市古川下中目字六軒丁の新築戸建
掲載情報更新日:2025年10月31日 次回更新予定日:2025年11月14日
- 1,990万円
 - 
                    
- 借入ご希望金額
万円 -  借入期間
年 -  借入金利
% -  月々のお支払い金額
円 
 - 借入ご希望金額
 
※ 月々のお支払例は目安の試算となりますので、実際の金額とは異なる場合がございます。詳しくは店舗までお問合わせください。
- 大崎市古川下中目字六軒丁
 - 
                    JR陸羽東線『古川』 車10分(約5.5km)
 
大崎市古川下中目字六軒丁一戸建て | 物件情報
            
        
SAFE365が特徴のQUIEは、耐震+制震の安心住宅です。
物件の設備
- 電気
 - オール電化
 - 公営水道
 - 下水道
 - 側溝
 - IHクッキングヒータ
 - コンロ三口
 - カウンターキッチン
 - システムキッチン
 - 追焚機能
 - 浴室暖房
 - 浴室乾燥機
 - トイレ2箇所
 - 温水洗浄便座
 - 洗髪洗面化粧台
 - 人感照明センサー
 - 省エネ給湯器
 - モニタ付インターホン
 - 火災警報器/報知機
 - 複層ガラス
 - 24時間換気システム
 - クローゼット
 - 床下収納
 - 全居室収納
 - バルコニー
 - ワイドバルコニー
 
物件の特徴
- 地盤調査済
 - 閑静な住宅街
 - 2階建
 - 外壁サイディング
 - 建設住宅性能評価付
 - 設計住宅性能評価付
 - 省エネルギー対策
 - フラット35Sに対応
 
物件詳細情報
| 価格 | 1,990万円 | 間取り | 4LDK | 
|---|---|---|---|
| 物件種別 | 新築一戸建て | ||
| 所在地 | 宮城県大崎市古川下中目字六軒丁 2号棟 | ||
| アクセス | 
            
  | 
    ||
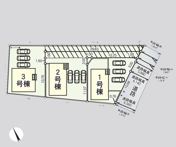
| 建物面積 | 公95.58㎡ | 駐車場 | あり 普通:3台 | 
| 築年月 | 2025年(令和7年)07月予定 | 建築確認 | 第R07SHC103762号 | 
| 建物構造 | 木造 2階建 | 工法 | 軸組工法 | 
| 主要採光 | 東向 | バルコニー | |
| 保証・評価 | 設計住宅性能評価書・建設住宅性能評価書(新築時) | 
    ||
| 分譲情報 | 【販売戸数】:3戸 【価格】:1,780万円 ~2,080万円 【最多価格】:2,000万円 ~2,100万円(1戸) 【土地面積】:170.57㎡ ~241.98㎡  | 
        ||
| 土地面積 | 公226.48㎡(68.51坪) | 接道 | 南東側(公道)幅 約5.9m | 
    
| 私道 | セットバック | ||
| 地目 | 宅地 | 地勢 | 平坦 | 
| 権利 | 所有権 | 
    ||
| 都市計画 | 区域外 | 
        用途地域 | 指定無 | 
| 建ぺい/容積率 | 70% / 200% | 土地国土法 | |
| 許可番号 | 建築基準法 | ||
| 法令制限 | |||
| 小学区 | 敷玉小学校 徒歩14分 (約1100m) | 中学区 | 古川東中学校 徒歩60分 (約4800m) | 
| 現況 | 建築中 | 引渡 | 期日指定:2025年07月 | 
| その他費用 | |||
| 周辺環境 | セブンイレブン 古川下中目店 徒歩5分 (約390m) 美里町役場 徒歩51分 (約4080m) ツルハドラッグ小牛田店 徒歩51分 (約4080m) あいのや 古川東店 徒歩62分 (約4940m) DCM 古川店 徒歩64分 (約5080m)  | 
    ||
| 備考 | ・セブンイレブン 古川下中目店まで徒歩5分(約390m) ・美里町役場まで徒歩51分(約4080m) ・ツルハドラッグ小牛田店まで徒歩51分(約4080m) ・あいのや 古川東店まで徒歩62分(約4940m) ・DCM 古川店まで徒歩64分(約5080m)  | 
    ||
| 物件番号 | 4237903 | 取引態様 | 媒介 | 
取扱店舗情報
ハウスドゥ 石巻蛇田 不動産の窓口株式会社 店舗詳細ページへ
| 電話番号 | 0225-98-8142 | 
|---|---|
| 所在地 | 〒986-0868 宮城県石巻市恵み野5丁目1-3 キャッスルシティ恵み野102  | 
            
| 営業時間 | 10:00~19:00 | 
| 定休日 | 水曜日、年末年始 | 
| 宅建免許番号 | 宮城県知事(1)第6844号 | 
| アクセス | 店舗への地図はこちら | 

来店ご予約
宮城県大崎市で価格が似ている物件はこちら
- 宮城県
マイページ物件数 - 1,128件
 
最近見た物件
- 
                        
- 
									                                    

 - 
                                
- 新築一戸建て
 - 2,090万円
 - 
                                        
                                            
大崎市古川下中目字六軒丁
 - 
                                        
JR陸羽東線古川
 
 
 - 
									                                    
 
宮城県新築一戸建て新着物件
- 
				
- 
							                            

 - 
						
- 新築一戸建て
 - 2,980万円
 - 
								
									
多賀城市下馬2丁目
 - 
                                
JR仙石線下馬駅
 
 
 - 
							                            
 - 
				
- 
							                            

 - 
						
- 新築一戸建て
 - 3,080万円
 - 
								
									
多賀城市下馬2丁目
 - 
                                
JR仙石線下馬駅
 
 
 - 
							                            
 - 
				
- 
							                            

 - 
						
- 新築一戸建て
 - 3,180万円
 - 
								
									
仙台市若林区沖野2丁目
 - 
                                
仙台市営地下鉄南北線長町一丁目駅
 
 
 - 
							                            
 - 
				
- 
							                            

 - 
						
- 新築一戸建て
 - 3,490万円
 - 
								
									
仙台市太白区袋原5丁目
 - 
                                
JR東北本線南仙台駅
 
 
 - 
							                            
 - 
				
- 
							                            

 - 
						
- 新築一戸建て
 - 3,390万円
 - 
								
									
仙台市太白区袋原5丁目
 - 
                                
JR東北本線南仙台駅
 
 
 - 
							                            
 - 
				
- 
							                            

 - 
						
- 新築一戸建て
 - 3,190万円
 - 
								
									
多賀城市新田字北関合
 - 
                                
JR東北本線岩切駅
 
 
 - 
							                            
 - 
				
- 
							                            

 - 
						
- 新築一戸建て
 - 3,090万円
 - 
								
									
多賀城市新田字北関合
 - 
                                
JR東北本線岩切駅
 
 
 - 
							                            
 
- お近くの店舗を探す
 - 
            
            
            
 
おすすめ物件
- 
				
- 
														

 - 
						
- 新築一戸建て
 - 3,480万円
 - 
								
									
仙台市太白区東中田4丁目
 - 
								
JR東北本線南仙台
 
 
 - 
														
 - 
				
- 
														

 - 
						
- 新築一戸建て
 - 3,490万円
 - 
								
									
仙台市宮城野区栄3丁目
 - 
								
JR仙石線中野栄
 
 
 - 
														
 - 
				
- 
														

 - 
						
- 新築一戸建て
 - 5,180万円
 - 
								
									
仙台市泉区本田町
 - 
								
仙台市営地下鉄南北線泉中央
 
 
 - 
														
 - 
				
- 
														

 - 
						
- 新築一戸建て
 - 3,580万円
 - 
								
									
仙台市若林区若林7丁目
 - 
								
仙台市営地下鉄南北線長町一丁目
 
 
 - 
														
 
    
                        
                        
                        
                    

                
                
            
                
                    
						
						